Beste Büros Logo
Hamburg-West
Merken
Objektnummer: 109

Westend Village | Bürolofts am Park

Loftartige Büroflächen im Rotklinker-Fabrikgebäude: hohe Decken, große Fenster, flexible Grundrisse und moderne Ausstattung mit historischem Charme.

Theodorstraße 42

Objektbeschreibung

Die Fassaden des Gebäudes bestehen aus mehrgeschossigen Rotklinkerbauten mit verzierten Einzelelementen, die dem Objekt einen historischen Charakter verleihen. Der Charme des ehemaligen Fabrikschlosses zeigt sich in loftartigen Flächen, in denen alte Stilelemente mit moderner Architektur kombiniert sind.


Die Räumlichkeiten lassen sich flexibel teilen und ermöglichen verschiedene Nutzungskonzepte - von offenen Arbeitsbereichen bis zu individuellen Büros. Eine moderne technische Ausstattung schafft dabei einen zeitgemäßen Standard.

Lage

Im Hamburger Stadtteil Bahrenfeld, zwischen Trabrennbahn und Autobahn, liegt das Westend Village Areal. Der 1901 erbaute Gebäudekomplex prägt bis heute das Ortsbild. Auf dem Gelände bietet eine Backfactory Snacks für die Mittagspause. Eine Grünfläche mit Grillplatz und Schachfeld steht allen Mietern zur Verfügung, der Poolbereich ausgewählten Gewerbemietern. Buslinien, die S-Bahn-Station Bahrenfeld sowie der direkte Anschluss an die A7 sichern eine gute Erreichbarkeit.
Für wen lohnt sich das Objekt?


Das Objekt eignet sich besonders für Nutzer, die Wert auf eine repräsentative Arbeitsumgebung legen und die Verbindung von historischem Ambiente mit moderner Technik schätzen. Kreative Unternehmen, Architekturbüros oder Agenturen finden hier helle und offene Flächen für flexible Arbeitswelten. Ebenso profitieren klassische Büronutzer oder Kanzleien von der hochwertigen Ausstattung und der wirkungsvollen Erscheinung des Gebäudes.
Besichtigungstermin anfragen

Weitere Angaben

  • Verfügbare Fläche (ca.) 7.842 m2
  • Teilbare Fläche (ca.) 250 m2
  • Mietpreis von 14,50€/m2 bis 16,50€/m2 mtl.
  •  
  • Nebenkosten 2,95€/m2 mtl.
  • Verfügbarkeit kurzfristig (bis 4 Monate)
  •  
  • Energiepass befreit (Denkmalschutz)
  • Baujahr 1901
  • Provision* Provisionsfrei für den Mieter bei Anmietung von mind. 5 Jahren Laufzeit.

* Abhängig von der Mietdauer (siehe AGB)
Alle Preisangaben verstehen sich zzgl. der gesetzlichen USt.

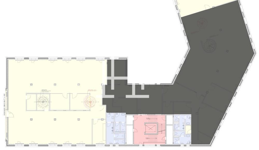
Grundriss 2. OG, ca. 500 m²:

Sie haben Fragen?
Wenden Sie sich gerne an:

Team HH


Tel.: +49 40 2286011-0
E-Mail: anfrage@hamburg-properties.com

HPC Hamburg Properties Consulting GmbH & Co. KG
Alter Wall 34-36
20457 Hamburg

Lage Kriterien

  • Flughafen Hamburg: 18,50 km
  • A7: 0,80 km
  • Hauptbahnhof: 8,90 km
  • Il Cortile Bistro & Wine: 200 m
  • REWE: 1100 m
  • Gastwerk Hotel: 1900 m
  • Emilienstraße: 5500 m
  • Bahrenfeld: 1600 m
  • August-Kirch-Straße: 260 m