Beste Büros Logo
Hamburg-West
Merken
Objektnummer: 108

Marzipanfabrik | Loftflächen in Ottensen

Büro in Altona, Hamburg-West gesucht? Ihre neue Adresse: Griegstraße, Hamburg | 15843 qm, teilbar ab 213 qm, verfügbar: nach Absprache

Griegstraße 75

Objektbeschreibung

Auf dem Areal wird die historische und seit Jahrzehnten vermietete Bausubstanz von Grund auf modernisiert und durch moderne Büroneubauten in architektonisch neuzeitlichem Stil zu einem harmonischen Ganzen ausgebaut. Die hochwertigen Büroräume überzeugen im Loftstil und sind flexibel teilbar. Durch die großen Fenster wirken die Räume hell und einladend. Stellplätze sind direkt auf dem Areal zur Anmietung verfügbar. Der angegebene Mietpreis kann in Abhängigkeit von der Fläche höher ausfallen.

Lage

Die Marzipanfabrik liegt mitten im Herzen von Hamburg Bahrenfeld. In der Mittagspause lädt ein kleiner Teich und ein begrüntes Areal am Fuße des denkmalgeschützen Industrieschornsteins der Marzipanfabrik zum Verweilen ein. Buslinien, die S- Bahn Station Bahrenfeld sowie der nahegelegene Anschluss an die Autobahn 7, sorgen für eine gute Erreichbarkeit des Parks mit Auto, Bus und Bahn.
Besichtigungstermin anfragen

Weitere Angaben

  • Verfügbare Fläche (ca.) 15.843 m2
  • Teilbare Fläche (ca.) 213 m2
  • Mietpreis ab 18,95€/m2 mtl.
  •  
  • Nebenkosten 3,25€/m2 mtl.
  • Verfügbarkeit nach Absprache
  •  
  • Energiepass befreit (Denkmalschutz)
  • Baujahr 1891
  • Provision* 3,0 Bruttomonatsmieten für den Mieter.

* Abhängig von der Mietdauer (siehe AGB)
Alle Preisangaben verstehen sich zzgl. der gesetzlichen USt.

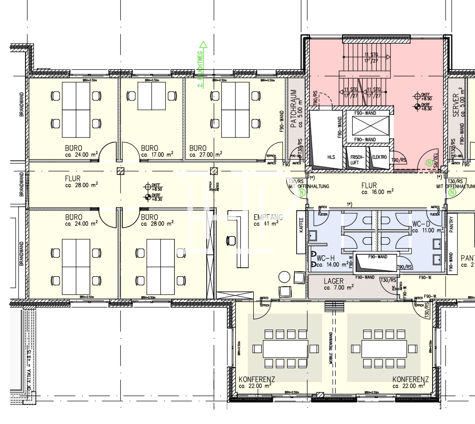
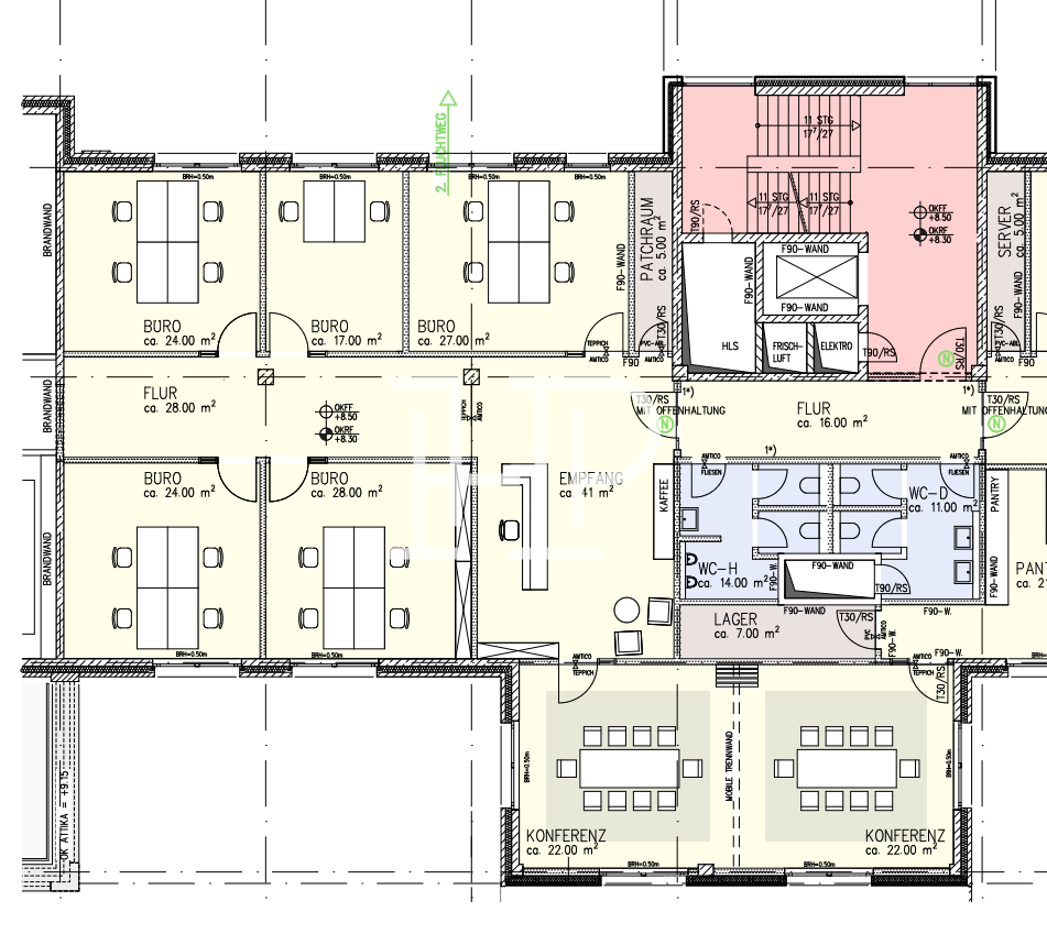
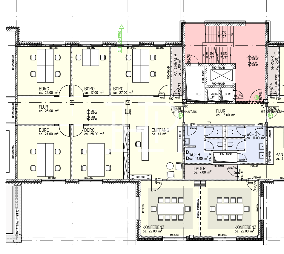
Haus 12, 2. Obergeschoss:

Sie haben Fragen?
Wenden Sie sich gerne an:

Team HH


Tel.: +49 40 2286011-0
E-Mail: anfrage@hamburg-properties.com

HPC Hamburg Properties Consulting GmbH & Co. KG
Alter Wall 34-36
20457 Hamburg

Lage Kriterien

  • Airport Hamburg: 19 km
  • A7 Bahrenfeld: 1,10 km
  • Hauptbahnhof: 8,70 km
  • elbdeli: 220 m
  • Glasmeyers REWE: 800 m
  • Gastwerk Hotel Hamburg: 1100 m
  • U3 Sternschanze: 5000 m
  • S1/11 Bahrenfeld: 500 m
  • S-Bahrenfeld: 450 m