Beste Büros Logo
Hamburg-West
Merken
Objektnummer: 207

Gustav-Stresemann-Haus | Zentral in Ottensen

Büroflächen nahe Ottensen: Büro- und Geschäftshaus mit Glas-Stahl-Fassade, flexiblen Grundrissen, Tiefgarage und guter ÖPNV- sowie Pkw-Anbindung.

Stresemannstraße 342

Objektbeschreibung

Das 1993 errichtete Büro- und Geschäftshaus präsentiert sich von außen mit einer zeitlosen Fassade, die an der Stirnseite pyramidenförmig, bestehend aus Glas und Stahl, verläuft. Über die beiden analog zueinanderliegenden Eingangsbereiche gelangen Sie bequem mit den Personenaufzügen in die Büroflächen. Weiterhin ist die Flächenstruktur individuell teilbar und nach Absprache mit dem Vermieter umsetzbar. Zusätzlich verfügt das Objekt über eine hauseigene Tiefgarage sowie Außenstellplätze, die zur Anmietung zur Verfügung stehen.

Lage

Das Büro- und Geschäftshaus liegt westlich der Hamburger Innenstadt, nahe Ottensen und Altona-Nord. Die Umgebung ist geprägt durch lebendige und beliebte Wohn- und Dienstleistungsangebote, die sich vor den noblen Elbvororten niedergelassen haben. In unmittelbarer Entfernung befindet sich ein vielfältiges Angebot an Geschäften des täglichen Bedarfs sowie Cafes und Restaurants, wie z.B. das Madame Mai. Weiterhin ist das Objekt mit dem PKW sowie mit dem ÖPNV gut zu erreichen.
Für wen lohnt sich das Objekt?


Das Objekt eignet sich für Unternehmen, die eine lebendige Lage mit guten Verkehrsanbindungen suchen. Dienstleister oder Firmen mit Bedarf an flexiblen Büroräumen und Parkmöglichkeiten profitieren von der Nähe zu Geschäften, Cafes und Restaurants wie das Madame Mai. Die individuelle Raumgestaltung bietet sich für Teams mit Wachstumspotenzial an.
Besichtigungstermin anfragen

Weitere Angaben

  • Verfügbare Fläche (ca.) 530 m2
  • Teilbare Fläche (ca.) 173 m2
  • Mietpreis ab 14,00€/m2 mtl.
  •  
  • Nebenkosten 5,10€/m2 mtl.
  • Verfügbarkeit kurzfristig (bis 4 Monate)
  •  
  • Energiepass liegt vor
  • Baujahr 1993
  • Provision* Provisionsfrei für den Mieter bei Anmietung von mind. 5 Jahren Laufzeit.

* Abhängig von der Mietdauer (siehe AGB)
Alle Preisangaben verstehen sich zzgl. der gesetzlichen USt.

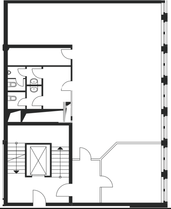
1. Obergeschoss:

Sie haben Fragen?
Wenden Sie sich gerne an:

Team HH


Tel.: +49 40 2286011-0
E-Mail: anfrage@hamburg-properties.com

HPC Hamburg Properties Consulting GmbH & Co. KG
Alter Wall 34-36
20457 Hamburg

Lage Kriterien

  • Airport Hamburg: 19,40 km
  • A7 : 1,80 km
  • Hauptbahnhof: 6,70 km
  • Madame Mai: 200 m
  • Edeka: 1 m
  • Gastwerk Hotel Hamburg: 950 m
  • Emilienstraße : 2500 m
  • Diebsteich: 850 m
  • Schützenstraße : 200 m