Beste Büros Logo
Hamburg-West
Merken
Objektnummer: 545

DOCKLAND | Einzigartige Bürofläche an der Elbe

Architektonisch beeindrucken am Elbufer mit Glasfassade und Hafenblick. Helle Büros, ÖPNV-Anbindung, Tiefgarage, nahe Fischmarkt und Innenstadt.

Van-der-Smissen-Straße 9

Objektbeschreibung

Das DOCKLAND ist eines der architektonisch beeindruckendsten Gebäude der Stadt Hamburg und ragt wie ein Schiffsbug 40 m über die Elbe und bildet damit das "Tor zur Stadt". Es überzeugt mit einer Glasfassade sowie bodentiefen Fenstern und beeindruckt mit einem einzigartigen Blick auf den Hamburger Hafen. Die hellen Büros mit hohen Decken sorgen für ein großzügiges Raumgefühl. Sowohl auf der Außenfläche als auch in der hauseigenen Tiefgarage können Stellplätze angemietet werden.

Lage

Das DOCKLAND befindet sich in einzigartiger Lage zwischen dem Elbufer und dem Fischmarkt. Die Hamburger Innenstadt ist in wenigen Autominuten zu erreichen. Lediglich 130 m entfernt ist eine Bushaltestelle gelegen, welche eine optimale Anbindung an den ÖPNV gewährleistet. Die A7 Richtung Bremen ist etwa 20 Minuten mit dem Auto entfernt. In direkter Nachbarschaft gelegen lädt das Fischereihafenrestaurant zu einer Stärkung ein.
Für wen lohnt sich das Objekt?


Das DOCKLAND ist ideal für Unternehmen, Kanzleien oder Kreativagenturen, die repräsentative, helle Büroräume mit einzigartigem Hafenblick in Hamburgs Toplage zwischen Elbufer und Fischmarkt suchen. Die exzellente ÖPNV-Anbindung, Nähe zur Innenstadt und zur A7 sowie das Fischereihafenrestaurant in der Nachbarschaft machen es attraktiv. Besonders geeignet für Firmen, die ein architektonisch beeindruckendes Umfeld mit bodentiefen Fenstern, hohen Decken und flexiblen Stellplätzen in der Tiefgarage schätzen.
Besichtigungstermin anfragen

Weitere Angaben

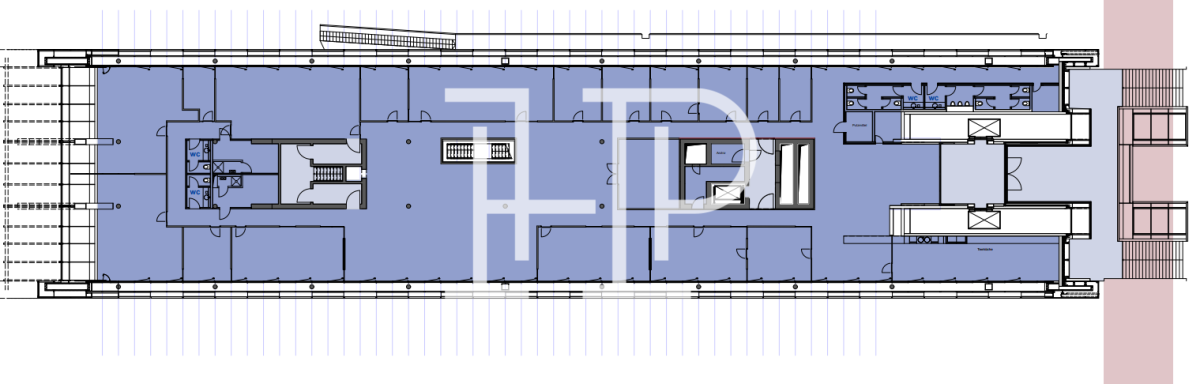
  • Verfügbare Fläche (ca.) 1.228 m2
  • Mietpreis ab 24,00€/m2 mtl.
  •  
  • Nebenkosten 7,50€/m2 mtl.
  •  
  • Energiepass liegt vor
  • Baujahr 2006
  • Provision* Provisionsfrei für den Mieter bei Anmietung von mind. 5 Jahren Laufzeit.

* Abhängig von der Mietdauer (siehe AGB)
Alle Preisangaben verstehen sich zzgl. der gesetzlichen USt.

5. Obergeschoss:

Sie haben Fragen?
Wenden Sie sich gerne an:

Team HH


Tel.: +49 40 2286011-0
E-Mail: anfrage@hamburg-properties.com

HPC Hamburg Properties Consulting GmbH & Co. KG
Alter Wall 34-36
20457 Hamburg

Lage Kriterien

  • Airport Hamburg: 13,20 km
  • A7 Othmarschen: 5,40 km
  • Hauptbahnhof: 6 km
  • Fischereihafen Restaurant: 120 m
  • FrischeParadies: 450 m
  • GINN Hotel Hamburg : 1000 m
  • U3 Landungsbrücken: 3100 m
  • S3 Reeperbahn: 1300 m
  • Kreuzfahrtterminal Altona: 130 m