Beste Büros Logo
City
Merken
Objektnummer: 683

Toplage und Alsterblick!

Neuer Wall 10

Objektbeschreibung

Das aus dem Jahre 1915 stammende Gutruf Haus präsentiert sich von außen mit einer schlichten Fassade. Gäste und Mitarbeiter des Hauses gelangen über einen repräsentativen Eingangsbereich in das Gebäude. Das 6. OG wird im Zuge eines Untermietverhältnisses mit einer Restlaufzeit bis September 2027 angeboten. Es besteht die Möglichkeit einer Möbelübernahme.

Lage

Das Gutruf Haus befindet sich zentral gelegen am Jungfernstieg in bester Innenstadtlage. Der direkte Blick auf die Binnenalster mit ihrer Alsterfontäne macht das Objekt zu etwas ganz Besonderem. Im direkten Umfeld befindet sich die Hamburger Hof Parfümerie, Gerry Weber, das Interior Geschäft bullfrog by die Wäscherei und das Eiscafé Eisige Liebe. In nur fünf Minuten erreicht man zudem das Restaurant Edmondo, welches mit vielfältigen italienischen Gerichten überzeugt.
Besichtigungstermin anfragen

Weitere Angaben

  • Verfügbare Fläche (ca.) 372 m2
  • Mietpreis ab 23,00€/m2 mtl.
  •  
  • Nebenkosten 5,00€/m2 mtl.
  •  
  • Energiepass befreit (Denkmalschutz)
  • Baujahr 1915
  • Provision* 3,0 Bruttomonatsmieten zzgl. ges. USt. für den Mieter.

* Abhängig von der Mietdauer (siehe AGB)
Alle Preisangaben verstehen sich zzgl. der gesetzlichen USt.

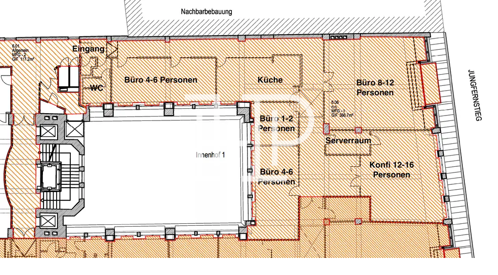
6. OG, 372 m²:

Sie haben Fragen?
Wenden Sie sich gerne an:

Katharina Giercke

Katharina Giercke
Tel.: +49 40 2286011-0
E-Mail: anfrage@hamburg-properties.com

HPC Hamburg Properties Consulting GmbH & Co. KG
Alter Wall 34-36
20457 Hamburg

Lage Kriterien

  • Airport Hamburg: 10,70 km
  • A255 HH-Elbbrücken: 5,90 km
  • Hauptbahnhof: 2,90 km
  • Edmondo: 270 m
  • Edeka Struve: 450 m
  • Marriott Hotel: 350 m
  • U2/4 Jungfernstieg: 150 m
  • S1/2/3 Jungfernstieg: 150 m
  • U Gänsemarkt Linien 4,5,19,602: 230 m