Beste Büros Logo
Hamburg-West
Merken
Objektnummer: 567

URBAN-OFFICE | Inmitten des Schanzenviertels

Schanzenstraße 70

Objektbeschreibung

Das Büro- und Geschäftsgebäude URBAN-OFFICE verfügt über sieben Vollgeschosse sowie einem Kellergeschoss, in dem sowohl Lagerflächen als auch PKW-Stellplätze den Mietern zur Verfügung stehen (Anzahl erfolgt nach Absprache). Mitarbeiter und Besucher gelangen über den Personenaufzug bequem in die jeweilige Büroetage. Die Mietflächen überzeugen durch einen einladenden und hellen Empfangsbereich mit direkter Zugänglichkeit zum großzügigen Aufenthaltsraum. Die aktuelle Raumaufteilung umfasst sowohl Einzelbüros, Doppelbüros, Gruppenbüros und kleinere und größere Besprechungsräume.

Lage

Das URBAN-OFFICE liegt im Herzen des Stadtteils Sternschanze. Die Sternschanze, auch liebevoll Schanze genannt, ist bekannt für sein hippes und vielfältiges Angebot an Geschäften des täglichen Bedarfs und Restaurants und Cafés wie z.B. Otto's Burger. Das Viertel ist zudem Heimat für Kreativagenturen, wie beispielsweise Werbeagenturen, Architekten oder auch Designer. Zudem ist der Standort hervorragend mit den öffentlichen Verkehrsmitteln sowie mit dem PKW zu erreichen.
Besichtigungstermin anfragen

Weitere Angaben

  • Verfügbare Fläche (ca.) 447 m2
  • Mietpreis ab 18,00€/m2 mtl.
  •  
  • Nebenkosten 4,50€/m2 mtl.
  • Verfügbarkeit kurzfristig (bis 4 Monate)
  •  
  • Energiepass liegt vor
  • Baujahr 2004
  • Provision* 3,0 Bruttomonatsmieten zzgl. ges. USt. für den Mieter.

* Abhängig von der Mietdauer (siehe AGB)
Alle Preisangaben verstehen sich zzgl. der gesetzlichen USt.

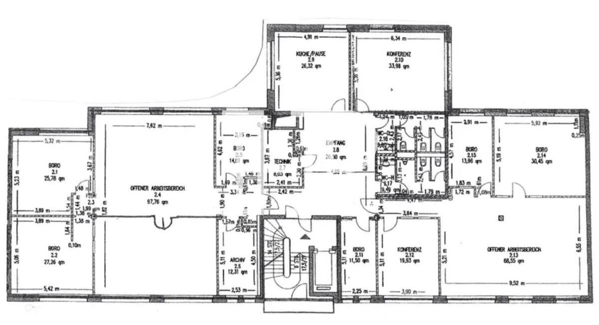
Grundriss 2. OG:

Sie haben Fragen?
Wenden Sie sich gerne an:

Philipp Blank

Philipp Blank
Tel.: +49 40 2286011-0
E-Mail: anfrage@hamburg-properties.com

HPC Hamburg Properties Consulting GmbH & Co. KG
Alter Wall 34-36
20457 Hamburg

Lage Kriterien

  • Airport Hamburg: 9,90 km
  • Elbbrücken: 5,80 km
  • Hauptbahnhof: 4,50 km
  • Otto's Burger: 30 m
  • Alnatura: 130 m
  • Superbude Hamburg: 550 m
  • U3 Sternschanze : 550 m
  • S11/S21/S31 Sternschanze : 240 m
  • Sternschanze Linie 181: 270 m