Beste Büros Logo
Hamburg-West, 07 Hamburg-Nord
Merken
Objektnummer: 882

Langenfelder Eck | Top-Lage Eimsbüttel

Langenfelder Damm 76

Objektbeschreibung

Das Gebäude am Langenfelder Damm 76 ist ein modernes Wohn- und Geschäftshaus, das auf vier Etagen hochwertig ausgestattete Wohneinheiten sowie eine großzügige Gewerbefläche im Erdgeschoss bietet. Das Haus besticht durch eine zeitgemäße Architektur und eine freundliche Fassadengestaltung. Die Gewerbeflächen im Erdgeschoss sind vielseitig nutzbar und bieten durch die großen Schaufenster eine optimale Sichtbarkeit.

Die verkehrsgünstige Lage mit einer Bushaltestelle direkt vor dem Gebäude sorgt für eine exzellente Anbindung. Das Objekt bietet durch seine durchdachte Kombination aus Wohn- und Geschäftseinheiten eine attraktive Grundlage für unterschiedlichste Nutzungskonzepte.

Lage

Die Immobilie liegt zentral am Langenfelder Damm 76 im gefragten Hamburger Stadtteil Eimsbüttel. Dieser Standort bietet eine ideale Kombination aus urbanem Leben und guter Erreichbarkeit. Der Langenfelder Damm ist eine stark frequentierte Hauptverkehrsstraße mit direkter Anbindung an die Autobahn A7 sowie den öffentlichen Nahverkehr (Buslinien und die fußläufig erreichbare U-Bahn-Station Lutterothstraße).
Besichtigungstermin anfragen

Weitere Angaben

  • Verfügbare Fläche (ca.) 194 m2
  • Mietpreis ab 19,80€/m2 mtl.
  •  
  • Nebenkosten 3,50€/m2 mtl.
  •  
  • Energiepass befreit (Denkmalschutz)
  • Baujahr 0
  • Provision* Provisionsfrei für den Mieter bei Anmietung von mind. 5 Jahren Laufzeit.

* Abhängig von der Mietdauer (siehe AGB)
Alle Preisangaben verstehen sich zzgl. der gesetzlichen USt.

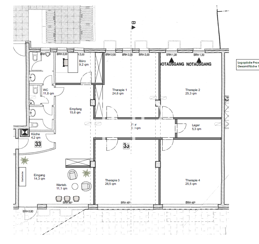
Grundriss EG:

Sie haben Fragen?
Wenden Sie sich gerne an:

Team HH


Tel.: +49 40 2286011-0
E-Mail: anfrage@hamburg-properties.com

HPC Hamburg Properties Consulting GmbH & Co. KG
Alter Wall 34-36
20457 Hamburg

Lage Kriterien

  • Airport Hamburg: 10,40 km
  • A 7 Stellingen: 1,80 km
  • Hauptbahnhof: 6,10 km
  • Restaurant La Classe Capanna: 160 m
  • Edeka: 700 m
  • Motel One: 1100 m
  • U2 Lutterothstraße : 1000 m
  • S3 / S21 Langenfelde: 600 m
  • Langenfelder Damm: 100 m