Beste Büros Logo
City Süd
Merken
Objektnummer: 186

Wohlfühlen und Arbeiten am Ufer der Bille

Heidenkampsweg 51-57

Objektbeschreibung

Die zeitlos geschwungene Fassade aus Rotklinker und Glas ist im vollen Einklang mit der näheren Umgebung. Über den hellen Eingangsbereich gelangen Sie bequem mit den Aufzügen in die jeweilige Bürofläche. Die für alle Besucher zugängliche Terrasse im Erdgeschoss, mit Blick auf den Kanal, lädt zum Verweilen ein. Die Aufteilung und Ausstattung der Mietfläche kann nach Mieterwunsch erfolgen.

Lage

Das eindrucksvolle Büro- und Geschäftshaus liegt zentral gelegen inmitten der City-Süd und ist umgeben vom Mittel- und Südkanal. Fußläufig ist das Objekt nur 2 min. von der nächsten Bushaltestelle und nur 8 min. von der S-Bahnstation Hammerbrook entfernt. Das Objekt ist über die Eiffestraße und Amsinckstraße sehr gut mit dem PKW erreichbar und verfügt zudem über eine Vielzahl an anmietbaren Parkmöglichkeiten.
Besichtigungstermin anfragen

Weitere Angaben

  • Verfügbare Fläche (ca.) 224 m2
  • Mietpreis ab 15,50€/m2 mtl.
  •  
  • Nebenkosten 4,00€/m2 mtl.
  •  
  • Energiepass liegt vor
  • Baujahr 1993
  • Provision* Provisionsfrei für den Mieter bei Anmietung von mind. 5 Jahren Laufzeit.

* Abhängig von der Mietdauer (siehe AGB)
Alle Preisangaben verstehen sich zzgl. der gesetzlichen USt.

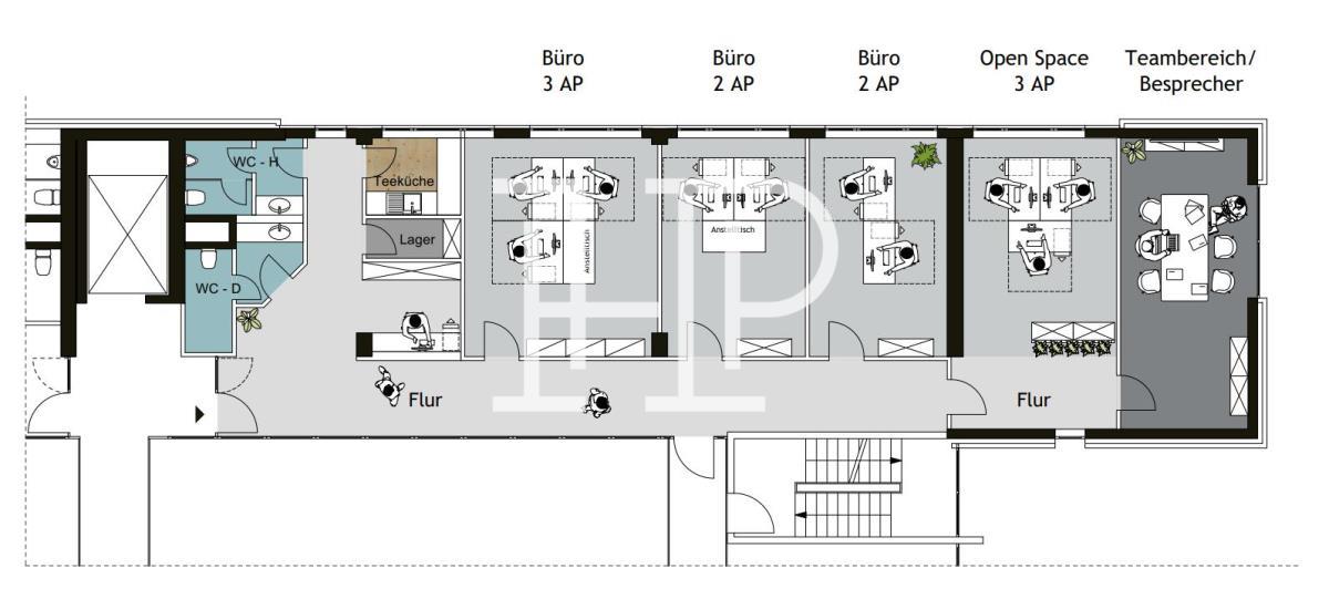
Grundriss 3. OG :

Sie haben Fragen?
Wenden Sie sich gerne an:


Tel.: +49 40 2286011-0
E-Mail: anfrage@hamburg-properties.com

HPC Hamburg Properties Consulting GmbH & Co. KG
Alter Wall 34-36
20457 Hamburg

Lage Kriterien

  • Airport Hamburg: 10,60 km
  • Elbbrücken: 1,60 km
  • Hauptbahnhof: 2,70 km
  • Alitalia: 600 m
  • Edeka Niemerszein: 1100 m
  • Stadthotel Hamburg: 800 m
  • Berliner Tor U 2/3/4: 800 m
  • Hammerbrook S3/31: 500 m
  • Wendenstraße 154 / 160: 110 m