Beste Büros Logo
City Süd
Merken
Objektnummer: 096

GoFa | Nahe des Mittelkanals in Hammerbrook

Frankenstraße 3 - 7

Objektbeschreibung

Die Fassade des Objektes ist vielseitig und hat auf der einen Seite stilvolle bogenförmige Fenster und auf der anderen Seite spiegeln Glaselemente und Stahl die Moderne wieder. Die großen Fenster sorgen für viel Licht in den Räumlichkeiten und für eine angenehme Atmosphäre. Die Büroräume lassen sich flexibel nach Mieterwunsch gestalten.

Lage

Das Objekt befindet sich im Herzen von Hammerbrook und nur 200 m entfernt vom Mittelkanal. Der Stoltenpark lässt sich fußläufig in wenigen Minuten erreichen und lädt zum Entspannen in der Mittagspause ein. In der nahen Umgebung befinden sich zahlreiche Essensmöglichkeiten, wie z.B. das Bistro Olivio, oder das Café Irma.
Besichtigungstermin anfragen

Weitere Angaben

  • Verfügbare Fläche (ca.) 4.040 m2
  • Teilbare Fläche (ca.) 246 m2
  • Mietpreis von 14,00€/m2 bis 14,50€/m2 mtl.
  •  
  • Nebenkosten 3,50€/m2 mtl.
  • Verfügbarkeit kurzfristig (bis 4 Monate)
  •  
  • Energiepass liegt vor
  • Baujahr 1994
  • Provision* Provisionsfrei für den Mieter bei Anmietung von mind. 5 Jahren Laufzeit.

* Abhängig von der Mietdauer (siehe AGB)
Alle Preisangaben verstehen sich zzgl. der gesetzlichen USt.

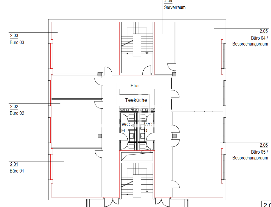
Grundriss 2. OG:

Sie haben Fragen?
Wenden Sie sich gerne an:

Team HH


Tel.: +49 40 2286011-0
E-Mail: anfrage@hamburg-properties.com

HPC Hamburg Properties Consulting GmbH & Co. KG
Alter Wall 34-36
20457 Hamburg

Lage Kriterien

  • Airport Hamburg: 10,30 km
  • A7: 9 km
  • Hauptbahnhof: 1,50 km
  • Restaurant Alitalia: 400 m
  • EDEKA Niemerszein Hammerbrook: 500 m
  • Hampton by Hilton : 750 m
  • U 2/3/4 Berliner Tor : 900 m
  • S 3/31 Hammerbrook: 80 m
  • Linie 112 Hammerbrook: 80 m