Beste Büros Logo
City Süd
Merken
Objektnummer: 339

BCCS | Bürocenter City-Süd

Süderstraße 73 - 79a

Objektbeschreibung

Das im Jahre 1994 erbaute Gebäudeensemble bietet Büro- und Gewerbeflächen auf bis zu fünf bzw. sechs Ebenen, verteilt auf vier Gebäudeabschnitte. Über den mit Marmor verzierten Eingangsbereich gelangt man mit den Personenaufzügen in die jeweiligen Büroetagen. Aufgrund der Gebäudekubatur verfügt das Objekt über sehr effiziente Mietflächen, die auf Wunsch unterteilt werden können. In der hauseigenen Tiefgarage gibt es zudem die Möglichkeit PKW-Stellplätze langfristig anzumieten.

Lage

Das Bürocenter City Süd, abgekürzt BCCS, befindet sich zentral gelegen an einem attraktiven Standort in der Hamburger City-Süd. Von der Autobahn aus gelangt man binnen weniger Minuten mit dem PKW zum Objekt. Ebenfalls können Mitarbeiter und Gäste des Hauses das Objekt bequem mit den ÖPNV über die 250 m entfernte S-Bahnstation Hammerbrook erreichen. Für das leibliche Wohl bietet sich im Erdgeschoss ein vielfältiges Mittagstischangebot in der s.g. Feinbeisser Lounge.
Besichtigungstermin anfragen

Weitere Angaben

  • Verfügbare Fläche (ca.) 9.089 m2
  • Teilbare Fläche (ca.) 377 m2
  • Mietpreis ab 12,50€/m2 mtl.
  •  
  • Nebenkosten 3,00€/m2 mtl.
  • Verfügbarkeit kurzfristig (bis 4 Monate)
  •  
  • Energiepass liegt vor
  • Baujahr 1994
  • Provision* Provisionsfrei für den Mieter bei Anmietung von mind. 5 Jahren Laufzeit.

* Abhängig von der Mietdauer (siehe AGB)
Alle Preisangaben verstehen sich zzgl. der gesetzlichen USt.

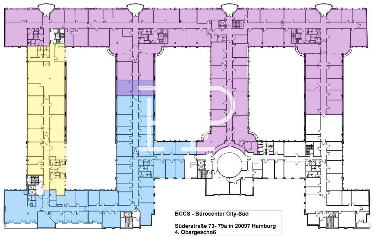
Regelgeschoss:

Sie haben Fragen?
Wenden Sie sich gerne an:

Team HH


Tel.: +49 40 2286011-0
E-Mail: anfrage@hamburg-properties.com

HPC Hamburg Properties Consulting GmbH & Co. KG
Alter Wall 34-36
20457 Hamburg

Lage Kriterien

  • Airport Hamburg: 10,80 km
  • Elbbrücken: 2 km
  • Hauptbahnhof: 3,30 km
  • Pastaria : 230 m
  • Edeka: 1000 m
  • Mercure Hotel Hamburg: 850 m
  • Berliner Tor U2/3/4: 1400 m
  • Hammerbrook S3/S31 : 280 m
  • S-Hammerbrook (Süd) Linie 112: 280 m