Beste Büros Logo
Hamburg-West
Merken
Objektnummer: 213

G 18 | Zentrales Arbeiten in Bahrenfeld

Gasstraße 18

Objektbeschreibung

Das Gebäude präsentiert sich von außen mit einer schlichten Rotklinkerfassade, die durch eine graue Vorhängefassade ergänzt wird. Das Objekt verfügt über fünf Stockwerke und einen großzügigen Außenbereich mit PKW-Stellplätzen. Über den gut ausgeschilderten Eingangsbereich gelangen Mitarbeiter und Gäste in die jeweilige Büroetage. Die Mietflächen können auf Wunsch des Mieters, nach vorheriger Absprache mit dem Vermieter, ausgebaut und gestaltet werden.

Lage

Das Büro- und Geschäftsgebäude liegt mitten im Herzen des Hamburger Stadtteils Bahrenfeld. Die Mittagspause kann in einem der zahlreichen umliegenden Restaurants, wie dem 400 m entfernten Burger de Ville, verbracht werden. Buslinien, die S- Bahn Station Bahrenfeld sowie der nahegelegene Anschluss an die Autobahn 7, sorgen für eine gute Erreichbarkeit des Parks mit Auto, Bus und Bahn.
Besichtigungstermin anfragen

Weitere Angaben

  • Verfügbare Fläche (ca.) 3.369 m2
  • Teilbare Fläche (ca.) 349 m2
  • Mietpreis von 14,90€/m2 bis 15,90€/m2 mtl.
  •  
  • Nebenkosten 3,00€/m2 mtl.
  •  
  • Energiepass liegt vor
  • Baujahr 1992
  • Provision* Provisionsfrei für den Mieter bei Anmietung von mind. 5 Jahren Laufzeit.

* Abhängig von der Mietdauer (siehe AGB)
Alle Preisangaben verstehen sich zzgl. der gesetzlichen USt.

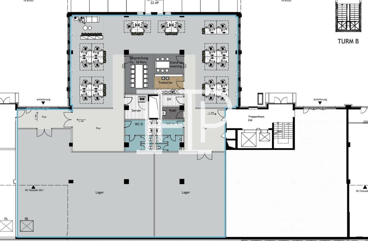
Grundriss EG:

Sie haben Fragen?
Wenden Sie sich gerne an:

Team HH


Tel.: +49 40 2286011-0
E-Mail: anfrage@hamburg-properties.com

HPC Hamburg Properties Consulting GmbH & Co. KG
Alter Wall 34-36
20457 Hamburg

Lage Kriterien

  • Airport Hamburg: 13,30 km
  • Bahrenfeld: 1,30 km
  • Hauptbahnhof: 8,30 km
  • Vina Haus: 100 m
  • Edeka Struve: 500 m
  • Gastwerk Hotel Hamburg: 800 m
  • Emilienstraße U2: 4,10 m
  • Bahrenfeld S 1/11: 600 m
  • S Bahrenfeld 16/621: 650 m