Beste Büros Logo
HafenCity
Merken
Objektnummer: 166

Ericus Contor | Weitblick neben dem Spiegel Haus

Büroflächen im Ericus Contor: markante Architektur mit Glasfassade, Blick auf Speicherstadt und HafenCity sowie begrünter Innenhof.

Ericusspitze 2-4

Objektbeschreibung

Das moderne Gebäude, dessen Spitze an einen Schiffsbug erinnert, überzeugt durch seine einzigartige Architektur. Die Glasfassade und die bodentiefen Fenster sorgen für viel Licht im innerhalb der Räumlichkeiten. Weiterhin spricht der Ausblick auf die Speicherstadt und weite Teile der HafenCity für sich. Das Ericus Contor verfügt über einen begrünten Innenhof, der allen Mietern zugänglich ist. Die Büroflächen sind hochwertig ausgestattet und lassen sich nach Mieterwunsch gestalten sowie ausbauen.

Lage

Das Ericus Contor bildet den Eingang der HafenCity und ist von Wasser umgeben. Die historische Speicherstadt befindet sich in der Sichtweise des Gebäudes. Viele Sehenswürdigkeiten, wie beispielsweise die Elbphilharmonie lassen sich fußläufig in wenigen Minuten erreichen. Der grüne Lohsepark ist nur 200 m entfernt und bietet die optimale Erholungsoase für die Pause. Weiterhin bietet das Café "Coffee & Snack World" in gemütlichem Ambiente Snacks und Getränke.
Besichtigungstermin anfragen

Weitere Angaben

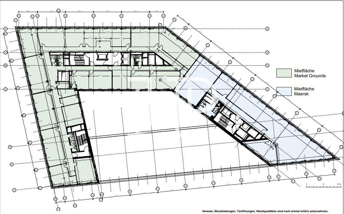
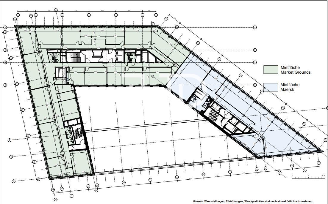
  • Verfügbare Fläche (ca.) 1.564 m2
  • Teilbare Fläche (ca.) 204 m2
  • Mietpreis ab 26,00€/m2 mtl.
  •  
  • Nebenkosten 6,00€/m2 mtl.
  • Verfügbarkeit langfristig (ab 5 Monate)
  •  
  • Energiepass liegt vor
  • Baujahr 2012
  • Provision* Provisionsfrei für den Mieter bei Anmietung von mind. 5 Jahren Laufzeit.

* Abhängig von der Mietdauer (siehe AGB)
Alle Preisangaben verstehen sich zzgl. der gesetzlichen USt.

Grundriss 4.OG:

Sie haben Fragen?
Wenden Sie sich gerne an:

Team HH


Tel.: +49 40 2286011-0
E-Mail: anfrage@hamburg-properties.com

HPC Hamburg Properties Consulting GmbH & Co. KG
Alter Wall 34-36
20457 Hamburg

Lage Kriterien

  • Airport Hamburg: 11,80 km
  • A1 : 8 km
  • Hauptbahnhof: 1 km
  • Wasserschloss Speicherstadt: 350 m
  • Edeka: 700 m
  • Adina Apartment Hotel : 600 m
  • U1 Meßberg: 500 m
  • S Jungfernstieg: 1600 m
  • Linie 2 Ericusspitze: 60 m