Beste Büros Logo
City
Merken
Objektnummer: 833

Hafenhof | Arbeiten im Portugiesenviertel

Vorsetzen 53

Objektbeschreibung

Der Hafenhof ist ein denkmalgeschütztes Gründerzeitgebäude von 1902, das nach einer umfassenden Sanierung 2017 historische Architektur mit modernem Bürostandard verbindet. Die Büroflächen überzeugen durch helle Räume, großzügige Fenster und flexible Grundrisse, die individuelle Raumkonzepte ermöglichen. Die Kombination aus historischem Charme und zeitgemäßer Ausstattung macht den Hafenhof zu einem repräsentativen Standort für anspruchsvolle Unternehmen.

Lage

Das Objekt befindet sich auf einem ortsbildprägenden Eckgrundstück an der Kreuzung Rambachstraße und Vorsetzen. Die Lage ist zentral und hervorragend angebunden – die U-Bahn-Station Landungsbrücken liegt nur wenige Schritte entfernt. In direkter Umgebung laden die Parkanlage "Michelwiese" sowie die Jan-Fedder-Promenade an der Elbe zu erholsamen Pausen ein. Das benachbarte Portugiesenviertel bietet zudem ein vielfältiges gastronomisches Angebot mit authentischen Spezialitäten.
Besichtigungstermin anfragen

Weitere Angaben

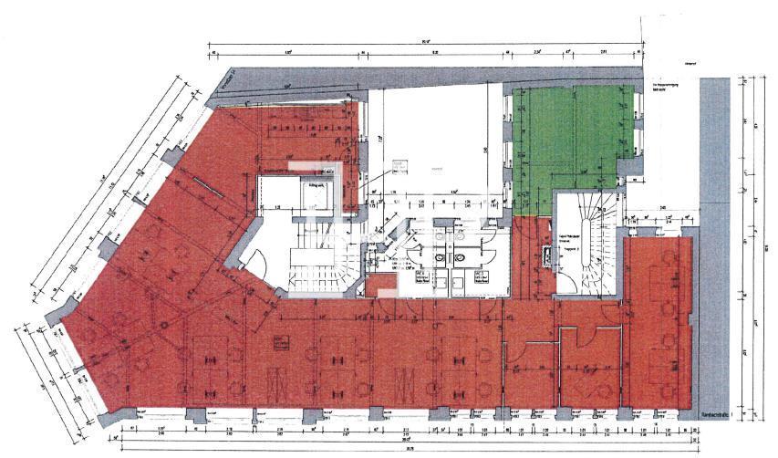
  • Verfügbare Fläche (ca.) 288 m2
  • Mietpreis ab 18,00€/m2 mtl.
  •  
  • Nebenkosten 5,20€/m2 mtl.
  •  
  • Energiepass befreit (Denkmalschutz)
  • Baujahr 1902
  • Provision* 3,0 Bruttomonatsmieten zzgl. ges. USt. für den Mieter.

* Abhängig von der Mietdauer (siehe AGB)
Alle Preisangaben verstehen sich zzgl. der gesetzlichen USt.

Grundriss 1. OG:

Sie haben Fragen?
Wenden Sie sich gerne an:

Team HH


Tel.: +49 40 2286011-0
E-Mail: anfrage@hamburg-properties.com

HPC Hamburg Properties Consulting GmbH & Co. KG
Alter Wall 34-36
20457 Hamburg

Lage Kriterien

  • Airport Hamburg: 12 km
  • A 255 Elbbrücken : 3,50 km
  • Hauptbahnhof: 3,10 km
  • Espresso House: 200 m
  • Frischemarkt Hafentor: 300 m
  • Hotel Hafen Hamburg: 650 m
  • Landungsbrücken (U3): 300 m
  • S Stadthausbrücke (S1, S3) : 350 m
  • Rambachstraße (Linie 2/111): 350 m