Beste Büros Logo
Alster-West
Merken
Objektnummer: 066

Zeughaus | Modern Workspace in Eppendorf

Moderne Bürolofts im Zeughaus Campus Hamburg-Eppendorf: Altbau trifft Neubau, hohe Decken, viel Licht, grüne Umgebung, Tiefgarage und gute Anbindung.

Christoph-Probst-Weg 1-4

Objektbeschreibung

Der Zeughaus Campus setzt sich aus einem Altbau und einem Neubau zusammen. Das historische Zeughaus ist ein Klinkerbau aus dem Jahre 1930, der im Jahr 2000 umfassend saniert wurde. Die modernen Bürolofts sind im Industriestil gestaltet und verfügen über eine Deckenhöhe von 6,33 m im unteren Bereich. Die Decken sind mit Akustikelementen ausgestattet und weisen Pendelleuchten auf. Große, bodentiefe Fensterfronten erfüllen die Räumlichkeiten mit Licht und sorgen für ein angenehmes Arbeitsklima. Terrassen und Innenhofflächen eignen sich für Pausen. Hier trifft Tradition auf Moderne.

Lage

Das Zeughaus Campus liegt zentral im lebendigen Stadtteil Eppendorf in Hamburg. Die Umgebung zeichnet sich durch Grünflächen wie den Eppendorfer Park aus, der fußläufig in 5 Minuten erreichbar ist. In der Tiefgarage des Objekts besteht die Möglichkeit, Stellplätze anzumieten. In unmittelbarer Umgebung befinden sich Restaurants wie das Schuhback am Park, das in 3 Fahrradminuten kulinarische Vielfalt bietet. Folgende Einkaufsmöglichkeiten für den täglichen Bedarf liegen in der Nähe: Edeka und weitere Geschäfte in 500 m Entfernung.
Für wen lohnt sich das Objekt?


Das Objekt eignet sich für Unternehmen, die flexible Loftbüros in ruhiger, grüner Lage suchen. Kreative Teams oder Firmen mit Fokus auf modernes Arbeiten profitieren von der industriellen Gestaltung, hohen Decken und der Nähe zu Parks sowie Nahversorgung. Die Anpassungsmöglichkeiten an Mieterwünsche machen es passend für Start-ups bis mittelgroße Betriebe.
Besichtigungstermin anfragen

Weitere Angaben

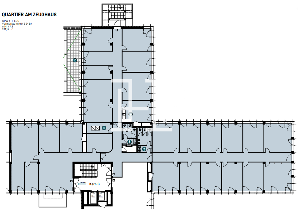
  • Verfügbare Fläche (ca.) 5.536 m2
  • Teilbare Fläche (ca.) 394 m2
  • Mietpreis ab 18,50€/m2 mtl.
  •  
  • Nebenkosten 4,50€/m2 mtl.
  • Verfügbarkeit kurzfristig (bis 4 Monate)
  •  
  • Energiepass liegt vor
  • Baujahr 1929
  • Provision* Provisionsfrei für den Mieter bei Anmietung von mind. 5 Jahren Laufzeit.

* Abhängig von der Mietdauer (siehe AGB)
Alle Preisangaben verstehen sich zzgl. der gesetzlichen USt.

Regelgeschoss Neubau:

Sie haben Fragen?
Wenden Sie sich gerne an:

Team HH


Tel.: +49 40 2286011-0
E-Mail: anfrage@hamburg-properties.com

HPC Hamburg Properties Consulting GmbH & Co. KG
Alter Wall 34-36
20457 Hamburg

Lage Kriterien

  • Flughafen Hamburg: 5,90 km
  • A 7: 4,50 km
  • Hauptbahnhof: 6,30 km
  • Geschwister Cafe: 800 m
  • Edeka Struve: 350 m
  • Im Zeughaus Quartier: 60 m
  • Lattenkamp: 1700 m
  • Rübenkamp: 1500 m
  • Frickestraße: 500 m

Weitere Vorschläge in Eppendorf

Vielleicht interessieren Sie sich auch für folgende Büroflächen: