Beste Büros Logo
Alster-West
Merken
Objektnummer: 479

Victoria Lofts | Gebäudeensemble mit Loftcharakter

Büro in Eppendorf, Alster-West gesucht? Ihre neue Adresse: Offakamp, Hamburg | 2171.64 qm, teilbar ab 393.34 qm, verfügbar: kurzfristig (bis 4 Monate)

Offakamp 7-9

Objektbeschreibung

Das aus 4 Gebäuden bestehende Ensemble überzeugt mit seiner modernen Architektur und präsentiert sich von außen mit einer Fassade aus echtem Wittmunder Klinker. Für ein hohes Maß an Repräsentativität sorgen im Eingangsbereich zwei Säulen aus der historischen Victoria Station in London. Hohe Decken mit einer Höhe von bis zu 6,10 m und große Fenster sorgen für natürliche Lichtverhältnisse. Das Objekt verfügt über eine flexible Aufteilung des Grundrisses, wodurch individuelle Raumsituationen möglich sind. Unterschiedliche Bürotypologien, von Einzel- über Großraumbüros bis hin zu modernen Arbeitswelten können so realisiert werden. Das Objekt tritt außerdem positiv in Erscheinung durch einen begrünten Innenhof und einen hauseigenen Dachgarten, welcher einen einzigartigen Blick über Hamburg bietet.

Lage

Das Objekt befindet sich im Hamburger Stadtteil Lokstedt, direkt angrenzend an Eppendorf und Groß Borstel. Es handelt sich hierbei um einen nachhaltigen Gewerbestandort.
Die Innenstadt erreichen Sie in ca. 20 Autominuten (ca. 7 km). Zahlreiche Restaurants und Möglichkeiten zum Small Shopping bietet der ca. 8 Autominuten entfernte Winterhuder Marktplatz.
Zum Verweilen in der Mittagspause lädt der Hayns Park ein, welcher in ca. 15 Gehminuten erreicht werden kann.

Besichtigungstermin anfragen

Weitere Angaben

  • Verfügbare Fläche (ca.) 2.172 m2
  • Teilbare Fläche (ca.) 393 m2
  • Mietpreis ab 21,00€/m2 mtl.
  •  
  • Nebenkosten 4,00€/m2 mtl.
  • Verfügbarkeit kurzfristig (bis 4 Monate)
  •  
  • Energiepass liegt vor
  • Baujahr 2025
  • Provision* Provisionsfrei für den Mieter bei Anmietung von mind. 5 Jahren Laufzeit.

* Abhängig von der Mietdauer (siehe AGB)
Alle Preisangaben verstehen sich zzgl. der gesetzlichen USt.

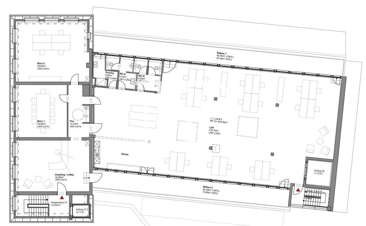
Grundriss 4. OG Offakamp Kontor:

Sie haben Fragen?
Wenden Sie sich gerne an:

Team HH


Tel.: +49 40 2286011-0
E-Mail: anfrage@hamburg-properties.com

HPC Hamburg Properties Consulting GmbH & Co. KG
Alter Wall 34-36
20457 Hamburg

Lage Kriterien

  • Airport Hamburg: 5,40 km
  • A7: 3,80 km
  • Hauptbahnhof: 6,50 km
  • Osteria Liguria: 1700 m
  • Edeka Center Struve Lokstedt: 350 m
  • Hotel Engel Hamburg: 1800 m
  • U1 Hudtwalckerstraße: 2000 m
  • S3/21 Langenfelde: 4400 m
  • Nedderfeld Center Linie 281: 400 m

Weitere Vorschläge in Eppendorf

Vielleicht interessieren Sie sich auch für folgende Büroflächen: