Beste Büros Logo
City
Merken
Objektnummer: 665

White Corner | Modernes Arbeitsumfeld

Büro in , City gesucht? Ihre neue Adresse: Ferdinandstraße, Hamburg | 133 qm, teilbar ab 133 qm, verfügbar:

Ferdinandstraße 47

Objektbeschreibung

Das Objekt wurde im Jahr 1956 erbaut und 2012 umfassend modernisiert. Das Bürohaus bietet aktuell eine moderne Bürofläche im 1. Obergeschoss des markanten Eckgebäudes. Die Räumlichkeiten zeichnen sich durch großzügige Fenster, weiße Wände und einen schwarzen Teppichboden aus. Zusätzlich stehen zwei WC-Anlagen und eine voll ausgestattete Pantry zur Verfügung. Das Gebäude ist mit einem Glasfaseranschluss ausgestattet. Die Kombination aus historischem Charme und zeitgemäßem Design schafft eine inspirierende Arbeitsumgebung.

Lage

Das Bürogebäude befindet sich inmitten der Hamburger Innenstadt, unmittelbar angrenzend an die Binnenalster. Gelegen in einer ruhigen Seitenstraße parallel zum Ballindamm bietet der Standort ein vielfältiges Angebot an Geschäften des täglichen Bedarfs sowie Cafés und Restaurants, wie z.B. das Sala Thai Restaurant. Das Objekt ist sowohl mit dem PKW als auch mit den öffentlichen Verkehrsmitteln gut zu erre ichen.
Besichtigungstermin anfragen

Weitere Angaben

  • Verfügbare Fläche (ca.) 133 m2
  • Mietpreis ab 20,30€/m2 mtl.
  •  
  • Nebenkosten 2,25€/m2 mtl.
  •  
  • Energiepass liegt vor
  • Baujahr 1956
  • Provision* 3,0 Bruttomonatsmieten zzgl. ges. USt. für den Mieter.

* Abhängig von der Mietdauer (siehe AGB)
Alle Preisangaben verstehen sich zzgl. der gesetzlichen USt.

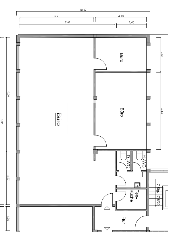
Grundriss:

Sie haben Fragen?
Wenden Sie sich gerne an:

Katharina Giercke

Katharina Giercke
Tel.: +49 40 2286011-0
E-Mail: anfrage@hamburg-properties.com

HPC Hamburg Properties Consulting GmbH & Co. KG
Alter Wall 34-36
20457 Hamburg

Lage Kriterien

  • Airport Hamburg: 10,70 km
  • Elbbrücken : 3,50 km
  • Hauptbahnhof: 0,50 km
  • Sala Thai Restaurant: 210 m
  • Edeka Wandelhalle: 500 m
  • Barcelo Hamburg : 50 m
  • U1/U3/U2 Hauptbahnhof: 500 m
  • S1/S2/S3 : 500 m
  • Jungfernstieg: 600 m