Beste Büros Logo
City
Merken
Objektnummer: 362

White Contor | Urban, etabliert, repräsentativ

Repräsentative Büroflächen in Hamburgs ABC-Straße: Stuckfassade, helle Räume, Dachterrasse und Toplage zwischen Gänsemarkt & Jungfernstieg.

ABC-Straße 4

Objektbeschreibung

In der traditionsreichen ABC-Straße präsentiert sich das Objekt mit einer eindrucksvollen, weißen Stuckfassade und repräsentativem Erscheinungsbild. Es fügt sich harmonisch in das hochwertige Umfeld aus Jugendstil-, Backstein- und moderner Architektur ein. Ein repräsentativer Eingangsbereich sowie ein Personenaufzug gewährleisten eine komfortable Erschließung. Die Büroflächen überzeugen durch offene Strukturen und großzügige Fenster mit viel Tageslicht. Die exklusive Dachterrasse im 5. Obergeschoss bildet das besondere Highlight für die Mieter des Dachgeschosses.

Lage

In erstklassiger Innenstadtlage zwischen Gänsemarkt und Jungfernstieg überzeugt das Objekt durch hervorragende Erreichbarkeit und ein hochwertiges Umfeld. Hohe Bleichen und Poststraße zählen zu den gefragtesten Adressen Hamburgs und bieten exklusiven Einzelhandel mit Marken wie Ralph Lauren und Seiko. Die optimale Anbindung an U- und S-Bahn gewährleistet schnelle Wege in alle Stadtteile. Gastronomische Angebote, darunter das Edmondo, sowie die fußläufig erreichbare Binnenalster unterstreichen die hohe Aufenthaltsqualität dieses Standorts.
Besichtigungstermin anfragen

Weitere Angaben

  • Verfügbare Fläche (ca.) 198 m2
  • Mietpreis ab 28,50€/m2 mtl.
  •  
  • Nebenkosten 4,50€/m2 mtl.
  •  
  • Energiepass liegt vor
  • Baujahr 1900
  • Provision* Provisionsfrei für den Mieter bei Anmietung von mind. 5 Jahren Laufzeit.

* Abhängig von der Mietdauer (siehe AGB)
Alle Preisangaben verstehen sich zzgl. der gesetzlichen USt.

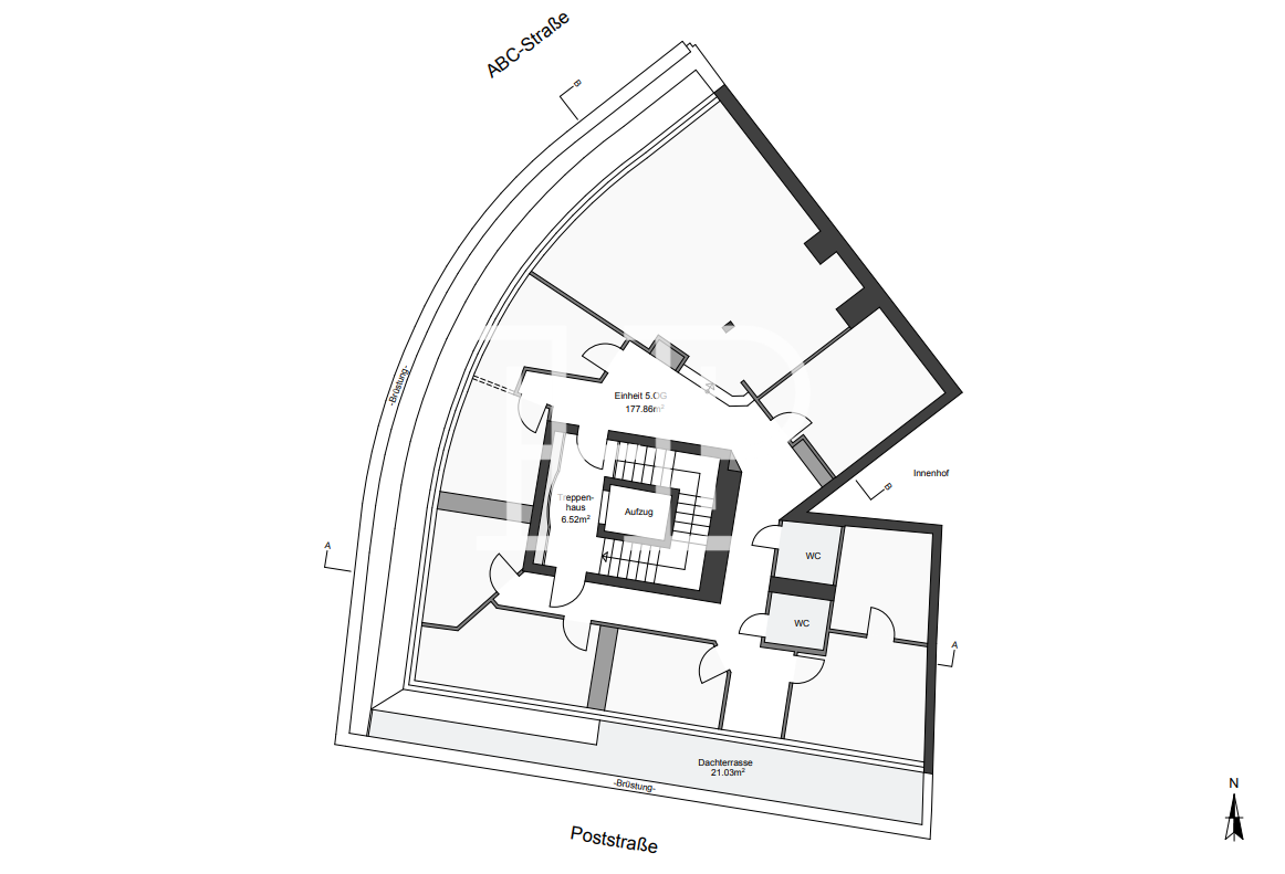
5. OG Grundriss:

Sie haben Fragen?
Wenden Sie sich gerne an:

Team HH


Tel.: +49 40 2286011-0
E-Mail: anfrage@hamburg-properties.com

HPC Hamburg Properties Consulting GmbH & Co. KG
Alter Wall 34-36
20457 Hamburg

Lage Kriterien

  • Airport Hamburg: 10,10 km
  • A1 Elbbrücken: 5,20 km
  • Hauptbahnhof: 1,50 km
  • Vapiano: 70 m
  • Edeka : 250 m
  • Marriott Hotel: 25 m
  • U2 Gänsemarkt: 160 m
  • S1/2/3 Jungfernstieg: 500 m
  • Linie 4/5/19 U Gänsemarkt: 210 m