Beste Büros Logo
City
Merken
Objektnummer: 311

Kontor Alter Wall | Business District

Modernes Büro- und Geschäftsgebäude am Alten Wall, Hamburg - zentrale Innenstadtlage, flexible und hochwertige Mietflächen.

Alter Wall 55

Objektbeschreibung

Mitarbeiter und Gäste des Hauses gelangen über einen repräsentativen Eingangsbereich in das Kontorhaus. Über einen der beiden Personenaufzüge wird der barrierefreie Zugang zu den Obergeschossen gewährleistet. Die zur Vermietung stehenden Büroflächen verfügen über eine modern ausgestattete Flächenqualität mit Echtholztüren und verglasten Oberlichtern. Aufgrund der Gebäudekubatur sind die Mietflächen effizient geschnitten und flexibel unterteilbar. Die Mietflächen können zudem nach Mieterwunsch ausgebaut werden.

Lage

Das Büro- und Geschäftsgebäude am Alten Wall liegt zentral gelegen inmitten der Hamburger Innenstadt. Vom Alten Wall 55 erreichen Gäste und Mitarbeiter fußläufig innerhalb von wenigen Gehminuten die U-Bahnstation Rödingsmarkt, von der man in nur zwei Stationen am Hauptbahnhof ist. Neben der S-Bahnstation Jungfernstieg bietet zudem die Station Stadthausbrücke die flexible Anreise mit den öffentlichen Verkehrsmitteln. Die Mittagspause können Mitarbeiter in den umliegenden Flaniermeilen, wie z.B. Jungfernstieg oder Neuer Wall verbringen.
Für wen lohnt sich das Objekt?



Das Büro- und Geschäftsgebäude am Alten Wall eignet sich für Unternehmen, die eine repräsentative Adresse in der Hamburger Innenstadt suchen. Die zentrale Lage mit sehr guter Anbindung an das öffentliche Verkehrsnetz, wie die U-Bahnstation Rödingsmarkt oder die S-Bahnstation Jungfernstieg, ist ideal für Firmen mit regelmäßigem Kunden- und Mitarbeiterverkehr. Die flexibel gestaltbaren Büroflächen mit moderner Ausstattung, wie Echtholztüren und verglaste Oberlichter, sowie die Nähe zu Flaniermeilen wie dem Jungfernstieg oder Neuen Wall bieten ein professionelles Umfeld für etablierte Unternehmen.
Besichtigungstermin anfragen

Weitere Angaben

  • Verfügbare Fläche (ca.) 985 m2
  • Teilbare Fläche (ca.) 385 m2
  • Mietpreis ab 24,00€/m2 mtl.
  •  
  • Nebenkosten 3,50€/m2 mtl.
  • Verfügbarkeit kurzfristig (bis 4 Monate)
  •  
  • Energiepass liegt vor
  • Baujahr 0
  • Provision* Provisionsfrei für den Mieter bei Anmietung von mind. 5 Jahren Laufzeit.

* Abhängig von der Mietdauer (siehe AGB)
Alle Preisangaben verstehen sich zzgl. der gesetzlichen USt.

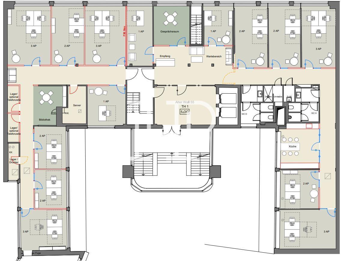
Grundriss 5. OG:

Sie haben Fragen?
Wenden Sie sich gerne an:

Team HH


Tel.: +49 40 2286011-0
E-Mail: anfrage@hamburg-properties.com

HPC Hamburg Properties Consulting GmbH & Co. KG
Alter Wall 34-36
20457 Hamburg

Lage Kriterien

  • Airport Hamburg: 11,70 km
  • Elbbrücken: 3,50 km
  • Hauptbahnhof: 2 km
  • Mélange : 350 m
  • EDEKA Schlemmer Markt: 280 m
  • Renaissance Hamburg: 400 m
  • Jungfernstieg U2/4: 600 m
  • Jungfernstieg S1/2/3: 600 m
  • Rödingsmarkt Linie 3/601/607: 200 m