Beste Büros Logo
City
Merken
Objektnummer: 938

Townhall Offices | Mit direktem Rathausblick

Büro in City, City gesucht? Ihre neue Adresse: Rathausstraße, Hamburg | 206 qm, teilbar ab 206 qm, verfügbar:

Rathausstraße 2

Objektbeschreibung

Das Büro- und Geschäftsgebäude verbindet die Rathausstraße mit der lebendigen Mönckebergstraße. Mitarbeiter und Besucher gelangen über einen repräsentativer Eingangsbereich und einem Personenaufzug bequem in die jeweiligen Mietflächen. Die Mietflächen können aufgrund der Wandstellungen in Leichtbauweise flexibel angepasst werden. Ein Ausbau erfolgt in Abstimmung mit dem Vermieter.

Lage

Das Objekt befindet sich nur wenige Meter entfernt vom Hamburger Rathaus. Zahlreiche gastronomische Angebote, wie z. B. das Café Paris laden zum Verweilen in der Mittagspause ein. Durch die zentrale Lage und die nahegelegene U-Bahnstation Rathaus wird eine sehr gute Anbindung an das öffentliche Verkehrsnetz geboten.
Besichtigungstermin anfragen

Weitere Angaben

  • Verfügbare Fläche (ca.) 206 m2
  • Mietpreis ab 29,00€/m2 mtl.
  •  
  • Nebenkosten 4,80€/m2 mtl.
  •  
  • Energiepass liegt vor
  • Baujahr 2006
  • Provision* Provisionsfrei für den Mieter bei Anmietung von mind. 5 Jahren Laufzeit.

* Abhängig von der Mietdauer (siehe AGB)
Alle Preisangaben verstehen sich zzgl. der gesetzlichen USt.

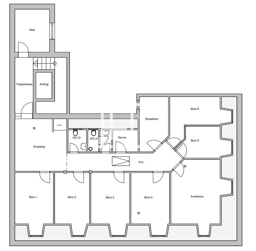
Grundriss 6. OG:

Sie haben Fragen?
Wenden Sie sich gerne an:

Team HH


Tel.: +49 40 2286011-0
E-Mail: anfrage@hamburg-properties.com

HPC Hamburg Properties Consulting GmbH & Co. KG
Alter Wall 34-36
20457 Hamburg

Lage Kriterien

  • Flughafen Hamburg: 17,80 km
  • A255: 4,20 km
  • Hauptbahnhof: 1 km
  • Viet Bowl Hamburg: 240 m
  • REWE : 200 m
  • HENRI Hotel Hamburg Downtown : 500 m
  • U3 Rathaus: 69 m
  • Jungfernstieg S1/2/3/21/31: 400 m
  • Jungfernstieg Linie 602/688/X3: 400 m