Beste Büros Logo
Alster-Ost
Merken
Objektnummer: 1037

Stadtvilla Winterhude | Arbeiten in einer Villa

Moderne Bürovilla in Hamburg: 428 m² Gesamtfläche, ab 134 m² teilbar. Hochwertige Ausstattung mit Balkon, kurzfristig beziehbar.

Dorotheenstraße 42

Objektbeschreibung

Die Bürovilla überzeugt mit einer modernen Architektur. Ein großzügiger Eingang ermöglicht einen repräsentativen Empfang von Gästen. Die hellen und modernen Büroflächen bieten hohe Decken und einen Vinyl-Fußboden in Holzoptik. Durch große Fensterfronten entstehen helle Arbeitsplätze. Die Büroräume überzeugen durch Balkone und Terrassen, moderne Teeküchen sowie getrennte WCs. Die Raumaufteilung ist variabel und passt sich an die jeweilige Unternehmensstruktur an.

Lage

Das Objekt befindet sich in zentraler Lage in Hamburg-Winterhude. In unmittelbarer Umgebung befinden sich Restaurants, wie zum Beispiel am benachbarten Mühlenkamp. Im nur wenige Gehminuten entfernten Supermarkt besteht die Möglichkeit, Einkäufe für den täglichen Bedarf zu erledigen. Fußläufig erreicht man in wenigen Gehminuten die Außenalster. Eine sehr gute Anbindung an das öffentl. Verkehrsnetz ist gegeben.
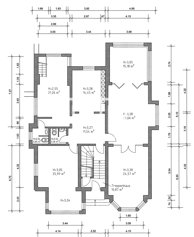
Diese repräsentative Bürovilla in der Dorotheenstraße 42 bietet durch ihre flexible Raumaufteilung und die Befristung bis zum 31.12.2029 optimale Bedingungen für Projektteams, aufstrebende Unternehmen oder Agenturen, die für einen mittelfristigen Zeitraum einen sehr guten Standort in Hamburg suchen. Die Gesamtmietfläche von ca. 428 m² erstreckt sich über das Erdgeschoss, das erste Obergeschoss sowie das Untergeschoss. Da die Flächen flexibel teilbar sind – im Erdgeschoss ab ca. 151 m² und im 1. Obergeschoss ab ca. 134 m² – eignet sich die Immobilie hervorragend für Unternehmen, die separate Abteilungen abbilden möchten, oder für Firmen, die nur eine der beiden Etagen anmieten wollen.Die Kombination aus dem historischen Charakter einer Villa und dem modernen Standard der Innenausstattung schafft ein professionelles Arbeitsumfeld. Hohe Decken und ein ansprechender Vinyl-Fußboden in Holzoptik sorgen für eine hochwertige Arbeitsatmosphäre. Mitarbeiter profitieren von den vorhandenen Außenflächen wie Balkonen und Terrassen, die sich optimal für erholsame Pausen an der frischen Luft eignen. Darüber hinaus erleichtern die voll ausgestatteten, modernen Teeküchen und die getrennten WCs den Büroalltag in den Mietflächen erheblich.Finanziell bietet das Objekt mit einem Mietpreis von 20,00 EUR/m² für die Gesamtfläche beziehungsweise 22,00 EUR/m² bei geteilter Anmietung (jeweils zzgl. 3,50 EUR/m² Nebenkostenvorauszahlung und 19 % MwSt.) eine klare und transparente Kalkulationsgrundlage. Da der Bezug der Büroräume kurzfristig realisierbar ist, richtet sich dieses Angebot besonders an Betriebe, die zeitnah eine funktionale Geschäftsadresse in einer gefragten Lage beziehen möchten. Die Immobilie überzeugt insgesamt durch ihre durchdachte Struktur und die sehr gute Anbindung an das öffentl. Verkehrsnetz.
Besichtigungstermin anfragen

Weitere Angaben

  • Verfügbare Fläche (ca.) 428 m2
  • Teilbare Fläche (ca.) 151 m2
  • Mietpreis ab 20,00€/m2 mtl.
  •  
  • Nebenkosten 3,50€/m2 mtl.
  •  
  • Energiepass befreit (Denkmalschutz)
  • Baujahr 0
  • Provision* Provisionsfrei für den Mieter bei Anmietung von mind. 5 Jahren Laufzeit.

* Abhängig von der Mietdauer (siehe AGB)
Alle Preisangaben verstehen sich zzgl. der gesetzlichen USt.

Regelgeschoss:

Sie haben Fragen?
Wenden Sie sich gerne an:

Team HH


Tel.: +49 40 2286011-0
E-Mail: anfrage@hamburg-properties.com

HPC Hamburg Properties Consulting GmbH & Co. KG
Alter Wall 34-36
20457 Hamburg

Lage Kriterien

  • Airport Hamburg: 6,90 km
  • A24: 6,80 km
  • Hauptbahnhof: 4,20 km
  • Chez Xinh: 50 m
  • REWE: 700 m
  • Hotel Cristobal: 50 m
  • Sierichstraße, U3: 1200 m
  • Alte Wöhr, S1: 3000 m
  • Dorotheenstraße, 17, 19: 700 m