Beste Büros Logo
City
Merken
Objektnummer: 068

Sprinkenhof | Kontorhaus Tradition trifft Moderne

Büroflächen im Sprinkenhof im Kontorhausviertel: Backsteinexpressionismus, UNESCO-Welterbe, zentrale Lage nahe Hauptbahnhof und Speicherstadt.

Burchardstraße 8-14

Objektbeschreibung

Der Sprinkenhof zählt zu den architektonisch herausragenden Gebäuden der Hansestadt. Das Gebäude wurde im Baustil des Backsteinexpressionismus errichtet und wird von Keramiken, mit Motiven aus Wirtschaft, Handel und Verkehr verziert. Die Büros verfügen alle über einen hohen Standard und sind durch die vielen Fenster hell und freundlich. Die Büroflächen lassen sich nach Mieterwunsch flexibel ausbauen. Somit besteht die Möglichkeit, verschiedene Raumkonzepte, wie Open-Space-Büros, oder Einzelbüros umzusetzen.

Lage

Der historische Sprinkenhof befindet sich im Hamburger Kontorhausviertel, welches, zusammen mit der Speicherstadt, zum Unesco-Welterbe zählt. Das Objekt überzeugt durch seine exzellente Lage, zwischen Hauptbahnhof und Speicherstadt. Im Sprinkenhof selbst befinden sich Restaurants, wie der Italiener "Chiao Bella". Die nahe Umgebung ist geprägt durch zahlreiche Cafes und Geschäfte. Die Speicherstadt lässt sich fußläufig in wenigen Minuten erreichen und auch die Mönckebergstraße ist nur 500 m entfernt.
Für wen lohnt sich das Objekt?


Das Objekt eignet sich für Dienstleistungsunternehmen und Kanzleien, die eine repräsentative Adresse in historischem Ambiente mit flexiblen Büroflächen schätzen. Es passt zu Firmen, die von der fußläufigen Erreichbarkeit der Speicherstadt in wenigen Minuten und der Nähe zum Hauptbahnhof profitieren sowie von Annehmlichkeiten wie dem Restaurant im Sprinkenhof und Parkplätzen im nur wenigen Metern entfernten Parkhaus Hauptbahnhof.
Besichtigungstermin anfragen

Weitere Angaben

  • Verfügbare Fläche (ca.) 5.200 m2
  • Teilbare Fläche (ca.) 308 m2
  • Mietpreis von 19,00€/m2 bis 22,00€/m2 mtl.
  •  
  • Nebenkosten 4,80€/m2 mtl.
  •  
  • Energiepass liegt vor
  • Baujahr 1929
  • Provision* Provisionsfrei für den Mieter bei Anmietung von mind. 5 Jahren Laufzeit.

* Abhängig von der Mietdauer (siehe AGB)
Alle Preisangaben verstehen sich zzgl. der gesetzlichen USt.

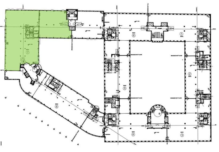
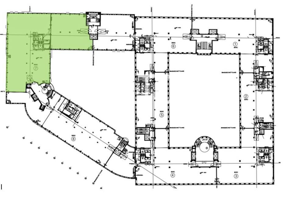
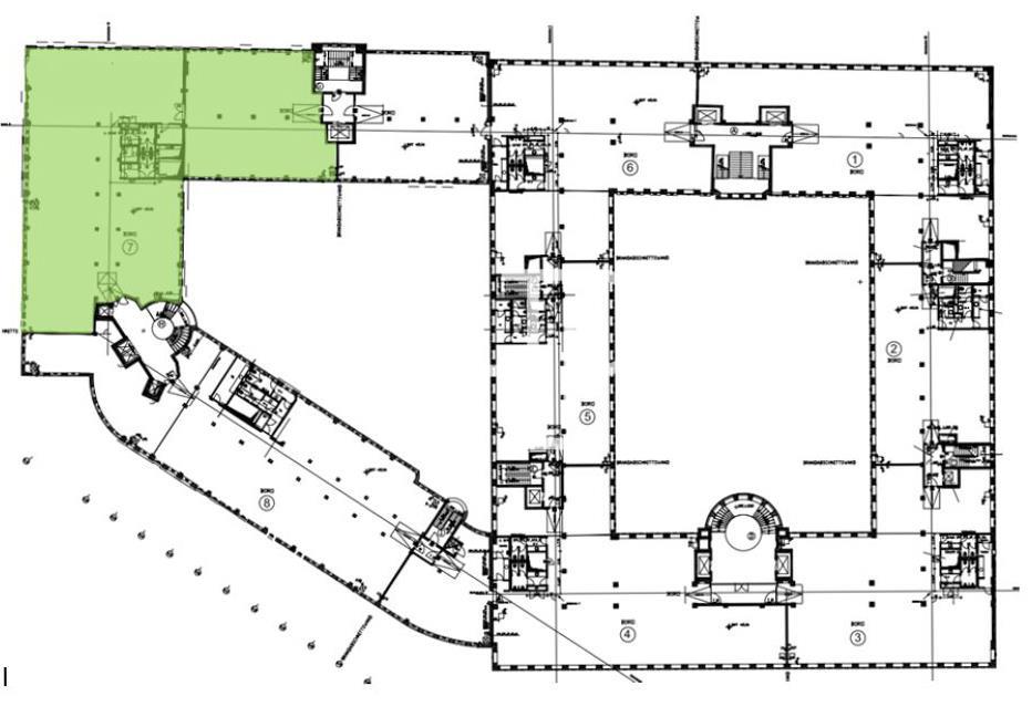
Normalgeschoss:

Sie haben Fragen?
Wenden Sie sich gerne an:

Team HH


Tel.: +49 40 2286011-0
E-Mail: anfrage@hamburg-properties.com

HPC Hamburg Properties Consulting GmbH & Co. KG
Alter Wall 34-36
20457 Hamburg

Lage Kriterien

  • Flughafen Hamburg: 11,70 km
  • A24: 5,20 km
  • Hauptbahnhof: 900 km
  • Körri Speisekontor: 20 m
  • REWE : 450 m
  • Park Hyatt Hamburg: 450 m
  • Meßberg: 200 m
  • Jungfernstieg: 1000 m
  • Meßberg: 200 m