Beste Büros Logo
City
Merken
Objektnummer: 179

Rappolthaus | Ihre Praxis in der Mönckebergstraße

Mönckebergstraße 11

Objektbeschreibung

Das 1912 vom Architekten Fritz Höger erbaute Rappolthaus bleibt durch seine hanseatische rote Backsteinfassade in Erinnerung. Über einen Personenaufzug gelangen Sie bequem in die Obergeschosse. Das Gebäude verfügt zudem über einen stilvollen sowie repräsentativen Empfang. Die Räumlichkeiten verfügen über eine gute Belichtung und lassen sich nach Mieterwunsch gestalten. Eine Nutzung als Arztpraxis ist ebenfalls denkbar.

Lage

Das Kontorhaus befindet sich in zentraler Lage in der Mönckebergstraße, einer der beliebtesten Einkaufsstraßen Hamburgs. Zahlreiche Geschäfte und Cafés, wie zum Beispiel das Café Levante, befinden sich in direkter Umgebung. Durch den 300 m entfernten Hauptbahnhof verfügt dieses Objekt über eine sehr gute Anbindung an das öffentliche Verkehrsnetz.
Für wen lohnt sich das Objekt?



Das Rappolthaus eignet sich für Unternehmen, die eine zentrale Lage an der Mönckebergstraße suchen. Die sehr gute Anbindung über den 300 m entfernten Hauptbahnhof ist ideal für Firmen mit regelmäßigem Kundenverkehr. Die flexibel gestaltbaren, lichtdurchfluteten Mietflächen und die Nähe zu Geschäften sowie Restaurants wie dem Café Levante bieten ein professionelles Umfeld für etablierte Unternehmen und Arztpraxen.
Besichtigungstermin anfragen

Weitere Angaben

  • Verfügbare Fläche (ca.) 1.542 m2
  • Teilbare Fläche (ca.) 382 m2
  • Mietpreis ab 23,50€/m2 mtl.
  •  
  • Nebenkosten 4,00€/m2 mtl.
  • Verfügbarkeit kurzfristig (bis 4 Monate)
  •  
  • Energiepass liegt vor
  • Baujahr 1912
  • Provision* Provisionsfrei für den Mieter bei Anmietung von mind. 5 Jahren Laufzeit.

* Abhängig von der Mietdauer (siehe AGB)
Alle Preisangaben verstehen sich zzgl. der gesetzlichen USt.

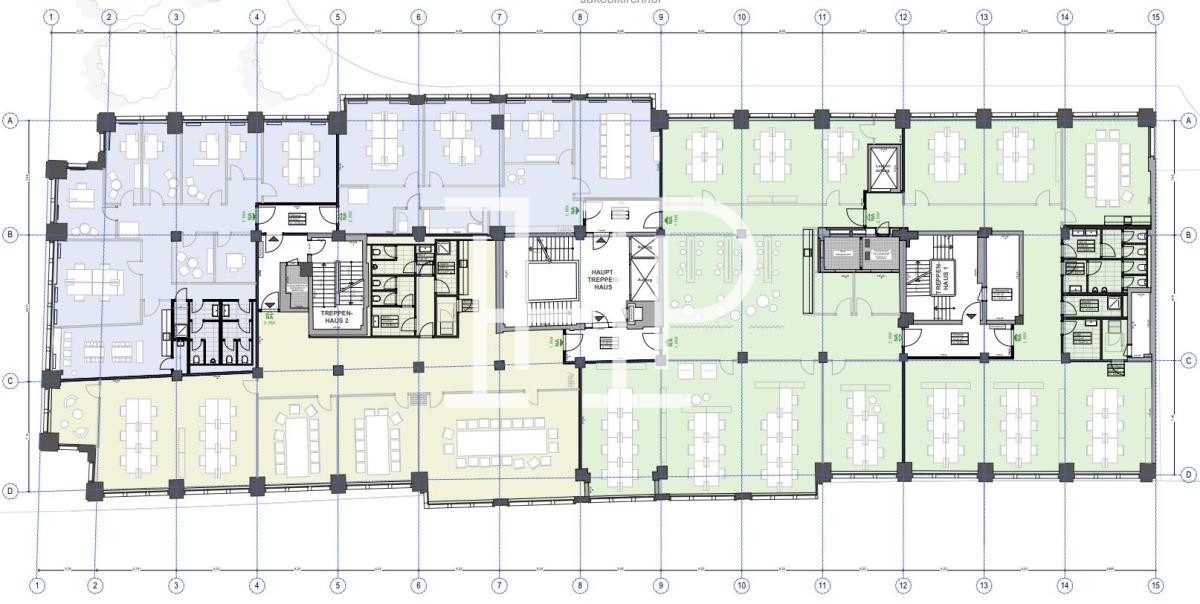
Regelgeschossplan:

Sie haben Fragen?
Wenden Sie sich gerne an:

Team HH


Tel.: +49 40 2286011-0
E-Mail: anfrage@hamburg-properties.com

HPC Hamburg Properties Consulting GmbH & Co. KG
Alter Wall 34-36
20457 Hamburg

Lage Kriterien

  • Airport Hamburg: 10,60 km
  • A 255: 5 km
  • Hauptbahnhof: 700 km
  • Starbucks: 70 m
  • REWE : 350 m
  • Park Hyatt Hamburg: 230 m
  • Mönckebergstraße: 70 m
  • Hauptbahnhof: 700 m
  • Gerhart-Hauptmann-Platz: 120 m