Beste Büros Logo
City
Merken
Objektnummer: 152

Nobelshof | Blick auf die Speicherstadt

Büro in City, City gesucht? Ihre neue Adresse: Zippelhaus, Hamburg | 1273.7 qm, teilbar ab 226 qm, verfügbar: kurzfristig (bis 4 Monate)

Zippelhaus 5

Objektbeschreibung

Der historische Nobel`s Hof wurde im Jahre 1535 erbaut und überzeugt durch seine stilvolle Fassade. Im Zippelhaus wird die Historie mit dem Modernen vereint. Hervorzuheben ist zudem der Blick auf die Speicherstadt und den Fleet. Durch die vielen Fenster sind die Räumlichkeiten von Licht erfüllt und wirken freundlich. Die Büroflächen sind nach dem heutigen Standard ausgebaut, lassen sich jedoch flexibel nach Mieterwunsch verändern.

Lage

Der Nobel`s Hof ist Teil des Zippelhauses und liegt direkt gegenüber der Speicherstadt. Die Umgebung zeichnet sich aus durch ihr typisch hanseatisches Flair. In der nahen Umgebung befinden sich kulinarisch vielfältige Restaurants, wie z.B. das Restaurant Heldenplatz. Aber auch die Kaffeerösterei "public coffee roasters" bietet leckeren Kaffee und Snacks für die Pause. Der grüne Domplatz ist nur 400 m entfernt und lädt zum Verweilen ein.
Besichtigungstermin anfragen

Weitere Angaben

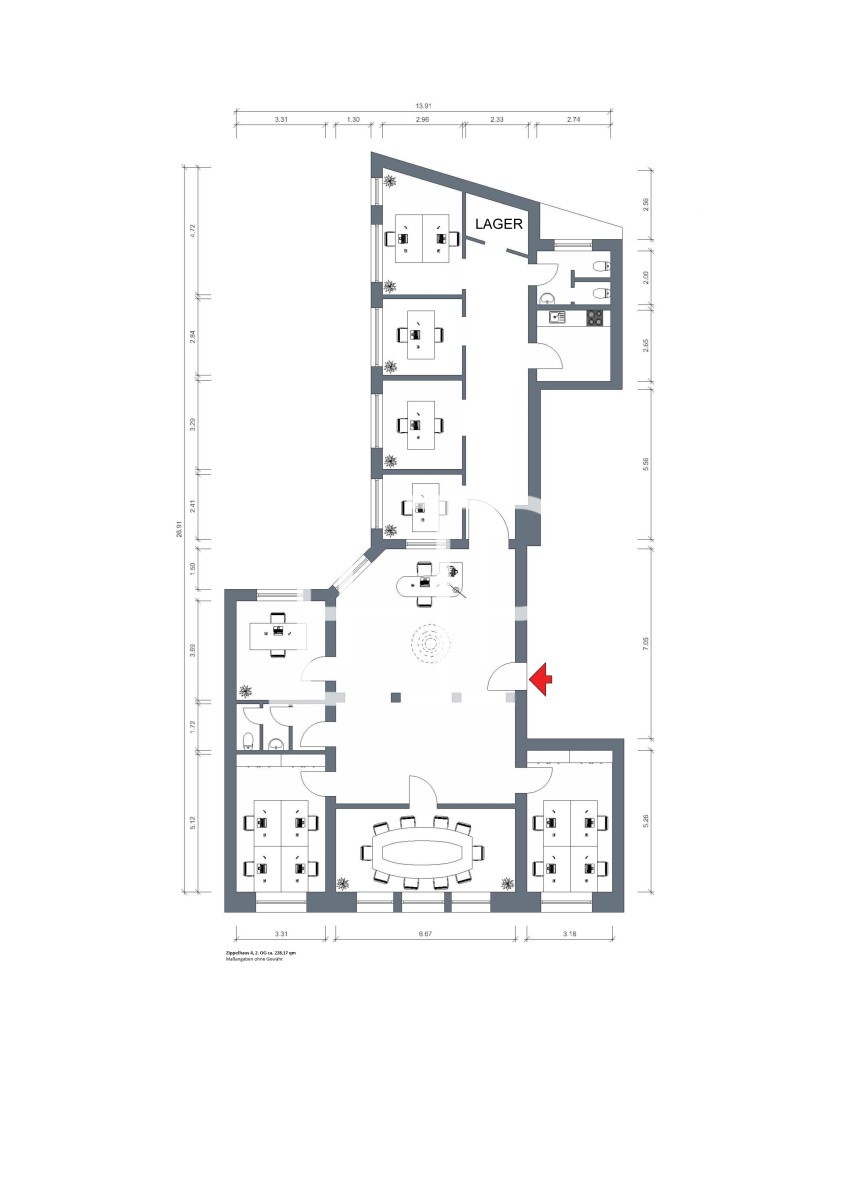
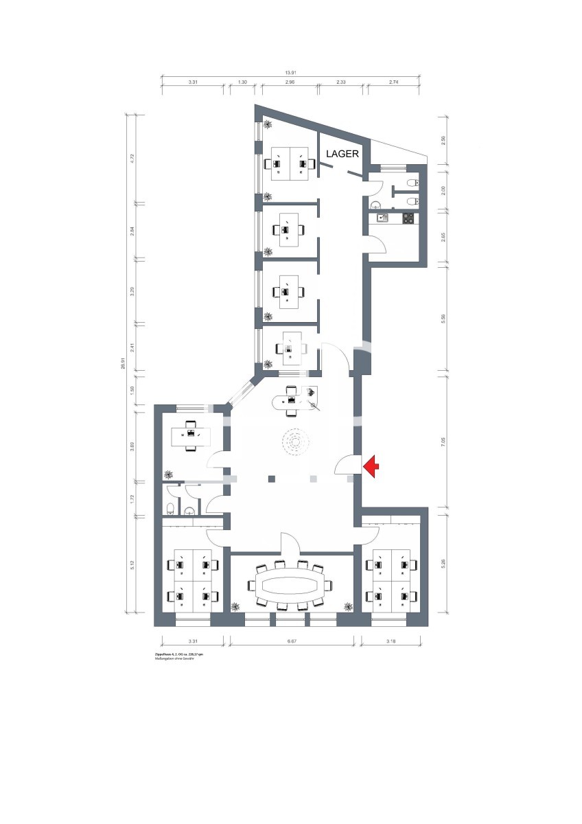
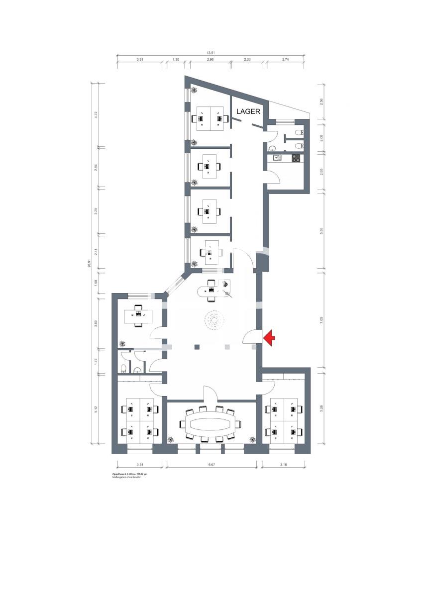
  • Verfügbare Fläche (ca.) 1.274 m2
  • Teilbare Fläche (ca.) 226 m2
  • Mietpreis ab 14,51€/m2 mtl.
  •  
  • Nebenkosten 3,50€/m2 mtl.
  • Verfügbarkeit kurzfristig (bis 4 Monate)
  •  
  • Energiepass befreit (Denkmalschutz)
  • Baujahr 1894
  • Provision* Provisionsfrei für den Mieter bei Anmietung von mind. 5 Jahren Laufzeit.

* Abhängig von der Mietdauer (siehe AGB)
Alle Preisangaben verstehen sich zzgl. der gesetzlichen USt.

Regelgeschoss Zippelhaus 5:

Sie haben Fragen?
Wenden Sie sich gerne an:

Team HH


Tel.: +49 40 2286011-0
E-Mail: anfrage@hamburg-properties.com

HPC Hamburg Properties Consulting GmbH & Co. KG
Alter Wall 34-36
20457 Hamburg

Lage Kriterien

  • Airport Hamburg: 11 km
  • A7: 8 km
  • Hauptbahnhof: 1,80 km
  • Schönes Leben Speicherstadt: 150 m
  • Edeka Böcker: 500 m
  • Adina Apartment Hotel: 140 m
  • U1 Meßberg: 400 m
  • S Jungfernstieg: 800 m
  • Brandstwiete: 100 m