Beste Büros Logo
City Süd
Merken
Objektnummer: 263

Lindley Carree | Ruhig und direkt am Wasser

Moderne Büroflächen im Lindley Carrée in der City Süd: flexible Grundrisse, hochwertige Ausstattung und sehr gute Anbindung an S-Bahn Hammerbrook.

Sachsenstraße 4 - 8

Objektbeschreibung

Das im Jahre 2010 erbaute Büro- und Geschäftsgebäude überzeugt durch seine attraktive sowie moderne Architektur. Die Mietflächen verfügen über einen hochwertigen Ausstattungsstandard und können in Abstimmung mit dem Vermieter individuell nach Mieterwunsch ausgebaut werden. Das Objekt verfügt zudem über eine hauseigene Tiefgarage, in der PKW-Stellplätze angemietet werden können. Ein weiteres Highlight ist der begrünte Innenhof, welcher über eine zum Fleet ausgerichtete Terrasse verfügt.

Lage

Das Lindley Carree befindet sich inmitten des beliebten Stadtteil Hammerbrook, direkt am Fleet. Der Büropark ist aufgrund der nahegelegenen S-Bahn-Station Hammerbrook optimal an das Verkehrsnetz angebunden. Die Umgebung bietet ein vielfältiges Angebot an Restaurants und Cafés. Das "VITAMINGO" befindet sich beispielsweise direkt im Haus und bietet eine gesunde Auswahl an frischer Speisen für die Pause.
Für wen lohnt sich das Lindley Carrée?


Das Lindley Carrée ist ideal für Unternehmen, die moderne Büroflächen mit repräsentativem Charakter in der City Süd suchen. Flexible Grundrisse, lichtdurchflutete Räume und hochwertige Technik schaffen optimale Bedingungen für Beratungen, Agenturen, Dienstleister oder Finanzunternehmen. Die exzellente Anbindung an den ÖPNV, die Nähe zur Innenstadt und eine gute Erreichbarkeit der Autobahnen machen den Standort besonders attraktiv – sowohl für Mitarbeiter als auch für Kunden.
Besichtigungstermin anfragen

Weitere Angaben

  • Verfügbare Fläche (ca.) 6.499 m2
  • Teilbare Fläche (ca.) 150 m2
  • Mietpreis ab 16,50€/m2 mtl.
  •  
  • Nebenkosten 3,75€/m2 mtl.
  • Verfügbarkeit kurzfristig (bis 4 Monate)
  •  
  • Energiepass liegt vor
  • Baujahr 2011
  • Provision* Provisionsfrei für den Mieter bei Anmietung von mind. 5 Jahren Laufzeit.

* Abhängig von der Mietdauer (siehe AGB)
Alle Preisangaben verstehen sich zzgl. der gesetzlichen USt.

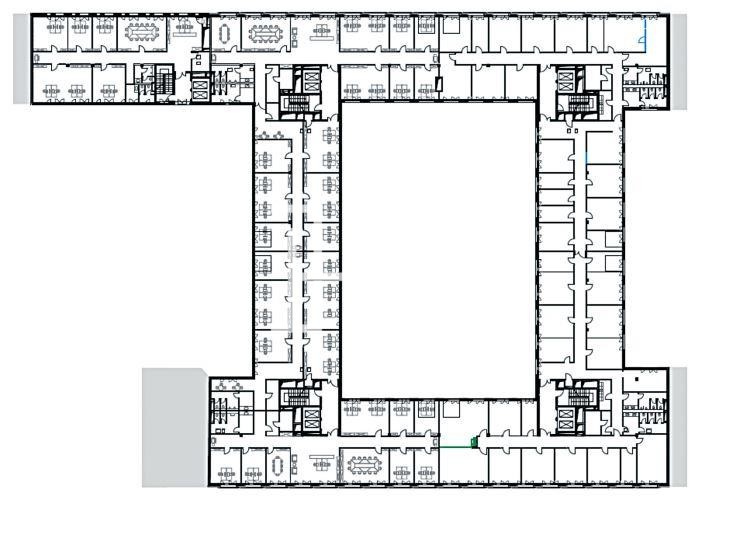
Regelgeschoss:

Sie haben Fragen?
Wenden Sie sich gerne an:

Team HH


Tel.: +49 40 2286011-0
E-Mail: anfrage@hamburg-properties.com

HPC Hamburg Properties Consulting GmbH & Co. KG
Alter Wall 34-36
20457 Hamburg

Lage Kriterien

  • Airport Hamburg: 11,80 km
  • Elbbrücken: 2 km
  • Hauptbahnhof: 1,50 km
  • VITAMINGO: m
  • Edeka Niemerszein: 800 m
  • Mercure Hotel: 750 m
  • Berliner Tor (U2, U3, U4): 1100 m
  • S Hammerbrook (S3/S5): 120 m
  • S-Hammerbrook Linie (Linie 112, 255): 130 m