Beste Büros Logo
City
Merken
Objektnummer: 256

Gartenhaus X3 | Sofort verfügbar!!

Moderne Büroflächen mit Glasfassade: ruhige Innenhoflage, große Fenster und flexible Grundrisse in zentraler Lage.

Hohe Bleichen 13

Das Objekt "Gartenhaus X3 | Sofort verfügbar!!" steht aktuell leider nicht zur Vermietung. Bitte kontaktieren Sie uns für weitere Informationen.

Objektbeschreibung

Das repräsentative Gebäude verfügt über eine moderne Fassade mit großen Glaselementen. Über den stilvollen Eingangsbereich gelangen Sie zu Ihrer Mietfläche. Die Büroflächen sind teilweise zum ruhigen Innenhof ausgerichtet und bieten daher ein angenehmes Arbeitsklima. Großzügige Fenster ermöglichen einen weitreichenden Lichteinfall in allen Räumen. Die Gestaltung des Büros kann individuell nach Mieterwunsch, in Absprache mit dem Vermieter, erfolgen. Genießen Sie die Ruhe inmitten der Großstadt.

Lage

Das Objekt befindet sich in unmittelbarer Nähe zum Hamburger Passagenviertel und ist umgeben von zahlreichen Boutiquen und größeren Geschäften, wie z.B. Riviera Maison. Trotz der zentralen Innenstadtlage ist es in der Straße ruhig. In fußläufiger Entfernung befinden sich der Gänsemarkt, sowie der Jungfernstieg. Das Restaurant Edmondo befindet sich in direkter Nachbarschaft und bietet italienische Spezialitäten in stilvollem Ambiente.
Besichtigungstermin anfragen

Weitere Angaben

  • Verfügbare Fläche (ca.) 228 m2
  • Mietpreis ab 23,00€/m2 mtl.
  •  
  • Nebenkosten 7,50€/m2 mtl.
  •  
  • Energiepass liegt vor
  • Baujahr 2005
  • Provision* Provisionsfrei für den Mieter bei Anmietung von mind. 5 Jahren Laufzeit.

* Abhängig von der Mietdauer (siehe AGB)
Alle Preisangaben verstehen sich zzgl. der gesetzlichen USt.

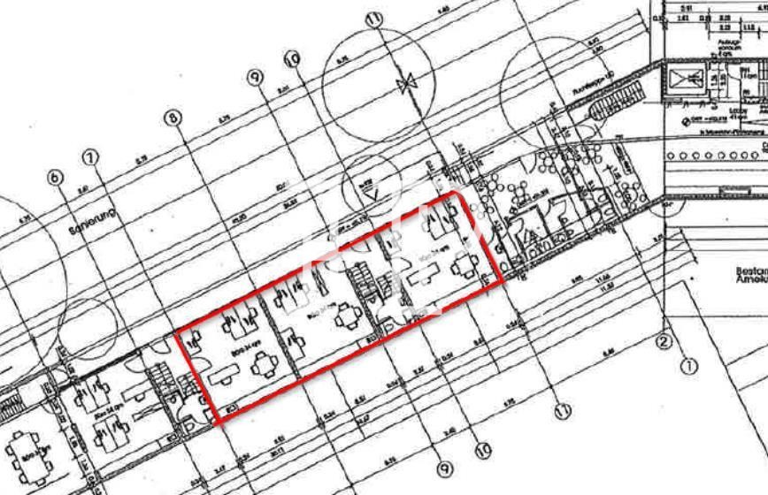
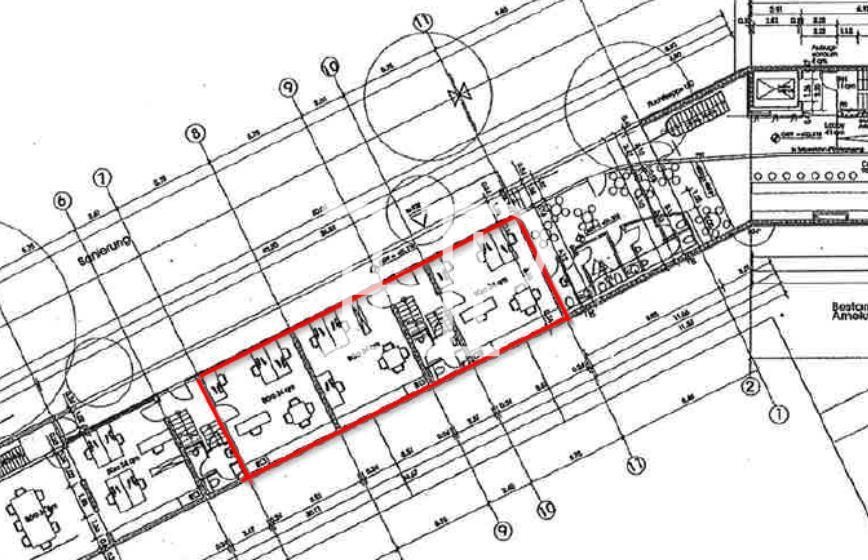
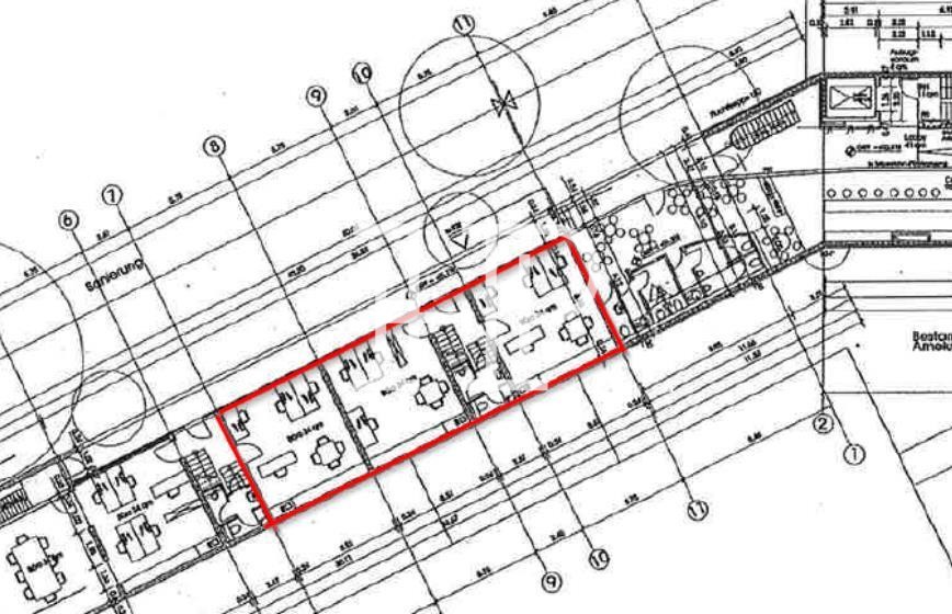
Grundriss EG:

Sie haben Fragen?
Wenden Sie sich gerne an:

Team HH


Tel.: +49 40 2286011-0
E-Mail: anfrage@hamburg-properties.com

HPC Hamburg Properties Consulting GmbH & Co. KG
Alter Wall 34-36
20457 Hamburg

Lage Kriterien

  • Airport Hamburg: 10,20 km
  • A24: 6,90 km
  • Hauptbahnhof: 3 km
  • Area 10: 180 m
  • EDEKA Struve: 200 m
  • Renaissance Hamburg: 210 m
  • Jungfernstieg: 500 m
  • Jungfernstieg: 500 m
  • Axel-Springer-Platz: 270 m