Beste Büros Logo
City
Merken
Objektnummer: 148

Fleethaus am Herrengraben | Direkte Wasserlage

Moderne Büroflächen am Herrengrabenfleet: repräsentativer Eingang, große Fenster, hohe Technik und Skydeck-Dachterrasse mit Fleetblick.

Herrengraben 30-31

Objektbeschreibung

Das 2016 sanierte Objekt am Herrengrabenfleet überzeugt mit einem grundlegend modernen Außenbild. Über einen repräsentativen Eingangsbereich und einen Personenaufzug gelangen Sie in die Räumlichkeiten im Obergeschoss. Die Büroflächen verfügen über eine hohe technische Ausstattung und haben aufgrund der großen Fensterfronten viel Tageslichteinfall. Als Highlight gilt die begehbare und zur Fleetseite ausgerichtete Skydeck-Dachterrasse.

Lage

Das Kontorhaus liegt direkt am Herrengrabenfleet in der Hamburger City. Der Neue Wall, sowie das Portugiesenviertel mit zahlreichen kleinen Cafés, sind fußläufig in nur wenigen Minuten zu erreichen. Hafencity und Speicherstadt sind zudem in Sichtweite. Durch die zentrale Lage und die nahegelegene S-Bahnstation Stadthausbrücke, verfügt das Objekt über eine sehr gute Anbindung an das öffentliche Verkehrsnetz.
Besichtigungstermin anfragen

Weitere Angaben

  • Verfügbare Fläche (ca.) 222 m2
  • Mietpreis ab 23,50€/m2 mtl.
  •  
  • Nebenkosten 3,50€/m2 mtl.
  •  
  • Energiepass liegt vor
  • Baujahr 1993
  • Provision* Provisionsfrei für den Mieter bei Anmietung von mind. 5 Jahren Laufzeit.

* Abhängig von der Mietdauer (siehe AGB)
Alle Preisangaben verstehen sich zzgl. der gesetzlichen USt.

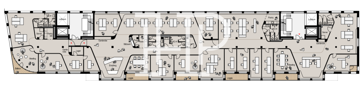
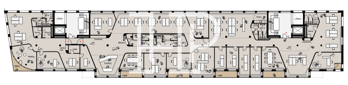
Regelgeschoss (Beispiel 1. OG):

Sie haben Fragen?
Wenden Sie sich gerne an:

Team HH


Tel.: +49 40 2286011-0
E-Mail: anfrage@hamburg-properties.com

HPC Hamburg Properties Consulting GmbH & Co. KG
Alter Wall 34-36
20457 Hamburg

Lage Kriterien

  • Airport Hamburg: 12,30 km
  • A 255: 5,30 km
  • Hauptbahnhof: 2,40 km
  • Gastronomie: 100 m
  • EDEKA : 650 m
  • The Madison Hotel Hamburg: 100 m
  • U3 Baumwall : 350 m
  • S 1/2/3/21 Stadthausbrücke: 500 m
  • Linie 2/6/111 U Baumwall: 300 m