Beste Büros Logo
City Süd
Merken
Objektnummer: 177

Doppel-X-Haus | Helle Büroflächen am Mittelkanal

Büroflächen im Doppel-X-Haus von Hadi Teherani: markante Glasarchitektur mit Wintergärten, viel Tageslicht und flexibel ausbaubaren Grundrissen.

Heidenkampsweg 58

Objektbeschreibung

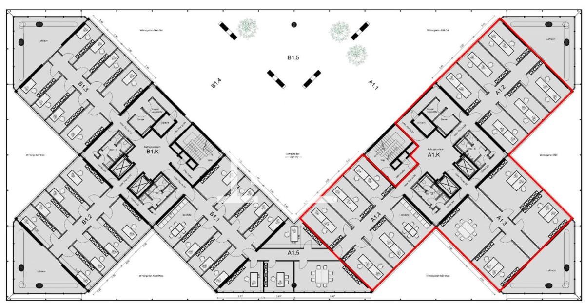
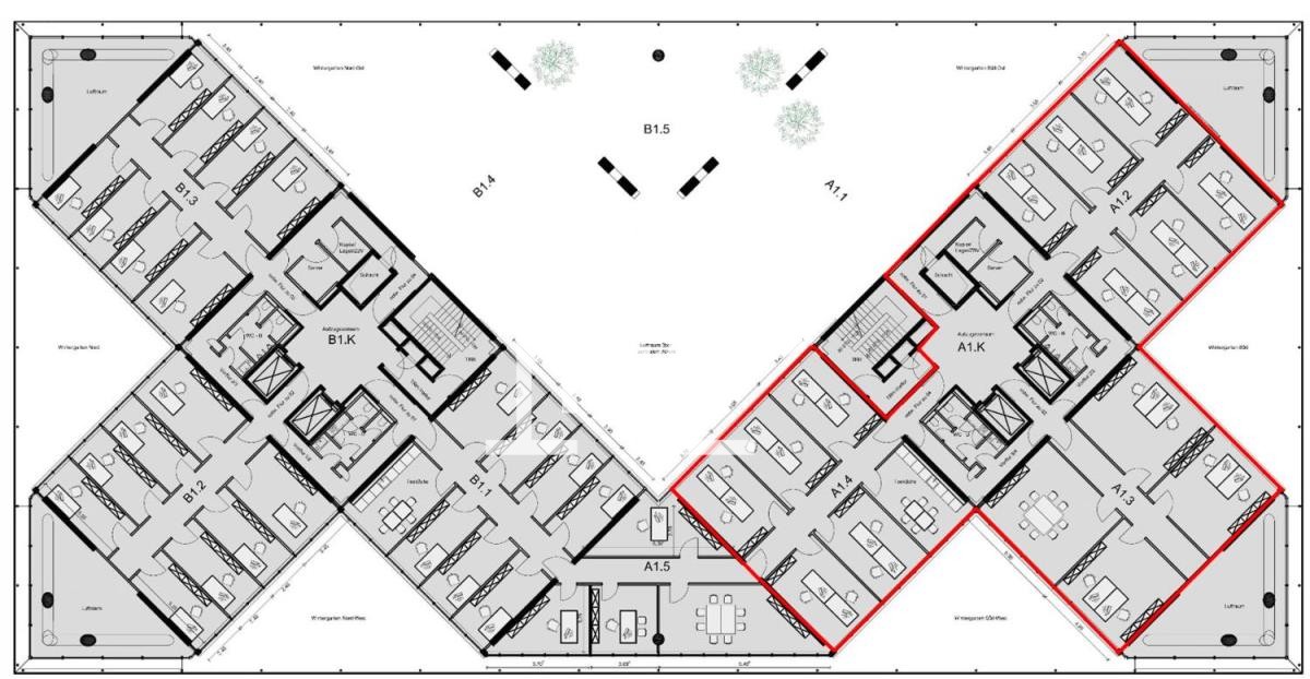
Das von Hadi Teherani geplante Doppel-X-Haus überzeugt durch seine einzigartige Architektur, die doppel X-förmige Grundrisse aufweist. Weiterhin ist das Gebäude von einer gläsernen Hülle umschlossen, die dem Gebäude eine gewisse Leichtigkeit verleiht. Besonders hervorzuheben sind die Wintergärten, welche auf jeder Etage aufzufinden sind. Beide Gebäudehälften werden durch sieben Meter hohe Etagengärten, die mit Magnolien, Bambus, Azaleen und Zitruspflanzen bepflanzt wurden, verbunden. Durch die gläserne Gestaltung sind die Büroräume mit Tageslicht erfüllt. Die Flächen lassen sich flexibel nach Mieterwunsch ausbauen.

Lage

Das Doppel-X-Haus befindet sich am Hochwasserbassin im Herzen von Hammerbrook. Die Grünanlage Stoltenpark lässt sich fußläufig in nur 5 Minuten erreichen und lädt zum Verweilen in der Mittagspause ein. Eine gute Anbindung an das öffentliche Verkehrsnetz ist durch die nahegelegene S-Bahnstation Hammerbrook gewährleistet. Die Maya Kaffeerösterei ist nur 400 m entfernt und bietet Kaffeespezialitäten, sowie kleine Köstlichkeiten.
Besichtigungstermin anfragen

Weitere Angaben

  • Verfügbare Fläche (ca.) 549 m2
  • Mietpreis ab 14,50€/m2 mtl.
  •  
  • Nebenkosten 7,00€/m2 mtl.
  • Verfügbarkeit nach Absprache
  •  
  • Energiepass liegt vor
  • Baujahr 1999
  • Provision* Provisionsfrei für den Mieter bei Anmietung von mind. 5 Jahren Laufzeit.

* Abhängig von der Mietdauer (siehe AGB)
Alle Preisangaben verstehen sich zzgl. der gesetzlichen USt.

Regelgeschossplan:

Sie haben Fragen?
Wenden Sie sich gerne an:

Team HH


Tel.: +49 40 2286011-0
E-Mail: anfrage@hamburg-properties.com

HPC Hamburg Properties Consulting GmbH & Co. KG
Alter Wall 34-36
20457 Hamburg

Lage Kriterien

  • Airport Hamburg: 11 km
  • A1: 6 km
  • Hauptbahnhof: 2 km
  • Bistro Olivio: 190 m
  • Edeka: 900 m
  • Stadthotel Hamburg: 800 m
  • U2/3/4 Berliner Tor: 850 m
  • Hammerbrook: 550 m
  • Wendenstraße: 130 m