Beste Büros Logo
City
Merken
Objektnummer: 569

Colonnaden Palais | Stilvolle Altbauflächen

Büro in City, City gesucht? Ihre neue Adresse: Colonnaden, Hamburg | 1008 qm, teilbar ab 176 qm, verfügbar:

Colonnaden 21-25

Objektbeschreibung

Die angebotene Büroflächen befinden sich in den Bürogeschossen des historischen Gebäudes. Es handelt sich um ein Patrizierhaus aus dem Jahre 1879 mit einer preisgekrönten Fassadengestaltung. Die Flügelfenster sorgen für helle Räumlichkeiten und eine angenehme und großzügige Arbeitsatmosphäre. Die Bürofläche erreichen Sie über einen der zwei Aufzüge oder das beeindruckende Treppenhaus.

Lage

Das Objekt befindet sich inmitten einer vielfältigen Auswahl an erstklassigen Restaurants und Cafés, wie die Condi Lounge des Hotel Vier Jahreszeiten. Die Binnenalster mit Jungfernstieg ist nur 150 m entfernt. Die Anbindung an den öffentlichen Nahverkehr ist aufgrund naheliegender U- und S- Bahnstationen wie z.B. Stephansplatz sehr gut. Der Gänsemarkt mit dem Opernboulevard ist ebenso fußläufig erreichbar - hier erwarten Sie viele Geschäfte, Cafés und Restaurants.
Besichtigungstermin anfragen

Weitere Angaben

  • Verfügbare Fläche (ca.) 1.008 m2
  • Teilbare Fläche (ca.) 176 m2
  • Mietpreis ab 32,00€/m2 mtl.
  •  
  • Nebenkosten 4,00€/m2 mtl.
  •  
  • Energiepass befreit (Denkmalschutz)
  • Baujahr 1879
  • Provision* Provisionsfrei für den Mieter bei Anmietung von mind. 5 Jahren Laufzeit.

* Abhängig von der Mietdauer (siehe AGB)
Alle Preisangaben verstehen sich zzgl. der gesetzlichen USt.

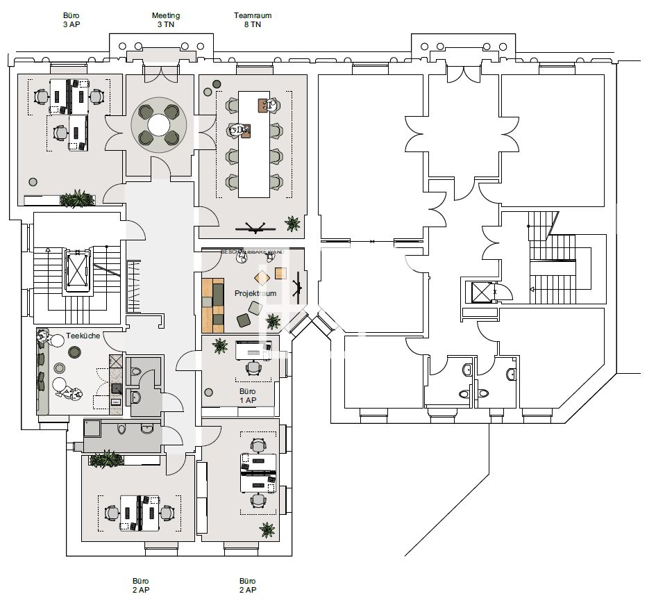
Grundriss möbliert:

Sie haben Fragen?
Wenden Sie sich gerne an:

Team HH


Tel.: +49 40 2286011-0
E-Mail: anfrage@hamburg-properties.com

HPC Hamburg Properties Consulting GmbH & Co. KG
Alter Wall 34-36
20457 Hamburg

Lage Kriterien

  • Airport Hamburg: 9,50 km
  • A7: 6,10 km
  • Hauptbahnhof: 1,50 km
  • L'Osteria Hamburg Opernplaza: 300 m
  • EDEKA Struve: 650 m
  • Renaissance Hotel: 700 m
  • U1 Stephansplatz: 110 m
  • S21/31 Dammtor: 500 m
  • U Stephansplatz Linie 4, 5, 19: 110 m