Beste Büros Logo
City
Merken
Objektnummer: 351

Burstah Lofts | Repräsentativ im Nikolaiviertel

Büroflächen im Nikolaiviertel am Großen Burstah: flexible Grundrisse und Dachterrassen mit Blick über die Hamburger Innenstadt.

Großer Burstah 34

Objektbeschreibung

Die insgesamt acht oberirdischen Geschosse des Objektes umfassen das Erdgeschoss mit Einzelhandels- und Showroomflächen und sieben Obergeschossen mit überwiegender Wohnnutzung. Das Erdgeschoss bietet eine durchdachte Gebäudestruktur, die nutzenorientierte und effiziente Aufteilungsmöglichkeiten ermöglicht. Individuelle Raumplanungen und Flächenkonzepte sind hier sowohl im Erdgeschoss als auch im Fleetgeschoss realisierbar.

Lage

Südlich der Mönckebergstraße und gleich rechts von Rathaus und Börse liegt das Nikolaiviertel. Prächtige Kontorhäuser und moderne Bürobauten prägen das Straßenbild. Der "Große Burstah", etwa 100 Meter von der Nikolaikirche entfernt, bildet das Zentrum des Viertels und war früher eine der Haupteinkaufsstraßen der Stadt. Heute ist er Teil des neu gebildeten Business Improvement District Nikolaiquartier. Das Objekt lässt sich sehr gut mit dem ÖPNV als auch mit dem PKW erreichen.
Für wen lohnt sich das Objekt?


Das Objekt am Großen Burstah eignet sich besonders für Einzelhändler, Showroom-Betreiber und Unternehmen, die flexible Flächen in Hamburgs zentralem Nikolaiviertel suchen. Die durchdachte Gebäudestruktur ermöglicht individuelle Raumkonzepte, ideal für Geschäfte mit hoher Kundenfrequenz. Die exzellente Erreichbarkeit per ÖPNV und PKW sowie die repräsentative Lage nahe Rathaus und Börse machen es attraktiv für Unternehmer, die Prestige und Zugänglichkeit schätzen.
Besichtigungstermin anfragen

Weitere Angaben

  • Verfügbare Fläche (ca.) 618 m2
  • Mietpreis ab 27,00€/m2 mtl.
  •  
  • Nebenkosten 4,15€/m2 mtl.
  • Verfügbarkeit kurzfristig (bis 4 Monate)
  •  
  • Energiepass liegt vor
  • Baujahr 0
  • Provision* 3,0 Bruttomonatsmieten zzgl. ges. USt. für den Mieter.

* Abhängig von der Mietdauer (siehe AGB)
Alle Preisangaben verstehen sich zzgl. der gesetzlichen USt.

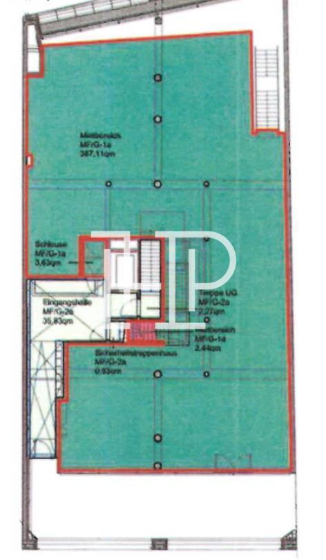
Grundriss EG:

Sie haben Fragen?
Wenden Sie sich gerne an:

Team HH


Tel.: +49 40 2286011-0
E-Mail: anfrage@hamburg-properties.com

HPC Hamburg Properties Consulting GmbH & Co. KG
Alter Wall 34-36
20457 Hamburg

Lage Kriterien

  • Airport Hamburg: 12,30 km
  • Elbbrücken: 5 km
  • Hauptbahnhof: 1,20 km
  • Tagliere e Vino: 270 m
  • Edeka Schlemmer Markt: 10 m
  • Steigenberger Hotel Hamburg : 260 m
  • Rödingsmarkt U3: 140 m
  • Stadthausbrücke S1/2/3/31: 260 m
  • U-Rödingsmarkt Linie 3/601/607: 10 m