Beste Büros Logo
HafenCity, 01 City
Merken
Objektnummer: 265

Boa Vista | Erstklassige Aussicht auf den Hafen

Moderne Büroflächen im Boa Vista Hamburg – Toplage an der Elbe, flexible Grundrisse, repräsentative Architektur und urbanes Arbeiten mit Hafenblick.

Vorsetzen 32 - 35

Objektbeschreibung

Das Büro- und Geschäftsgebäude präsentiert sich von außen mit einer modernen Fassade, die sich hervorragend an die nähere Umgebung anpasst. Mitarbeiter und Besucher des Hauses gelangen bequem über den Eingangsbereich mit einem der Personenaufzüge in die jeweilige Büroetage. Die Mietflächen und die Gemeinschaftsflächen des Hauses befinden sich in einem sehr gepflegten und neuwertigen Zustand. Innerhalb der Mietfläche ist eine offene Raumstruktur oder auch eine Zellenstruktur, nach Absprache mit dem Vermieter, abbildbar. Das Highlight der Mietfläche ist eine gemeinschaftlich nutzbare Dachterrasse, die einen einzigartigen Blick auf die Elbphilharmonie ermöglicht.

Lage

Das Büro- und Geschäftsgebäude Boa Vista liegt zentral gelegen in der Hansestadt Hamburg, unmittelbar an der U-Bahnstation Baumwall. Direkt angrenzend zum Objekt befindet sich die Parkanlage "Michelwiese" sowie die Elbpromenade, die zum Verweilen in der Mittagspause einladen. Ebenfalls bietet das Umfeld ein vielfältiges Angebot an Geschäften des täglichen Bedarfs sowie Cafés und Restaurants, wie z.B. das "ALEX Hamburg".
Für wen lohnt sich das Boa Vista?

Das Boa Vista Hamburg richtet sich an Unternehmen, die Wert auf repräsentatives Arbeiten in bester Lage legen. Zwischen Hafen und Innenstadt verbinden die modernen Büroflächen urbanes Flair mit hanseatischer Gelassenheit. In direkter Nähe zu den Landungsbrücken, mit optimaler U- und S-Bahn-Anbindung sowie einem beeindruckenden Blick auf die Elbe und die Elbphilharmonie, überzeugt das Boa Vista als Standort mit höchster Aufenthalts- und Arbeitsqualität. Ob kreative Agentur, Beratungshaus oder etabliertes Unternehmen – hier finden Sie ein Arbeitsumfeld, das Ausblick, Lage und Funktionalität perfekt vereint. Das Boa Vista bietet Raum für Ideen, Begegnung und Produktivität – mitten im Herzen Hamburgs.
Besichtigungstermin anfragen

Weitere Angaben

  • Verfügbare Fläche (ca.) 4.001 m2
  • Teilbare Fläche (ca.) 177 m2
  • Mietpreis von 23,00€/m2 bis 32,00€/m2 mtl.
  •  
  • Nebenkosten 4,75€/m2 mtl.
  •  
  • Energiepass liegt vor
  • Baujahr 2001
  • Provision* Provisionsfrei für den Mieter bei Anmietung von mind. 5 Jahren Laufzeit.

* Abhängig von der Mietdauer (siehe AGB)
Alle Preisangaben verstehen sich zzgl. der gesetzlichen USt.

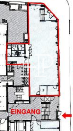
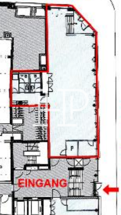
Erdgeschoss:

Sie haben Fragen?
Wenden Sie sich gerne an:

Team HH


Tel.: +49 40 2286011-0
E-Mail: anfrage@hamburg-properties.com

HPC Hamburg Properties Consulting GmbH & Co. KG
Alter Wall 34-36
20457 Hamburg

Lage Kriterien

  • Airport Hamburg: 12 km
  • Elbbrücken: 3,50 km
  • Hauptbahnhof: 3 km
  • ALEX Hamburg: 220 m
  • REWE: 240 m
  • THE MADSON Hotel: 400 m
  • Baumwall (U3): 220 m
  • Landungsbrücken (S1, S2, S3): 450 m
  • U Baumwall (Linie 2, 111): 210 m