Beste Büros Logo
City
Merken
Objektnummer: 580

Ballin III | Büro mit direktem Alsterblick

Büro in City, City gesucht? Ihre neue Adresse: Ballindamm, Hamburg | 0 qm, teilbar ab 290 qm, verfügbar: kurzfristig (bis 4 Monate)

Ballindamm 3

Objektbeschreibung

Das Gebäude überzeugt durch seine edle Natursteinfassade mit großflächigen Fensterelementen. Die angebotene Bürofläche befindet sich im 8. OG des Gebäudes Ballin III. Die modernen Räumlichkeiten verfügen über eine effiziente Raumaufteilung und ermöglichen stilvolles Arbeiten. Das Highlight der Bürofläche ist der unverwechselbare Ausblick auf die Hamburger Binnenalster. Auf Wunsch kann die angebotene Mietfläche möbliert mit USM-/Vitra-Möbeln übernommen werden. Jedes Büro verfügt über Bodentanks.

Lage

Das Bürogebäude Ballin III befindet sich in repräsentativer Lage, direkt angrenzend an die Binnenalster. Die fußläufige Umgebung bietet ein vielfältiges Angebot an Geschäften des täglichen Bedarfs sowie Cafés und Restaurants, wie z. B. das Bistro Ballintimes. Das Objekt verfügt über eine ausgezeichnete infrastrukturelle Anbindung.
Besichtigungstermin anfragen

Weitere Angaben

  • Teilbare Fläche (ca.) 290 m2
  • Mietpreis ab 28,50€/m2 mtl.
  •  
  • Nebenkosten 5,30€/m2 mtl.
  • Verfügbarkeit kurzfristig (bis 4 Monate)
  •  
  • Energiepass liegt vor
  • Baujahr 2017
  • Provision* Provisionsfrei für den Mieter bei Anmietung von mind. 5 Jahren Laufzeit.

* Abhängig von der Mietdauer (siehe AGB)
Alle Preisangaben verstehen sich zzgl. der gesetzlichen USt.

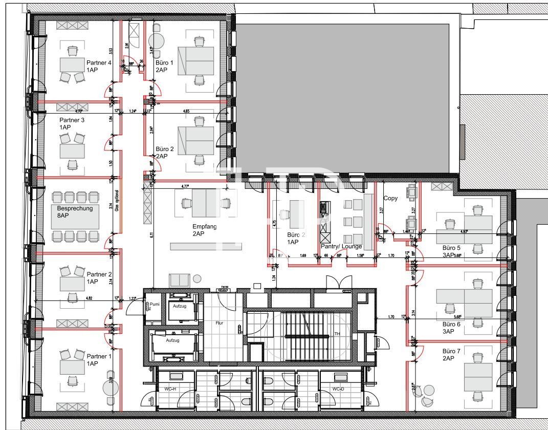
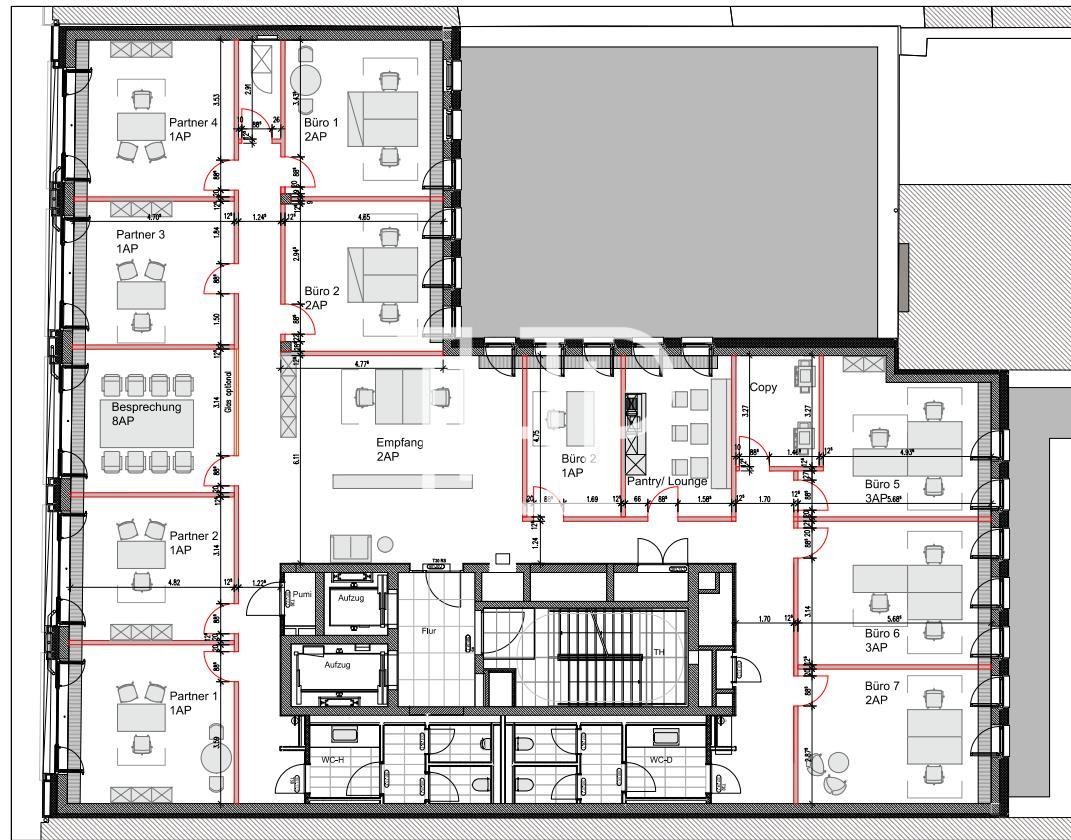
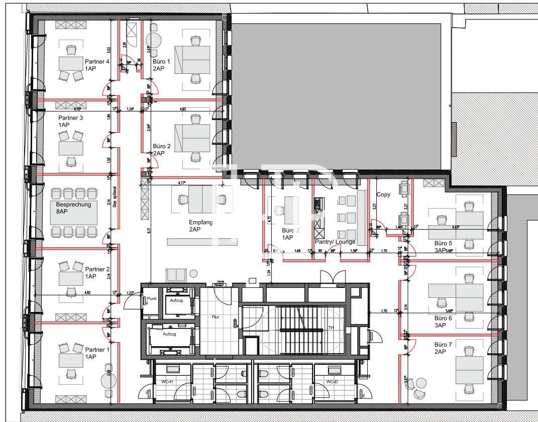
Grundriss 3. OG:

Sie haben Fragen?
Wenden Sie sich gerne an:

Team HH


Tel.: +49 40 2286011-0
E-Mail: anfrage@hamburg-properties.com

HPC Hamburg Properties Consulting GmbH & Co. KG
Alter Wall 34-36
20457 Hamburg

Lage Kriterien

  • Airport Hamburg: 10,70 km
  • Elbbrücken: 3,50 km
  • Hauptbahnhof: 0,50 km
  • Sala Thai Restaurant: 190 m
  • Edeka Wandelhalle: 500 m
  • Barcelo Hamburg: 100 m
  • Hauptbahnhof: 500 m
  • Hauptbahnhof : 500 m
  • Jungfernstieg : 600 m