Beste Büros Logo
City
Merken
Objektnummer: 432

Ansgarhof | Attraktive Büroflächen am Gänsemarkt

Büroflächen in der Hamburger City: hanseatischer Klinkerstil mit Dachterrasse und Innenhof, flexible Grundrisse nahe Alster und Rathaus.

Valentinskamp 18-20

Objektbeschreibung

Das Bürogebäude überzeugt mit seinem traditionellen hanseatischen Baustil. Von außen präsentiert sich das Gebäude mit einer zeitlosen Klinkerfassade. Der einladende und repräsentative Eingangsbereich ermöglicht einen idealen Empfang von Kunden und Geschäftspartnern. Das Objekt verfügt über eine effiziente Aufteilung des Grundrisses, wodurch individuelle Raumsituationen innerhalb des Gebäudes möglich sind. Das Objekt tritt außerdem positiv in Erscheinung durch einen begrünten Innenhof und eine Dachterrasse, welche einen einzigartigen Blick über Hamburg bietet.

Lage

Der Ansgarhof befindet sich im Herzen der Hamburger City, zwischen der Alster und den Wallanlagen. Die Binnenalster, der neue Wall und das Rathaus sind fußläufig zu erreichen und bieten zusätzlich zum Jungfernstieg zahlreiche Einkaufsmöglichkeiten. Zur Mittagspause laden kulinarisch vielfältige Restaurants ein, wie zum Beispiel das Vapiano oder die New York Bagel Bar, welche neben Bagels auch Kaffeespezialitäten anbietet. Der Park Planten un Blomen ist nur 450 m entfernt.
Der Ansgarhof in der Hamburger City ist die perfekte Büroadresse für Unternehmen, die eine traditionsbewusste, repräsentative Lage mit hanseatischem Flair suchen und gleichzeitig von urbaner Vielfalt und Grünflächen profitieren möchten. Besonders attraktiv ist das Objekt für etablierte Kanzleien, Steuerberatungen, Anwaltsbüros oder klassische Dienstleister, die Kunden in einem seriösen, einladenden Ambiente empfangen wollen – der hanseatische Klinkerstil und der repräsentative Eingang vermitteln sofort Vertrauen und Professionalität.
Auch mittelständische Firmen aus Handel, Immobilienwirtschaft oder Finanzberatung finden hier ideale Bedingungen: Die fußläufige Erreichbarkeit von Rathaus, Gerichten, Banken und Behörden spart wertvolle Zeit, während der Jungfernstieg und zahlreiche Restaurants wie Vapiano oder die New York Bagel Bar ein abwechslungsreiches Mittagsangebot bieten. Teams schätzen die Work-Life-Balance durch den nur 450 m entfernten Park Planten un Blomen sowie den begrünten Innenhof – ideale Orte für Pausen, Meetings im Freien oder einfach zum Abschalten.
Die flexible Raumaufteilung macht den Ansgarhof interessant für Unternehmen in der Wachstumsphase, die individuelle Bürostrukturen brauchen, ohne auf Qualität zu verzichten. Besonders lohnenswert ist die Dachterrasse mit einzigartigem Hamburg-Blick: Sie eignet sich hervorragend für Firmenevents, Teambuilding oder repräsentative Kundentermine und hebt die Adresse auf ein exklusives Niveau. Internationale Unternehmen oder Niederlassungen schätzen die zentrale City-Lage als perfekten Einstieg in den Hamburger Markt.
Zusammengefasst: Wer eine Mischung aus hanseatischer Tradition, moderner Flexibilität und urbaner Lebensqualität sucht – mit Grünflächen, Gastronomie und Top-Anbindung direkt vor der Tür –, für den lohnt sich der Ansgarhof uneingeschränkt. Die Immobilie strahlt Beständigkeit aus und fördert gleichzeitig Mitarbeiterzufriedenheit durch die einzigartigen Außenbereiche. Eine Adresse, die Professionalität, Komfort und hanseatischen Charme vereint.
Besichtigungstermin anfragen

Weitere Angaben

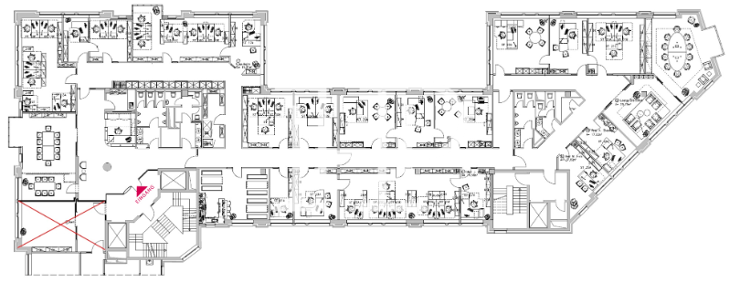
  • Verfügbare Fläche (ca.) 1.035 m2
  • Mietpreis ab 23,00€/m2 mtl.
  •  
  • Nebenkosten 5,50€/m2 mtl.
  • Verfügbarkeit langfristig (ab 5 Monate)
  •  
  • Energiepass liegt vor
  • Baujahr 1987
  • Provision* Provisionsfrei für den Mieter bei Anmietung von mind. 5 Jahren Laufzeit.

* Abhängig von der Mietdauer (siehe AGB)
Alle Preisangaben verstehen sich zzgl. der gesetzlichen USt.

4. Obergeschoss:

Sie haben Fragen?
Wenden Sie sich gerne an:

Team HH


Tel.: +49 40 2286011-0
E-Mail: anfrage@hamburg-properties.com

HPC Hamburg Properties Consulting GmbH & Co. KG
Alter Wall 34-36
20457 Hamburg

Lage Kriterien

  • Airport Hamburg: 9,70 km
  • A255: 5,30 km
  • Hauptbahnhof: 2,60 km
  • Tortue: 500 m
  • Edeka: 400 m
  • Fairmont Hotel Vier Jahreszeiten: 500 m
  • U2 Gänsemarkt: 90 m
  • S1 / S3 Jungfernstieg: 500 m
  • X3 U Gänsemarkt (Valentinskamp): 72 m