Beste Büros Logo
City
Merken
Objektnummer: 400

AlsterGate | Moderne Flächen mit Alsterblick

Modernes Eckgebäude in Top-Innenstadtlage an der Binnenalster mit hellen Räumen, Balkonen, Tiefgarage und Nähe zu Cafés, Restaurants und Europassage.

Alstertor 9

Objektbeschreibung

Das Eckgebäude wurde 2009 erbaut und überzeugt durch seine moderne sowie klassische Fassade. Über einen repräsentativen Eingangsbereich gelangen Besucher und Gäste mit dem Aufzug in die jeweiligen Geschosswerke. Die bodentiefen Fenster sorgen für helle Räumlichkeiten und eine positive Arbeitsatmosphäre. Weiterhin ermöglichen die Balkon- und Terrassenflächen das Entspannen an der frischen Luft. Das Gebäude verfügt über eine hauseigene Tiefgarage, in der sich TG-Stellplätze für 220EUR/St. mtl. anmieten lassen.

Lage

Das Objekt befindet sich in bester Innenstadtlage, in zweiter Reihe zur Binnenalster. Die unmittelbare Umgebung bietet zahlreiche Cafés und Restaurants, wie z. B. das Barefood Deli by Til Schweiger. Des Weiteren ist die Europassage, mit einem vielseitigen Angebot an unterschiedlichen Geschäften, nur wenige Gehminuten entfernt und lädt zum Verweilen ein. Der Eingang zur U-/ und S-Bahnstation Jungfernstieg liegt in Sichtweite.
Für wen lohnt sich das Objekt?


Das Objekt eignet sich besonders für Unternehmen und Selbstständige, die eine repräsentative Adresse in zentraler Hamburger Innenstadtlage suchen. Die moderne Ausstattung mit bodentiefen Fenstern, Balkon- und Terrassenflächen sowie die hauseigene Tiefgarage bieten ideale Bedingungen für ein professionelles Arbeitsumfeld. Zudem profitieren Pendler und Kunden von der hervorragenden Anbindung an die U-/S-Bahnstation Jungfernstieg und der Nähe zu Einkaufsmöglichkeiten wie der Europassage.
Besichtigungstermin anfragen

Weitere Angaben

  • Verfügbare Fläche (ca.) 451 m2
  • Mietpreis ab 25,00€/m2 mtl.
  •  
  • Nebenkosten 5,50€/m2 mtl.
  • Verfügbarkeit kurzfristig (bis 4 Monate)
  •  
  • Energiepass liegt vor
  • Baujahr 2009
  • Provision* Provisionsfrei für den Mieter bei Anmietung von mind. 5 Jahren Laufzeit.

* Abhängig von der Mietdauer (siehe AGB)
Alle Preisangaben verstehen sich zzgl. der gesetzlichen USt.

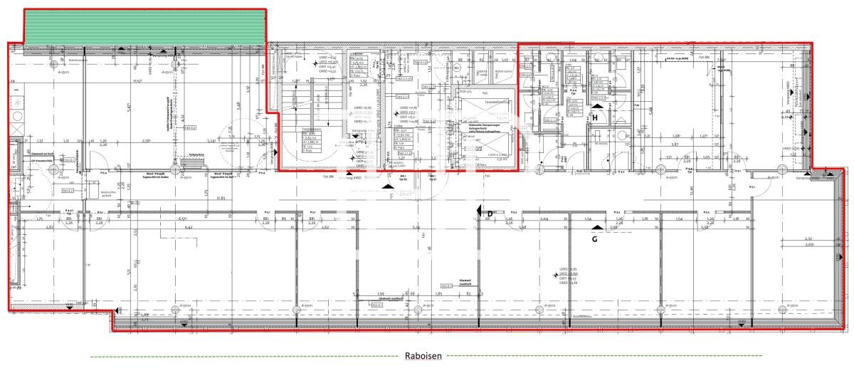
Grundriss 4. OG:

Sie haben Fragen?
Wenden Sie sich gerne an:

Team HH


Tel.: +49 40 2286011-0
E-Mail: anfrage@hamburg-properties.com

HPC Hamburg Properties Consulting GmbH & Co. KG
Alter Wall 34-36
20457 Hamburg

Lage Kriterien

  • Airport Hamburg: 10,80 km
  • Elbbrücken: 4,80 km
  • Hauptbahnhof: 0,65 km
  • Espresso House: 56 m
  • REWE Ballindamm: 200 m
  • Intercity-Hotel: 500 m
  • U 3 Mönckebergstraße : 350 m
  • S 1/11/2/3/21/31 Hauptbahnhof : 650 m
  • Gerhart-Hauptmann-Platz Linie 4,5,19: 230 m