Beste Büros Logo
City
Merken
Objektnummer: 382

Alsterfleet-Quartier | Büroensemble am Alsterfleet

Büro in City, City gesucht? Ihre neue Adresse: Neuer Wall, Hamburg | 289 qm, teilbar ab 289 qm, verfügbar:

Neuer Wall 41

Objektbeschreibung

Das 1956 erbaute Büro- und Geschäftsgebäude präsentiert sich von außen mit einer eindrucksvollen gläsernen Fassade, die bis ins 5. Obergeschoss reicht. Der Zugang erfolgt über einen repräsentativen Eingangsbereich. Aufgrund der großen Fensterfronten wirken die Mietflächen hell und freundlich. Auf Wunsch des Mieters, in Absprache mit dem Vermieter, können die Mietflächen mit hochwertigen Materialien ausgebaut werden. Neben Kühldecken und der Möglichkeit eines Glasfaseranschlusses erhält der zukünftige Mieter u.a. moderne Stehleuchten.

Lage

Der Gebäudekomplex am Neuen Wall liegt an einer der wichtigsten und eindrucksvollsten Geschäftsstraßen direkt im Herzen Hamburgs. Umgeben von zahlreichen renommierten Boutiquen und Läden wie z.B. Louis Vuitton oder Moncler überzeugt die Lage durch ein vielfältiges Angebot. Die Alster ist fußläufig in nur wenigen Minuten erreichbar. Zudem bieten naheliegende Parkhäuser wie z.B. Contipark Stellplätze rund um den Neuen Wall. U- und S-Bahnverbindungen, wie der Jungfernstieg sorgen für eine zügige Anbindung an den ÖPNV.
Besichtigungstermin anfragen

Weitere Angaben

  • Verfügbare Fläche (ca.) 289 m2
  • Mietpreis ab 32,50€/m2 mtl.
  •  
  • Nebenkosten 6,50€/m2 mtl.
  •  
  • Energiepass liegt vor
  • Baujahr 1956
  • Provision* Provisionsfrei für den Mieter bei Anmietung von mind. 5 Jahren Laufzeit.

* Abhängig von der Mietdauer (siehe AGB)
Alle Preisangaben verstehen sich zzgl. der gesetzlichen USt.

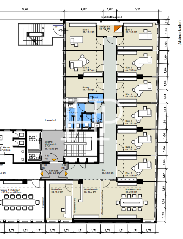
2. Obergeschoss:

Sie haben Fragen?
Wenden Sie sich gerne an:

Team HH


Tel.: +49 40 2286011-0
E-Mail: anfrage@hamburg-properties.com

HPC Hamburg Properties Consulting GmbH & Co. KG
Alter Wall 34-36
20457 Hamburg

Lage Kriterien

  • Airport Hamburg: 10,70 km
  • A1 Elbbrücken: 5 km
  • Hauptbahnhof: 1,20 km
  • Vlet Kitchen & Bar: 250 m
  • Rewe: 500 m
  • Fairmont Hotel: 600 m
  • U2/4 Jungfernstieg: 250 m
  • S1/2/3 Jungfernstieg: 250 m
  • Linien 4/5/19 Rathausmarkt : 300 m