Beste Büros Logo
City
Merken
Objektnummer: 081

ABC Cube | Büros direkt am Gänsemarkt

Moderne Büroflächen im ABC Cube nahe Gänsemarkt: helle Fassade, zentrale Lage mit sehr guter Anbindung nahe Binnenalster, Restaurants und Shops.

ABC - Straße 13-15

Objektbeschreibung

Das Gebäude verfügt über eine helle Fassade mit schwarz eingefassten bodentiefen Fenstern. Diese sorgen für viel Licht und somit für eine freundliche Arbeitsatmosphäre in den Räumlichkeiten. Der repräsentative Eingangsbereich überzeugt durch seine hohen Decken. Die Büroräume verfügen über den neusten Bürostandard und sind modern gestaltet. Die Ausstattung der Innenräume kann individuell nach Mieterwunsch erfolgen. Im Erdgeschoss des Gebäudes befindet sich der Möbel & Wohnaccessoire Laden MADE.

Lage

Der ABC Cube befindet sich im Herzen Hamburgs, nahe des Gänsemarktes. Exzellente Einkaufsmöglichkeiten, zahlreiche Restaurants, wie z.B. "Tiki Poke Bowl" stehen für den täglichen Bedarf zur Verfügung. Das Riviera Maison Cafe ist nur 100 m entfernt und lädt zum Brunch, oder Nachmittagskaffee ein. Die Binnenalster, als auch der Jungfernstieg sind, in nur 6 Minuten, zu Fuß zu erreichen.
Für wen lohnt sich das Objekt?


Das Objekt eignet sich für Unternehmen, die eine repräsentative, zentrale Lage schätzen. Kreative Teams und Dienstleister profitieren von den lichtdurchfluteten, anpassbaren Räumen und der Nähe zu Gastronomie, ideal für Mitarbeiter und Kunden.
Besichtigungstermin anfragen

Weitere Angaben

  • Verfügbare Fläche (ca.) 766 m2
  • Teilbare Fläche (ca.) 150 m2
  • Mietpreis ab 27,50€/m2 mtl.
  •  
  • Nebenkosten 5,90€/m2 mtl.
  • Verfügbarkeit Q1 2026
  •  
  • Energiepass liegt vor
  • Baujahr 2016
  • Provision* Provisionsfrei für den Mieter bei Anmietung von mind. 5 Jahren Laufzeit.

* Abhängig von der Mietdauer (siehe AGB)
Alle Preisangaben verstehen sich zzgl. der gesetzlichen USt.

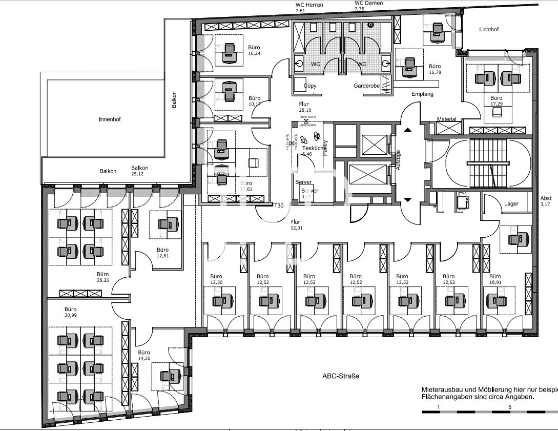
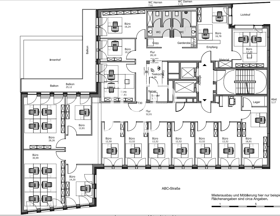
2. OG:

Sie haben Fragen?
Wenden Sie sich gerne an:

Team HH


Tel.: +49 40 2286011-0
E-Mail: anfrage@hamburg-properties.com

HPC Hamburg Properties Consulting GmbH & Co. KG
Alter Wall 34-36
20457 Hamburg

Lage Kriterien

  • Flughafen Hamburg: 10 km
  • A 1: 5 km
  • Hauptbahnhof: 2 km
  • (m)eatery bar + restaurant: 400 m
  • EDEKA Struve: 300 m
  • Renaissance Hamburg: 300 m
  • Gänsemarkt: 200 m
  • Jungfernstieg: 600 m
  • Axel-Springer-Platz: 300 m