Beste Büros Logo
Hamburg-Ost
Merken
Objektnummer: 826

TONDO-Center | Ihre neue Arztpraxis in Tonndorf

Moderne Praxisfläche in Hamburg-Tonndorf: Backsteingebäude mit großer Fensterfront, hellen Räumen und zentraler Lage mit sehr guter Anbindung.

Tonndorfer Hauptstraße 69-71

Objektbeschreibung

Die Praxisfläche befindet sich in einem modernen, dreistöckigen Gebäude mit einer eleganten Fassade aus dunklen Backsteinen. Die großzügige Fensterfront im Erdgeschoss bietet ideale Möglichkeiten für eine professionelle Außendarstellung und gut sichtbare Beschilderung. In den oberen Etagen sorgt die großflächige Verglasung für viel Tageslicht und eine angenehme Arbeitsatmosphäre – ideal für Praxis- oder Gesundheitskonzepte. Die Mietflächen werden auf Wunsch des Mieters renoviert übergeben, sodass individuelle Ausstattungs- und Raumkonzepte realisiert werden können. So entsteht ein zeitgemäßes Umfeld für Personal und Patienten.

Lage

Die Arztpraxis befindet sich in Hamburg-Tonndorf im Bezirk Wandsbek, in einem lebendigen Wohn- und Geschäftsviertel mit zahlreichen Einkaufsmöglichkeiten, Cafés und Dienstleistungsanbietern in direkter Umgebung. Die Anbindung an den öffentlichen Nahverkehr ist hervorragend: Die Bushaltestelle "Studio Hamburg" mit mehreren Linien liegt nur wenige Gehminuten entfernt. Durch die gut erreichbare Lage ist die Praxis sowohl mit dem Auto als auch mit öffentlichen Verkehrsmitteln bequem zugänglich.
Diese Praxisfläche ist besonders attraktiv für niedergelassene Ärztinnen und Ärzte, die eine gut erreichbare Lage mit starker Präsenz im Quartier suchen. Allgemeinmediziner, Fachärzte, Internisten, Orthopäden oder kinderärztliche Praxen profitieren von der Mischung aus Wohn- und Geschäftsumfeld sowie der hohen Frequenz in der direkten Nachbarschaft. Ebenso eignet sich die Fläche hervorragend für Gemeinschaftspraxen, MVZ-Strukturen oder Gesundheitszentren, die Wert auf eine moderne Außendarstellung legen.

Durch die große Fensterfront lassen sich Praxislogo, Leistungen und Öffnungszeiten optimal sichtbar präsentieren, was die Wiedererkennbarkeit erhöht und neue Patienten anzieht. Die renovierte Übergabe nach Mieterwunsch bietet Flexibilität für individuelle Raumkonzepte – vom klassischen Sprechzimmerlayout bis hin zu offenen, patientenfreundlichen Empfangsbereichen. Auch ergänzende Gesundheitsdienstleister wie Physiotherapie, Ergotherapie, Logopädie oder psychotherapeutische Praxen finden hier einen Standort mit professionellem Ambiente, starker Infrastruktur und hervorragender ÖPNV-Anbindung.
Besichtigungstermin anfragen

Weitere Angaben

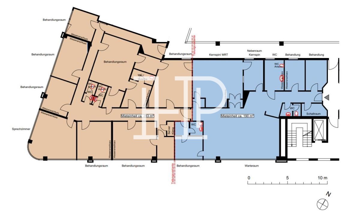
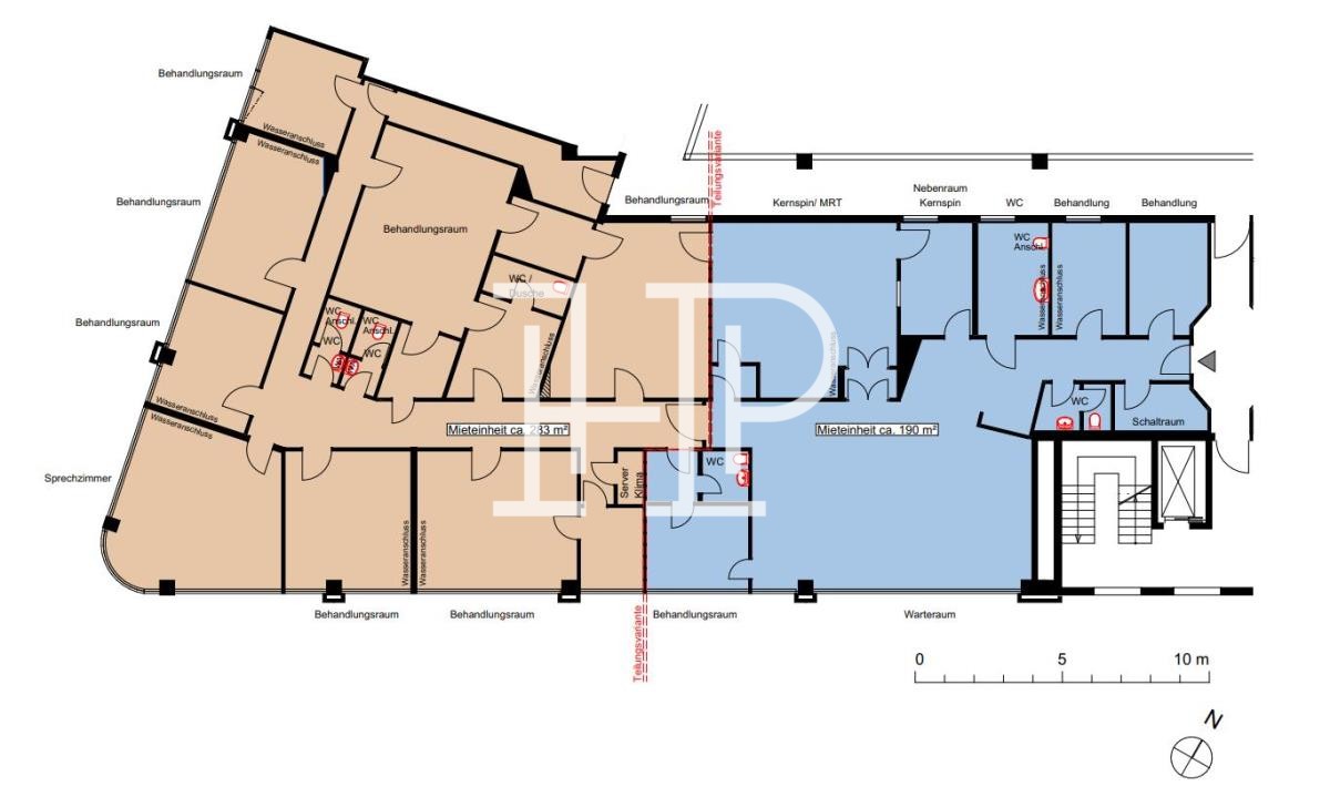
  • Verfügbare Fläche (ca.) 473 m2
  • Teilbare Fläche (ca.) 190 m2
  • Mietpreis ab 14,00€/m2 mtl.
  •  
  • Nebenkosten 5,00€/m2 mtl.
  •  
  • Energiepass liegt vor
  • Baujahr 2006
  • Provision* Provisionsfrei für den Mieter bei Anmietung von mind. 5 Jahren Laufzeit.

* Abhängig von der Mietdauer (siehe AGB)
Alle Preisangaben verstehen sich zzgl. der gesetzlichen USt.

Grundriss 2. OG:

Sie haben Fragen?
Wenden Sie sich gerne an:

Team HH


Tel.: +49 40 2286011-0
E-Mail: anfrage@hamburg-properties.com

HPC Hamburg Properties Consulting GmbH & Co. KG
Alter Wall 34-36
20457 Hamburg

Lage Kriterien

  • Airport Hamburg: 13,90 km
  • Autobahn A24: 2,50 km
  • Hauptbahnhof: 9,60 km
  • Café del Sol: 400 m
  • Rewe: 20 m
  • Hotel zum Studio: 200 m
  • U Wandsbek Markt: 4,20 m
  • RB81 Bf. Tonndorf: 200 m
  • Studio Hamburg, Linie 9, 27, 567, 608: 20 m

Weitere Vorschläge in Tonndorf

Vielleicht interessieren Sie sich auch für folgende Büroflächen: