Beste Büros Logo
HafenCity
Merken
Objektnummer: 420

Speicher Block S | Loftbüros in der Speicherstadt

Loftartige Büroflächen im Speicher Block S in der Speicherstadt: Wasserblick, historische Architektur und zentrale Lage nahe ÖPNV und Cafés.

Alter Wandrahm 13-14

Objektbeschreibung

Die Büroflächen im Speicher Block S sind ein wahres Highlight für jeden, der nach einer außergewöhnlichen Arbeitsumgebung sucht. Die Räume bieten einen eindrucksvollen Loftcharakter und ermöglichen hervorragende Blickbeziehungen auf den Wandrahmsfleet. Hier kann man sich inspirieren lassen und seine Kreativität voll entfalten. Insgesamt bietet die Bürofläche im Speicher Block S alles, was man sich von einem modernen Arbeitsplatz wünscht: Eine einzigartige Lage mit Wasserblick, helle Räume und flexible Teilbarkeit - perfekt für Unternehmen jeder Größe und Branche.Wer auf der Suche nach einem außergewöhnlichen Arbeitsplatz ist, sollte hier unbedingt einen Blick riskieren!

Lage

Der Speicher Block S liegt am Ufer des Wandrahmsfleet und genießt die Nähe zur Kornhausbrücke, die die Speicherstadt mit der Hamburger Innenstadt verbindet. Direkt angrenzend an den Speichers befindet sich das bekannte Deutsche Zollmuseum sowie viele kleinere Cafés und Restaurants, wie z.B. Schönes Leben Speicherstadt. Mitarbeitern und Gästen bietet der Standort in fußläufiger Umgebung die bequeme Anbindung an die öffentlichen Vermitteln, wie z.B. Bus und Bahn.
Für wen lohnt sich das Objekt?


Das Objekt eignet sich für Unternehmen, die eine außergewöhnliche, zentrale Lage schätzen. Kreative Teams und Dienstleister profitieren von den inspirierenden Räumen mit Fleet-Ausblick und der Nähe zu historischen Sehenswürdigkeiten, ideal für Mitarbeiter und Kunden.
Besichtigungstermin anfragen

Weitere Angaben

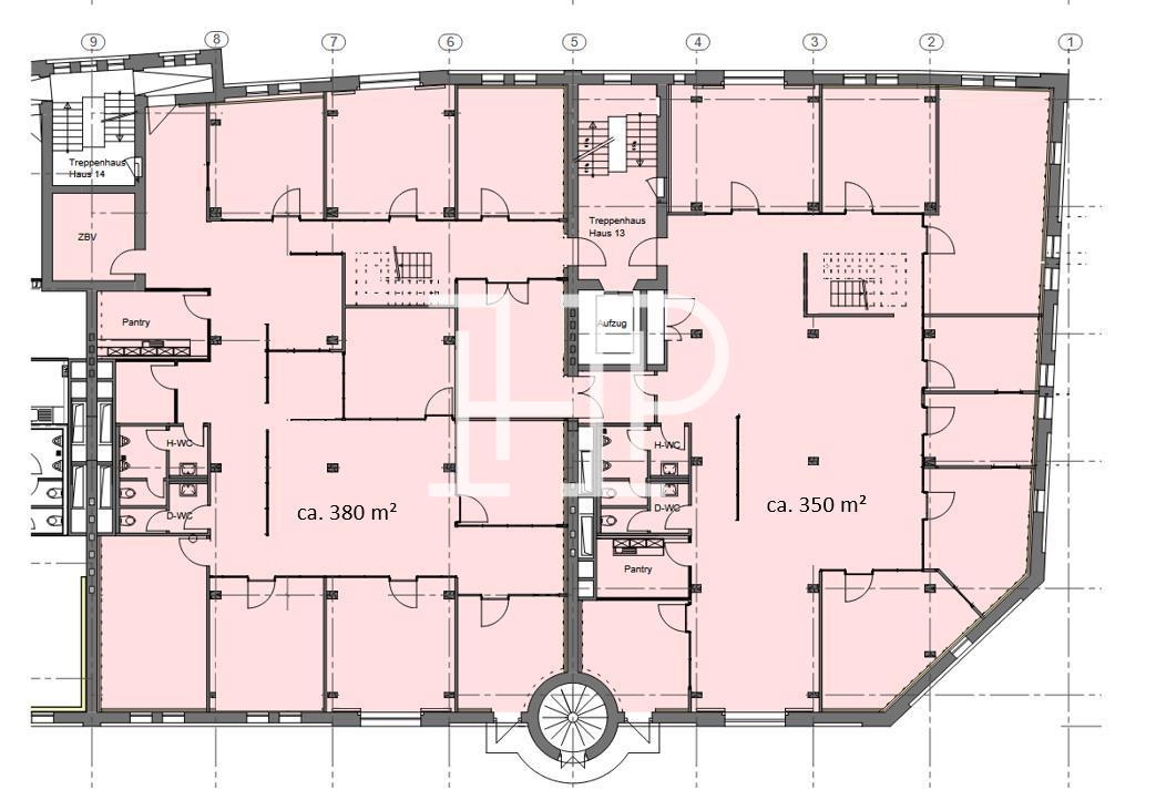
  • Verfügbare Fläche (ca.) 348 m2
  • Mietpreis ab 21,00€/m2 mtl.
  •  
  • Nebenkosten 5,50€/m2 mtl.
  • Verfügbarkeit langfristig (ab 5 Monate)
  •  
  • Energiepass befreit (Denkmalschutz)
  • Baujahr 1912
  • Provision* 3,0 Bruttomonatsmieten zzgl. ges. USt. für den Mieter.

* Abhängig von der Mietdauer (siehe AGB)
Alle Preisangaben verstehen sich zzgl. der gesetzlichen USt.

Grundriss 6. OG:

Sie haben Fragen?
Wenden Sie sich gerne an:

Team HH


Tel.: +49 40 2286011-0
E-Mail: anfrage@hamburg-properties.com

HPC Hamburg Properties Consulting GmbH & Co. KG
Alter Wall 34-36
20457 Hamburg

Lage Kriterien

  • Airport Hamburg: 11 km
  • A7: 9 km
  • Hauptbahnhof: 2 km
  • Schönes Leben Speicherstadt: 300 m
  • Edeka Böcker: 700 m
  • Adina Apartment Hotel : 400 m
  • U1 Meßberg: 200 m
  • Hauptbahnhof: 900 m
  • Linie 2 Ericusspitze: 200 m

Weitere Vorschläge in Speicherstadt

Vielleicht interessieren Sie sich auch für folgende Büroflächen: