Beste Büros Logo
City
Merken
Objektnummer: 766

Schaartorhof | Büro direkt um die Ecke zur Elphi

Schaartor 1

Objektbeschreibung

Das Bürohaus am Schaartor, erbaut in den späten 1960er Jahren, befindet sich in einer begehrten Lage zwischen der HafenCity und der Altstadt. Eingebettet zwischen Herrengrabenfleet und Alsterfleet bietet dieser Standort einen herrlichen Blick auf das Wasser in alle Richtungen. Aufgrund eines durchgängigen Fensterrasters sind die Büroflächen flexibel aufteilbar. Der großzügige Eingang ermöglicht einen repräsentativen Empfang von Gästen. Die Büroräume überzeugen durch große Fensterfronten. historisches Ambiente und eine moderne Haustechnik. Die Ausstattung der Mietflächen ist für den Mieter individuell umsetzbar und erfolgt gemeinsam mit dem Vermieter.

Lage

Der Schaartorhof befindet sich im Süden der Hamburger City zwischen der Stadthausbrücke und dem Baumwall. Das in nur wenigen Gehminuten entfernte "Panthera Rodizio" bietet eine vielfältige kulinarische Auswahl an brasilianischen Speisen an. Im nur 750 Metern entfernten REWE besteht alternativ die Möglichkeit, Einkäufe für den täglichen Bedarf zu erledigen. Die Elbphilharmonie, das berühmte Wahrzeichen der Hamburger Hafencity, befindet sich direkt um die Ecke und ist in wenigen Minuten zu Fuß erreichbar.
Für wen lohnt sich das Objekt?

Für Unternehmen, die eine zentrale Citylage mit maritimem Flair und repräsentativem Auftritt suchen. Beratungen, Kreativ- und Tech-Teams sowie Kanzleien profitieren von flexibel teilbaren Flächen, großen Fensterfronten und moderner Haustechnik. Die fußläufige Nähe zur Elbphilharmonie, zu Gastronomie (z. B. Panthera Rodizio) und Nahversorgung (REWE) steigert die Standortqualität für Mitarbeitende und Gäste; der individuelle Mieterausbau ermöglicht passgenaue Raumkonzepte.
Besichtigungstermin anfragen

Weitere Angaben

  • Verfügbare Fläche (ca.) 372 m2
  • Mietpreis ab 23,50€/m2 mtl.
  •  
  • Nebenkosten 3,50€/m2 mtl.
  •  
  • Energiepass liegt vor
  • Baujahr 1960
  • Provision* Provisionsfrei für den Mieter bei Anmietung von mind. 5 Jahren Laufzeit.

* Abhängig von der Mietdauer (siehe AGB)
Alle Preisangaben verstehen sich zzgl. der gesetzlichen USt.

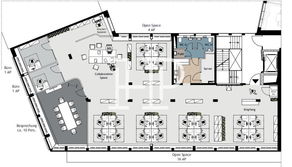
Mustergrundriss:

Sie haben Fragen?
Wenden Sie sich gerne an:

Team HH


Tel.: +49 40 2286011-0
E-Mail: anfrage@hamburg-properties.com

HPC Hamburg Properties Consulting GmbH & Co. KG
Alter Wall 34-36
20457 Hamburg

Lage Kriterien

  • Airport Hamburg: 11 km
  • Autobahn A1: 9,10 km
  • Hauptbahnhof: 2,70 km
  • Panthera Rodizio: 300 m
  • REWE: 750 m
  • The Madison: 60 m
  • U3 Bauwall : 450 m
  • S1, S2, S3 Stadthausbrücke : 600 m
  • U Baumwall : 300 m

Weitere Vorschläge in Hamburg Neustadt

Vielleicht interessieren Sie sich auch für folgende Angebote: