Beste Büros Logo
Hamburg-West
Merken
Objektnummer: 520

Neuer Hafenklang | Büros mit Elbblick

Büro in , Hamburg-West gesucht? Ihre neue Adresse: Große Elbstraße, Hamburg | 604.8 qm, teilbar ab 293 qm, verfügbar: kurzfristig (bis 4 Monate)

Große Elbstraße 84-86

Objektbeschreibung

Das Gebäude überzeugt mit seiner hochwertigen Ausstattung und den bodentiefen Fenstern, die für ausreichend Helligkeit und eine natürliche Belichtung der Büroflächen sorgen. Über ein repräsentatives, hochwertiges Treppenhaus und zwei Glasaufzüge, welche das Geäude in Ost- und Westflügel unterteilen, gelangt man in das Innere. Das Objekt verfügt über eine effiziente Aufteilung des Grundrisses, wodurch individuelle Raumsituationen möglich sind. Unterschiedliche Bürotypologien, von Einzel- über Großraumbüros bis hin zu modernen Arbeitswelten können so realisiert werden. Aus den Büros und vom Balkon bietet sich ein einzigartiger Blick auf den Hamburger Hafen, die Elbe und die Hamburger Innenstadt.

Lage

Das Bürogebäude befindet sich in bester Elblage in Hamburg Altona. In der näheren Umgebung befinden sich zahlreiche Restaurants wie das erstklassige Fischrestaurant "am Kai". Eine Vielzahl an Bistros und Cafés laden zum Verweilen in der Mittagspause ein. Die Bushaltestelle Sandberg und der Fährhafen sind füßläufig in wenigern Minuten zu erreichen und gewährleisten gemeinsam mit den U- und S-Bahnstationen Landungsbrücken und Königstraße die Anbindung an den ÖPNV.
Besichtigungstermin anfragen

Weitere Angaben

  • Verfügbare Fläche (ca.) 605 m2
  • Teilbare Fläche (ca.) 293 m2
  • Mietpreis ab 23,00€/m2 mtl.
  •  
  • Nebenkosten 4,50€/m2 mtl.
  • Verfügbarkeit kurzfristig (bis 4 Monate)
  •  
  • Baujahr 1991
  • Provision* Provisionsfrei für den Mieter bei Anmietung von mind. 5 Jahren Laufzeit.

* Abhängig von der Mietdauer (siehe AGB)
Alle Preisangaben verstehen sich zzgl. der gesetzlichen USt.

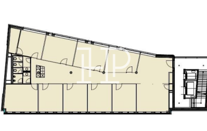
4. OG links:

Sie haben Fragen?
Wenden Sie sich gerne an:

Team HH


Tel.: +49 40 2286011-0
E-Mail: anfrage@hamburg-properties.com

HPC Hamburg Properties Consulting GmbH & Co. KG
Alter Wall 34-36
20457 Hamburg

Lage Kriterien

  • Airport Hamburg: 12,40 km
  • A7 HH-Othmarschen: 5,80 km
  • Hauptbahnhof: 5 km
  • MASH Hamburg : 260 m
  • Edeka: 1500 m
  • GINN Hotel Elbspeicher: 43 m
  • U3 Landungsbrücken: 1500 m
  • S1/2/3 Königstraße: 1000 m
  • Sandberg Linie 111: 210 m