Beste Büros Logo
Alster-Ost
Merken
Objektnummer: 184

Mundsburg Office Tower | Die belebte Meile!

Büroflächen im Mundsburg Office Tower: markantes Hochhaus mit Glasfassade, moderne Technik, Highspeed-Aufzüge, Tiefgarage und Top-U-Bahn-Anbindung

Hamburger Str. 11

Objektbeschreibung

Das weitläufig erkennbare Gebäudeensemble verfügt über eine imposante Glasfassade, die bis ins 24 Obergeschoss reicht. Über den modernen und hellen Eingangsbereich gelangen Sie bequem mit den drei Hochgeschwindigkeitsaufzügen in die jeweilige Büroetage. Die Räumlichkeiten verfügen über eine hochwertige technische Ausstattung und sind durch die großen Fenster hell und lichterfüllt. In der hauseigenen Tiefgarage stehen zudem Stellplätze zur Verfügung.

Lage

Die Mundsburg Office Tower befinden sich in unmittelbarer Nähe zum beliebten Stadtteil Uhlenhorst und grenzen direkt an die Hamburger Meile. Aufgrund der Verbindung zur Hamburger Meile findet sich ein großzügiges Angebot an Einkaufsmöglichkeiten des täglichen Bedarfs. Weiterhin überzeugt das nur 600 m entfernte Café LORDS Deli mit leckeren Speisen und Kaffee für die Pause. Durch den Winterhuder Weg und die U-Bahn Mundsburg wird eine gute Anbindung gewährleistet.
Für wen lohnt sich das Objekt?

Für Unternehmen, die Sichtbarkeit, Komfort und urbane Infrastruktur verbinden möchten. Ideal für Beratungen, Medien- und Tech-Firmen sowie wachsende Teams, die von hellen, technisch hochwertig ausgestatteten Flächen, repräsentativen Eingangsbereichen und schneller vertikaler Erschließung profitieren. Die direkte Anbindung an die Hamburger Meile, die Nähe zu Uhlenhorst und kurze Wege zu ÖPNV, Gastronomie und täglicher Nahversorgung steigern die Attraktivität für Mitarbeitende und Besucher. Optional verfügbare Tiefgaragenstellplätze runden das Profil ab.
Besichtigungstermin anfragen

Weitere Angaben

  • Verfügbare Fläche (ca.) 4.434 m2
  • Teilbare Fläche (ca.) 181 m2
  • Mietpreis von 19,00€/m2 bis 24,90€/m2 mtl.
  •  
  • Nebenkosten 4,40€/m2 mtl.
  •  
  • Energiepass befreit (Denkmalschutz)
  • Baujahr 1973
  • Provision* Provisionsfrei für den Mieter bei Anmietung von mind. 5 Jahren Laufzeit.

* Abhängig von der Mietdauer (siehe AGB)
Alle Preisangaben verstehen sich zzgl. der gesetzlichen USt.

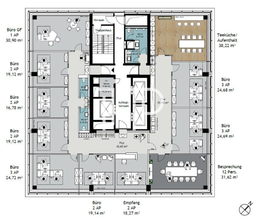
Regelgeschoss:

Sie haben Fragen?
Wenden Sie sich gerne an:

Team HH


Tel.: +49 40 2286011-0
E-Mail: anfrage@hamburg-properties.com

HPC Hamburg Properties Consulting GmbH & Co. KG
Alter Wall 34-36
20457 Hamburg

Lage Kriterien

  • Airport Hamburg: 8,30 km
  • B75 / A1: 5,30 km
  • Hauptbahnhof: 3,20 km
  • Bodega Sesenta: 230 m
  • Einzelhandel: 800 m
  • Hotel Alsterblick: 1100 m
  • Mundsburg: 230 m
  • Landsweg: 1400 m
  • Mundsburg: 110 m

Weitere Vorschläge in Hohenfelde

Vielleicht interessieren Sie sich auch für folgende Büroflächen: