Beste Büros Logo
City
Merken
Objektnummer: 146

Kontorhaus GB | Büroflächen nahe Rödingsmarkt

Büroflächen im Kontorhaus Großer Burstah: historische Fassade von 1906, große Fenster, repräsentativer Eingang nahe Rathausmarkt und Mönckebergstraße.

Großer Burstah 23-27

Objektbeschreibung

Das Kontorhaus Großer Burstah, erbaut in 1906, fällt durch seine stilvolle Fassade mit goldenen Ornamenten direkt ins Auge. Über einen repräsentativen Eingangsbereich gelangen Mitarbeiter und Gäste mit dem Personenaufzug bequem in die Räumlichkeiten. Die großen Fenster sorgen für viel Licht in den Büros und schaffen ein freundliches Ambiente. Die Büroflächen lassen sich flexibel nach Mieterwunsch ausbauen und bieten Raum für Gestaltungsmöglichkeiten. Eine Anmietung ist auch durch umsatzsteuerbefreite Unternehmen möglich.

Lage

Das Kontorhaus Großer Burstah befindet sich direkt im Herzen Hamburgs, zwischen dem Rathausmarkt und der St. Nikolai Kirche. Der Große Burstah geht über in die bekannte Einkaufspassage Mönckebergstraße, welche durch ihre zahlreichen Geschäfte wie z.B. Butlers oder Christ überzeugt. In der nahen Umgebung bieten Restaurants wie z.B. das "Hanoi Deli Rathaus" kulinarisch Speisen für die Mittagspause an. Auch die Binnenalster ist nicht weit entfernt und lädt zum Verweilen ein.
Für wen lohnt sich das Objekt?


Das Objekt eignet sich für Unternehmen, die eine zentrale Lage mit historischer Atmosphäre suchen. Dienstleister oder Firmen mit repräsentativen Anforderungen profitieren von der Nähe zu Restaurants wie "Hanoi Deli Rathaus" und Einkaufsmöglichkeiten. Die flexiblen Flächen bieten sich für Teams mit spezifischen Ansprüchen an.
Besichtigungstermin anfragen

Weitere Angaben

  • Verfügbare Fläche (ca.) 861 m2
  • Teilbare Fläche (ca.) 208 m2
  • Mietpreis von 23,50€/m2 bis 25,00€/m2 mtl.
  •  
  • Nebenkosten 4,00€/m2 mtl.
  •  
  • Energiepass liegt vor
  • Baujahr 1905
  • Provision* Provisionsfrei für den Mieter bei Anmietung von mind. 5 Jahren Laufzeit.

* Abhängig von der Mietdauer (siehe AGB)
Alle Preisangaben verstehen sich zzgl. der gesetzlichen USt.

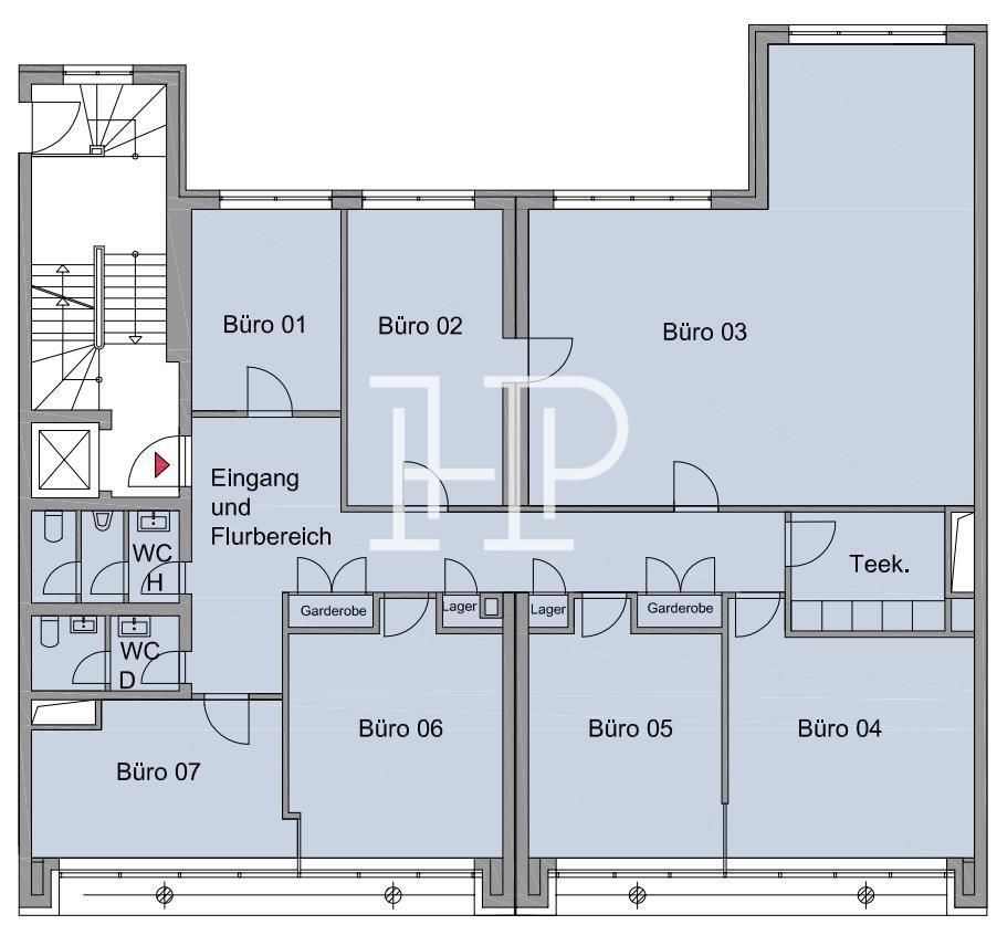
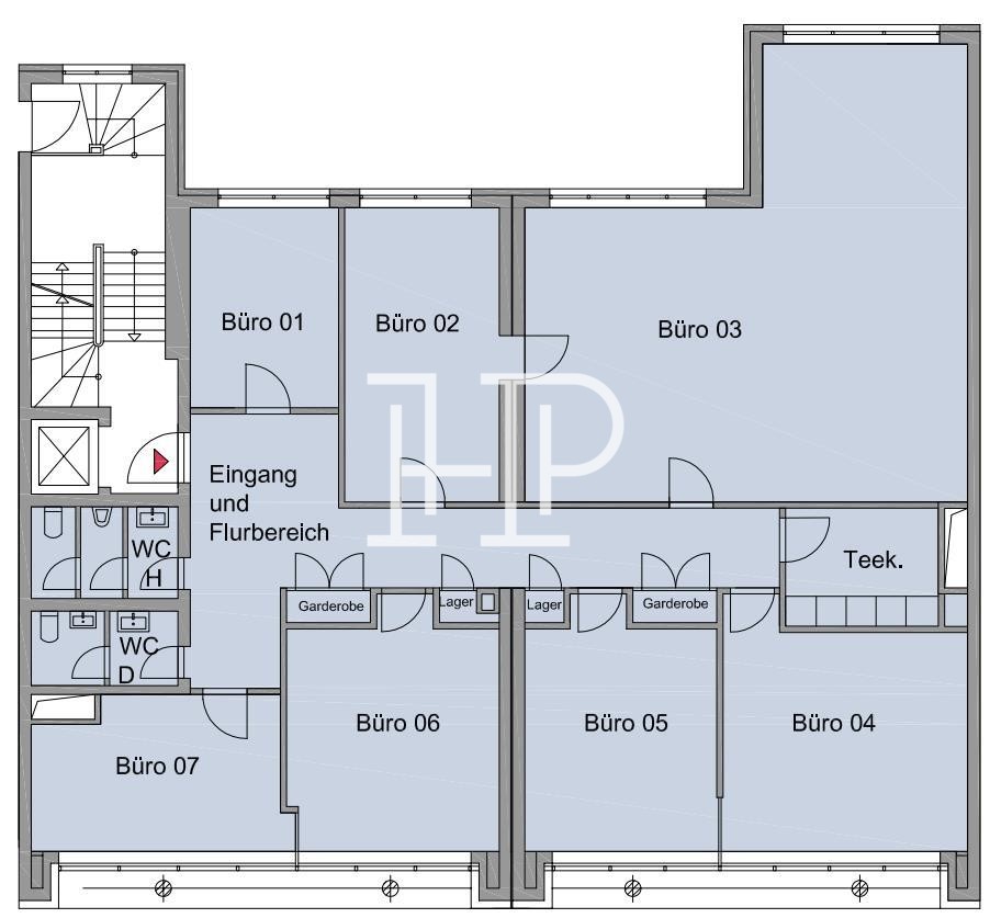
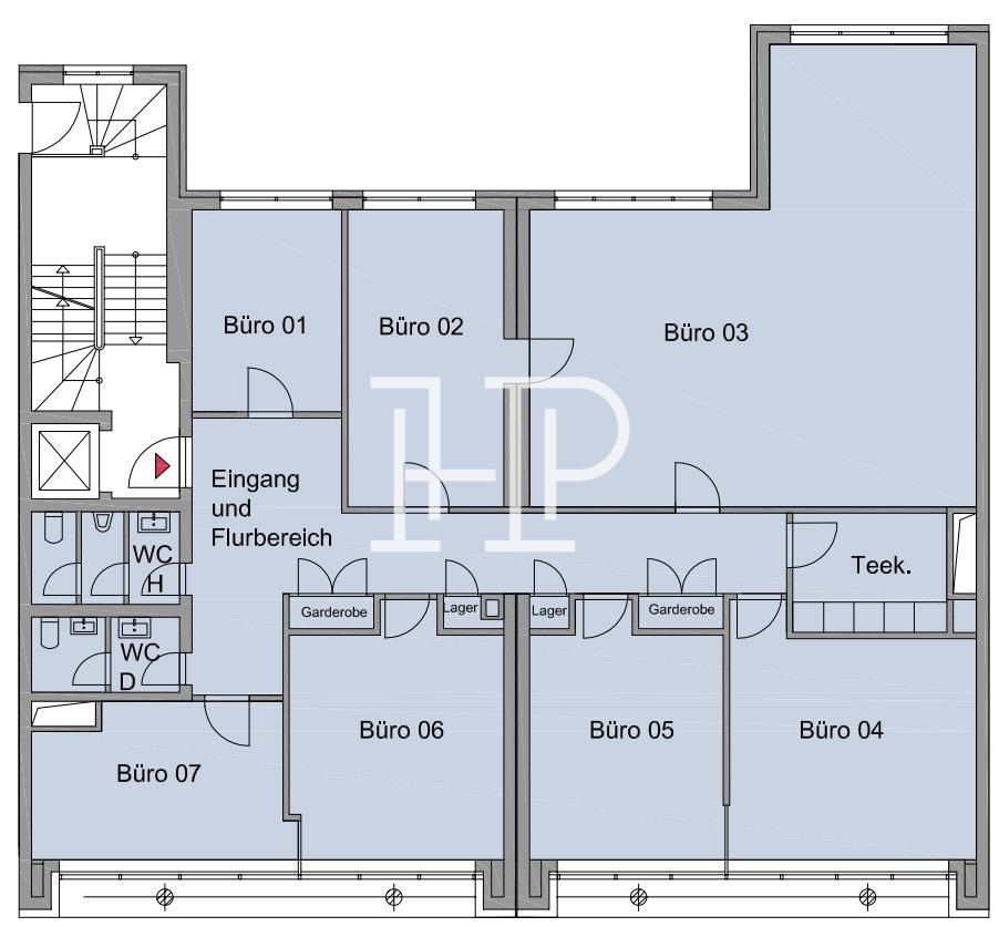
Grundriss 1. OG:

Sie haben Fragen?
Wenden Sie sich gerne an:

Team HH


Tel.: +49 40 2286011-0
E-Mail: anfrage@hamburg-properties.com

HPC Hamburg Properties Consulting GmbH & Co. KG
Alter Wall 34-36
20457 Hamburg

Lage Kriterien

  • Airport Hamburg: 11,50 km
  • A7: 7 km
  • Hauptbahnhof: 2,40 km
  • THE DINING RooM: 200 m
  • EDEKA Struve: 50 m
  • Fraser Suites: 200 m
  • U3 Rödingsmarkt: 180 m
  • S1/2/3/21 Stadthausbrücke: 300 m
  • Linie 3/16/17 U Rödingsmarkt: 10 m