Beste Büros Logo
City
Merken
Objektnummer: 312

Kontor Mönkedamm | Offices bei der Handelskammer

Mönkedamm 9-11

Objektbeschreibung

Das Büro- und Geschäftsgebäude am Mönkedamm überzeugt von außen mit einer schlichten Fassade, die sich hervorragend in die Umgebung einbindet. Über den großzügigen Eingangsbereich gelangen Mitarbeiter und Gäste des Hauses mit den Personenaufzügen in die jeweiligen Büroetagen. Die Mietflächen verfügen über eine effiziente Raumaufteilung. Es besteht zudem die Möglichkeit der flexiblen Raumunterteilung. Die Mietflächen können, nach vorheriger Absprache mit dem Vermieter, nach Wunsch des Mieters ausgebaut und gestaltet werden. Für den Eingangsbereich ist eine Mieterbeschilderung vorgesehen.

Lage

Das Büro- und Geschäftsgebäude am Mönkedamm 9-11 liegt zentral gelegen inmitten der Hamburger Innenstadt. Vom Mönkedamm erreichen Gäste und Mitarbeiter fußläufig innerhalb von wenigen Gehminuten die U-Bahnstation Rödingsmarkt, von der man in nur zwei Stationen am Hauptbahnhof ist. Neben der S-Bahnstation Jungfernstieg bietet zudem die S-Bahnstation Stadthausbrücke eine flexible Anreise mit den öffentlichen Verkehrsmitteln. Die Mittagspause können Mitarbeiter in den umliegenden Flaniermeilen, wie z.B. Jungfernstieg oder Neuer Wall verbringen.
Für wen lohnt sich das Objekt?


Das Objekt eignet sich für Unternehmen, die eine zentrale Lage mit guter Erreichbarkeit suchen. Firmen mit Fokus auf Kundenbesuche profitieren von der Nähe zu öffentlichen Verkehrsmitteln und Flaniermeilen für Pausen. Die flexible Raumunterteilung und individuelle Ausbauten machen es passend für wachsende Teams oder Büros mit variablen Strukturen.
Besichtigungstermin anfragen

Weitere Angaben

  • Verfügbare Fläche (ca.) 1.663 m2
  • Teilbare Fläche (ca.) 342 m2
  • Mietpreis von 21,00€/m2 bis 23,50€/m2 mtl.
  •  
  • Nebenkosten 3,50€/m2 mtl.
  • Verfügbarkeit kurzfristig (bis 4 Monate)
  •  
  • Energiepass liegt vor
  • Baujahr 0
  • Provision* Provisionsfrei für den Mieter bei Anmietung von mind. 5 Jahren Laufzeit.

* Abhängig von der Mietdauer (siehe AGB)
Alle Preisangaben verstehen sich zzgl. der gesetzlichen USt.

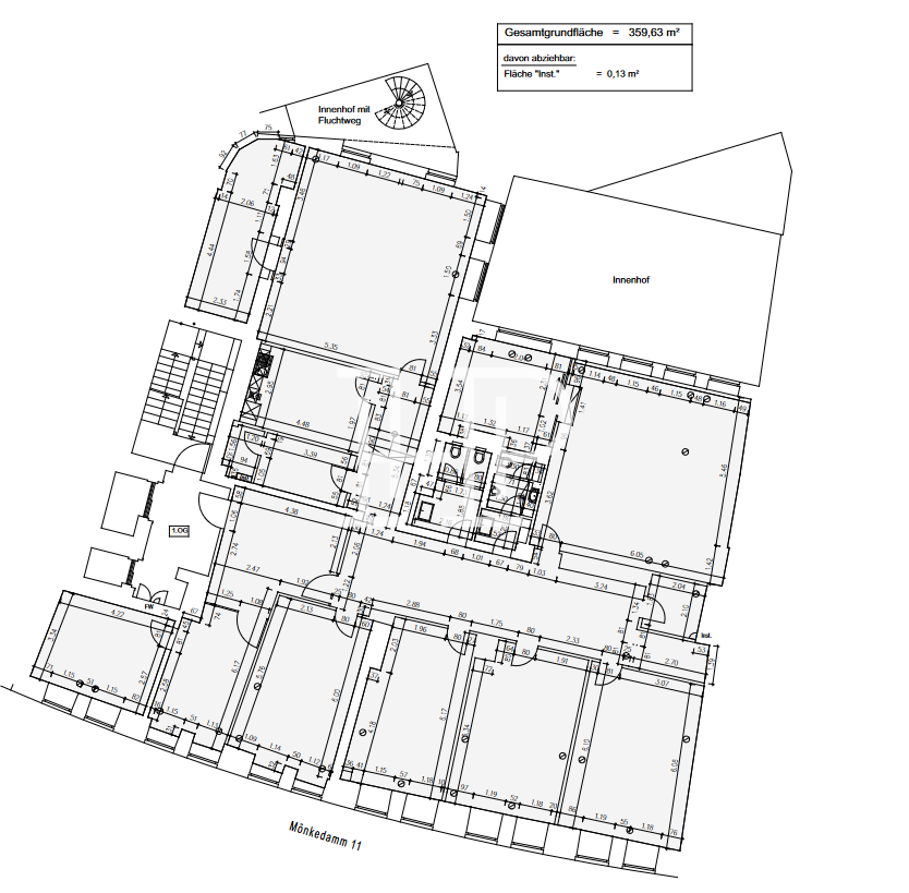
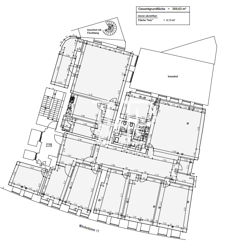
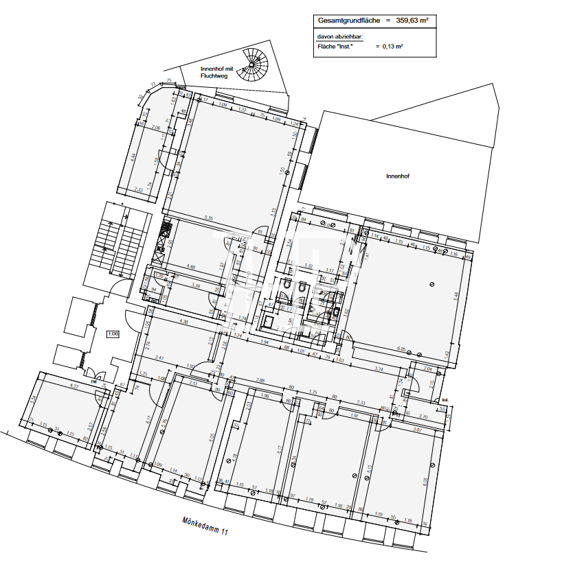
1. Obergeschoss:

Sie haben Fragen?
Wenden Sie sich gerne an:

Team HH


Tel.: +49 40 2286011-0
E-Mail: anfrage@hamburg-properties.com

HPC Hamburg Properties Consulting GmbH & Co. KG
Alter Wall 34-36
20457 Hamburg

Lage Kriterien

  • Airport Hamburg: 11,70 km
  • Elbbrücken: 3,50 km
  • Hauptbahnhof: 2 km
  • Mélange: 350 m
  • EDEKA Schlemmer Markt : 280 m
  • Renaissance Hamburg: 400 m
  • Jungfernstieg U2/4: 300 m
  • Jungfernstieg S1/2/3: 300 m
  • Rödingsmarkt : 200 m