Beste Büros Logo
Alster-Ost
Merken
Objektnummer: 241

HPC | ab 3.700 m² | Überseering

Büro in Winterhude, Alster-Ost gesucht? Ihre neue Adresse: Überseering, Hamburg | 28800 qm, teilbar ab 28800 qm, verfügbar: nach Absprache

Überseering 40

Objektbeschreibung

Das Ü40 wird im Zuge einer Revitalisierung aufwendig saniert und einschließlich aller technischen Anlagen sowie der Fassade auf den neusten Stand gebracht, um den Anforderungen einer modernen Immobilie zu genügen. Die innere Gebäudestruktur wird so angepasst, dass sie den nutzerspezifischen Arbeitswelten gerecht wird. Neben der Verbesserung der Tageslichtversorgung wird die Erschließungsstruktur so angepasst, dass eine flexible Aufteilung und Zonierung möglich sind. Die Außenanlagen werden behutsam neugestaltet und sollen den zukünftigen Nutzern eine hohe Aufenthaltsqualität bieten.

Lage

Das Objekt befindet sich direkt in der City Nord am Stadtpark und wird bis 2028 umfassend revitalisiert. Das Grundstück verfügt über eine Größe von 19.928 m², mit einer vermietbaren Fläche von insgesamt 28.800 m². Die Mittagspause lässt sich in der nur wenige Meter entfernten Parkvilla verbringen, die Kaffeespezialitäten, leckeren Kuchen sowie herzhafte Speisen bietet. Weiterhin überzeugt das Objekt durch seine gute infrastrukturelle Anbindung, nicht zuletzt durch die Fertigstellung der U-Bahnstation U5 im Jahr 2028.
Besichtigungstermin anfragen

Weitere Angaben

  • Verfügbare Fläche (ca.) 28.800 m2
  • Mietpreis ab 20,00€/m2 mtl.
  •  
  • Verfügbarkeit nach Absprache
  •  
  • Baujahr 1977
  • Provision* Provisionsfrei für den Mieter bei Anmietung von mind. 5 Jahren Laufzeit.

* Abhängig von der Mietdauer (siehe AGB)
Alle Preisangaben verstehen sich zzgl. der gesetzlichen USt.

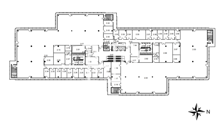
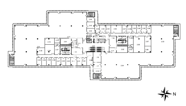
Regelgeschoss :

Sie haben Fragen?
Wenden Sie sich gerne an:

Team HH


Tel.: +49 40 2286011-0
E-Mail: anfrage@hamburg-properties.com

HPC Hamburg Properties Consulting GmbH & Co. KG
Alter Wall 34-36
20457 Hamburg

Lage Kriterien

  • Airport Hamburg: 4,80 km
  • A24: 8,60 km
  • Hauptbahnhof: 8,80 km
  • Das Restaurant in der Wäscherei: 800 m
  • Penny : 800 m
  • my4walls Serviced Apartments: 900 m
  • U1 Alsterdorf: 950 m
  • S Rübenkamp: 1700 m
  • Überseering: 90 m