Beste Büros Logo
Hamburg-West
Merken
Objektnummer: 383

H109 | Arbeiten am Volkspark

Büro in Lurup, Hamburg-West gesucht? Ihre neue Adresse: Hellgrundweg, Hamburg | 320 qm, teilbar ab 320 qm, verfügbar:

Hellgrundweg 109

Objektbeschreibung

Das Büroobjekt am Hellgrundweg präsentiert sich von außen mit einer schlichten Klinkerfassade aus dem Jahre 1990. Insgesamt verfügt das Gebäude über ca. 3.500 m² Büromietfläche, die sich auf drei Geschosswerke verteilen. Die Mietflächen sind u.a. über einen Personenaufzug erreichbar und können auf Mieterwunsch, nach Absprache mit dem Vermieter, individuell ausgebaut und gestaltet werden. PKW-Stellplätze stehen zudem in ausreichender Anzahl zur Anmietung zur Verfügung.

Lage

Das Bürogebäude am Hellgrundweg befindet sich im Hamburger Westen, unmittelbar nördlich vom Altonaer Volkspark. Westlich angrenzend liegt ein Wohngebiet, bestehend aus Ein- und Mehrfamilienhäusern. Östlich erstrecken sich die Büro- und Verwaltungsgebäude der Marke Montblanc. Eine angenehme Anreise wird gewährleistet durch die S-Bahnstation Eidelstedt, der Linie S3 & S21, und durch die Busline 22, mit Haltestelle Hellgrundweg (Arena).
Besichtigungstermin anfragen

Weitere Angaben

  • Verfügbare Fläche (ca.) 320 m2
  • Mietpreis ab 8,50€/m2 mtl.
  •  
  • Nebenkosten 3,50€/m2 mtl.
  •  
  • Energiepass liegt vor
  • Baujahr 1990
  • Provision* 3,0 Bruttomonatsmieten zzgl. ges. USt. für den Mieter.

* Abhängig von der Mietdauer (siehe AGB)
Alle Preisangaben verstehen sich zzgl. der gesetzlichen USt.

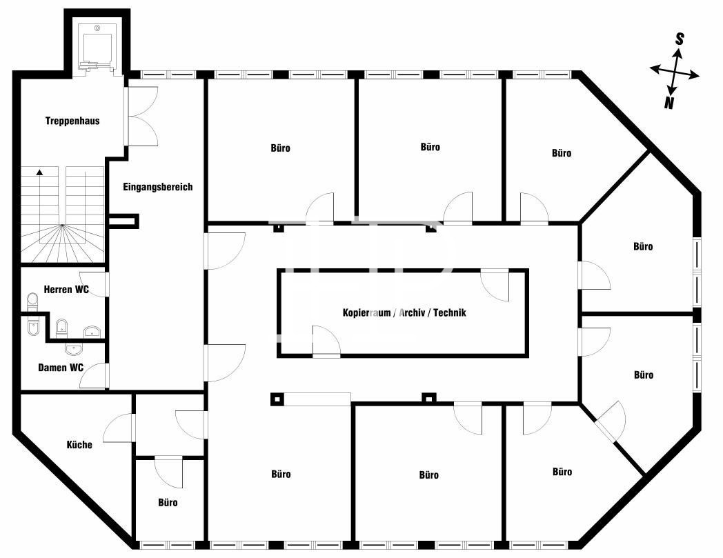
Grundriss 1. OG:

Sie haben Fragen?
Wenden Sie sich gerne an:

Team HH


Tel.: +49 40 2286011-0
E-Mail: anfrage@hamburg-properties.com

HPC Hamburg Properties Consulting GmbH & Co. KG
Alter Wall 34-36
20457 Hamburg

Lage Kriterien

  • Airport Hamburg: 17,20 km
  • A7 Autobahnauffahrt Stellingen: 2,50 km
  • Hauptbahnhof: 10,10 km
  • Mutterland Montblanc Haus: 210 m
  • REWE : 2400 m
  • sylc. Apartmenthotel Hamburg: 2400 m
  • U2 Hagenbecks Tierpark: 3600 m
  • S3 / S21 Eidelstedt: 1100 m
  • Linie 22 Hellgrundweg (Arenen): 260 m

Weitere Vorschläge in Lurup

Vielleicht interessieren Sie sich auch für folgende Büroflächen: