Beste Büros Logo
Alster-Ost, 08 Hamburg-Ost
Merken
Objektnummer: 994

Conventlofts | Loftige Büros in der Alten Bäckerei

Loftartige Büroflächen in den Conventlofts in Eilbek: hohe Decken, Stahlsprossenfenster, Betonoptik und moderne Ausstattung im historischen Ambiente.

Conventstraße 8 – 10

Objektbeschreibung

Die Conventlofts in Eilbek befinden sich in einem aufwendig sanierten Gewerbehof einer ehemaligen Großbäckerei von 1915. Charakterstarke, loftartige Büroflächen mit bis zu 4 m Deckenhöhe, typischen Stahlsprossenfenstern und Böden in Betonoptik, bzw. hochwertigem Designvinyl schaffen eine moderne, kreative Arbeitsatmosphäre. Der offene Grundriss mit Rückzugszonen und Küche ist barrierefrei zugänglich und bietet flexible Nutzungsmöglichkeiten für unterschiedlichste Unternehmenskonzepte.

Lage

Das Objekt befindet sich in zentraler Lage im Stadtteil Eilbek im Bezirk Wandsbek, nur ca. 100 Meter von der U-Bahn-Station "Wartenau" und etwa 300 Meter von der S-Bahn-Station "Landwehr" entfernt. Die hervorragende Anbindung ermöglicht eine schnelle Erreichbarkeit des Hamburger Hauptbahnhofs. Im direkten Umfeld finden sich diverse gastronomische Angebote für die Mittagspause oder einen schnellen Imbiss. Ein EDEKA mit angeschlossener Bäckerei befindet sich unmittelbar neben dem Gebäude.
Die Conventlofts in Hamburg-Eilbek verbinden den industriellen Charme einer historischen Großbäckerei mit modernem Bürokomfort. Großzügige Raumhöhen, charakteristische Stahlsprossenfenster und ein offenes Grundrisskonzept schaffen eine inspirierende Arbeitsumgebung für kreative Unternehmen und flexible New-Work-Konzepte. Die barrierefreien Flächen bieten neben Rückzugszonen auch eine moderne Küchensituation und hochwertige Ausstattung. Ideal für alle, die Wert auf Atmosphäre und Funktionalität legen.
Besichtigungstermin anfragen

Weitere Angaben

  • Verfügbare Fläche (ca.) 317 m2
  • Mietpreis ab 19,50€/m2 mtl.
  •  
  • Nebenkosten 3,00€/m2 mtl.
  •  
  • Energiepass liegt vor
  • Baujahr 1915
  • Provision* Provisionsfrei für den Mieter bei Anmietung von mind. 5 Jahren Laufzeit.

* Abhängig von der Mietdauer (siehe AGB)
Alle Preisangaben verstehen sich zzgl. der gesetzlichen USt.

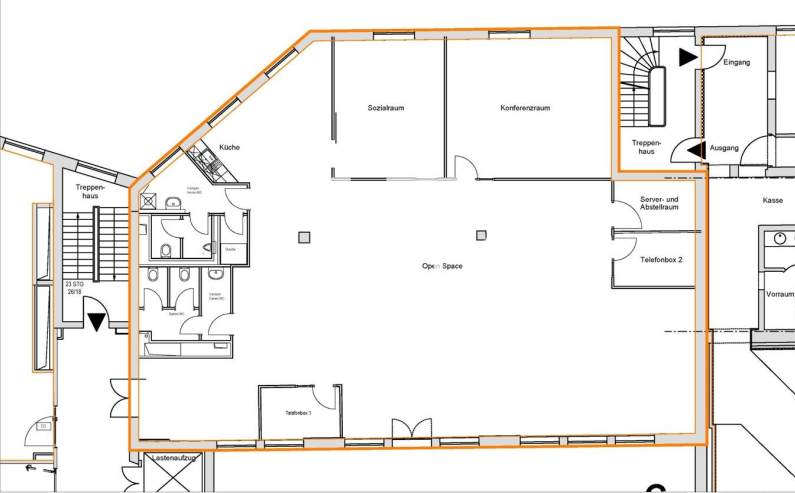
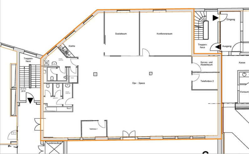
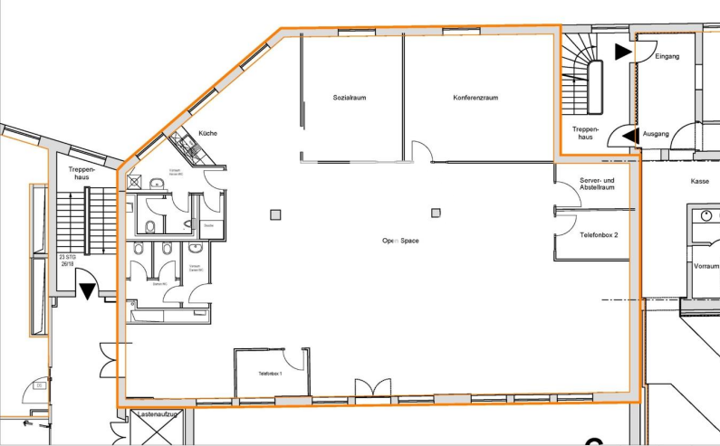
1. Obergeschoss:

Sie haben Fragen?
Wenden Sie sich gerne an:

Team HH


Tel.: +49 40 2286011-0
E-Mail: anfrage@hamburg-properties.com

HPC Hamburg Properties Consulting GmbH & Co. KG
Alter Wall 34-36
20457 Hamburg

Lage Kriterien

  • Airport Hamburg: 10,60 km
  • Elbbrücken : 3,40 km
  • Hauptbahnhof: 2,20 km
  • D'Alessio Ital.Bistro&Cafe: 100 m
  • Edeka Timmer: 10 m
  • City Apartment Hotel: 900 m
  • U1 Wartenau: 100 m
  • S1 Landwehr: 300 m
  • Wartenau Linie 16/25: 100 m

Weitere Vorschläge in Eilbek

Vielleicht interessieren Sie sich auch für folgende Büroflächen: