Beste Büros Logo
Hamburg-West
Merken
Objektnummer: 363

Businesspark Eimsbüttel | Moderne Büroflächen

Büroflächen im Eimsbütteler Businesspark: markante Architektur der 90er, helle Räume, moderner Komfort und zentrale Lage mit guter Erreichbarkeit.

Haferweg 36 - 42, 46

Objektbeschreibung

Der Bürokomplex im Eimsbütteler Businesspark wurde in den 1990er-Jahren im Stil der Postmoderne errichtet und bietet gepflegte, funktionale Büroflächen in zentraler Lage im Hamburger Westen. Klassische Baukörper mit markanten blauen Fensterelementen und auffälligen Tonnen- bzw. Glasdächern prägen das Erscheinungsbild. Über den repräsentativen Eingangsbereich gelangen Mitarbeiter und Besucher per Personenaufzug in alle Etagen. Große Fensterfronten schaffen helle, freundliche Arbeitsräume mit angenehmem Raumklima – ideal für modernes Arbeiten.

Lage

Der Gebäudekomplex liegt im Hamburger Westen, zentral im Eimsbütteler Businesspark. Die ruhige Lage verbindet sich mit einer hervorragenden Anbindung: Die S-Bahn-Station Diebsteich (S2, S3, S5) und die U-Bahn-Station Emilienstraße (U2) sind schnell erreichbar und bieten direkten Zugang zur Innenstadt und zum Umland. Entlang der Kieler Straße sowie in der näheren Umgebung stehen zahlreiche Einkaufsmöglichkeiten für den täglichen Bedarf und vielfältige Gastronomieangebote, wie das Bistro Aux Délices, zur Verfügung. Für erholsame Pausen bietet sich die Grünanlage am Ziegelteich an, die in nur sechs Gehminuten erreichbar ist.
Für wen lohnt sich der Businesspark Eimsbüttel?

Der Businesspark Eimsbüttel ist ideal für Unternehmen, die eine ruhige, gut angebundene Lage im Hamburger Westen suchen. Dank der Nähe zu den S- und U-Bahn-Stationen Diebsteich (S2, S3, S5) und Emilienstraße (U2) ist der Standort sowohl aus der Innenstadt als auch aus dem Umland schnell erreichbar.

Die flexiblen Büroflächen eignen sich für Dienstleister, Beratungen, Agenturen oder Backoffices der umliegenden Handwerks- und Produktionsbetriebe. Vielfältige Einkaufsmöglichkeiten, gastronomische Angebote und die Grünanlage am Ziegelteich bieten ein attraktives Umfeld für Mitarbeiter und Geschäftspartner.
Besichtigungstermin anfragen

Weitere Angaben

  • Verfügbare Fläche (ca.) 818 m2
  • Teilbare Fläche (ca.) 400 m2
  • Mietpreis ab 12,90€/m2 mtl.
  •  
  • Nebenkosten 3,50€/m2 mtl.
  •  
  • Energiepass liegt vor
  • Baujahr 1992
  • Provision* Provisionsfrei für den Mieter bei Anmietung von mind. 5 Jahren Laufzeit.

* Abhängig von der Mietdauer (siehe AGB)
Alle Preisangaben verstehen sich zzgl. der gesetzlichen USt.

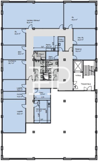
Grundriss Regelgeschoss:

Sie haben Fragen?
Wenden Sie sich gerne an:

Team HH


Tel.: +49 40 2286011-0
E-Mail: anfrage@hamburg-properties.com

HPC Hamburg Properties Consulting GmbH & Co. KG
Alter Wall 34-36
20457 Hamburg

Lage Kriterien

  • Airport Hamburg: 10,30 km
  • A7 HH-Volkspark: 3,50 km
  • Hauptbahnhof: 6 km
  • Bistro Aux Délices: 550 m
  • Rewe: 600 m
  • Hotel Motel One: 700 m
  • Emilienstraße (U2): 1400 m
  • Diebsteich (S2/S3/S5) : 700 m
  • Armbruststraße (Linie 115/183): 700 m

Weitere Vorschläge in Eimsbüttel

Vielleicht interessieren Sie sich auch für folgende Büroflächen: