Beste Büros Logo
City
Merken
Objektnummer: 622

Wiking-Haus | Charmantes Büro über 2 Ebenen

Schopenstehl 22

Objektbeschreibung

Das Wiking-Haus ist ein beeindruckendes denkmalgeschütztes Kontorhaus im Herzen von Hamburg. Das 1914 erbaute Gebäude strahlt mit seiner einzigartigen Architektur und dem historischen Charme eine besondere Atmosphäre aus. Das Büroangebot erstreckt sich über zwei Etagen und bietet somit ausreichend Platz für individuelle Bedürfnisse. Die Büroflächen sind bequem per Aufzug erreichbar und über eine interne Treppe miteinander verbunden. Mit seiner zentralen Lage und der erstklassigen Infrastruktur ist das Wiking-Haus die ideale Adresse für Unternehmen, die einen einzigartigen Arbeitsplatz in Hamburg suchen.

Lage

Das Wiking-Haus ist ein traditionsreiches Bürogebäude im Zentrum Hamburgs, gelegen zwischen der Speicherstadt und der bevorzugten Einkaufsmeile rund um die Mönckebergstraße, in unmittelbarer Nähe der berühmten Gebäude "Chilehaus" und "Sprinkenhof". Durch die zentrale Lage ist es mit dem Auto über die Straßen "Willy-Brandt-Straße", "Steinstraße" und "Wallring" gut zu erreichen. Durch die Nähe zum Hauptbahnhof und diversen U- und S-Bahn- sowie Buslinien ist das Objekt auch mit öffentlichen Verkehrsmitteln günstig zu erreichen.
Besichtigungstermin anfragen

Weitere Angaben

  • Verfügbare Fläche (ca.) 175 m2
  • Mietpreis ab 15,50€/m2 mtl.
  •  
  • Nebenkosten 3,70€/m2 mtl.
  • Verfügbarkeit kurzfristig (bis 4 Monate)
  •  
  • Energiepass liegt vor
  • Baujahr 1914
  • Provision* 3,0 Bruttomonatsmieten zzgl. ges. USt. für den Mieter.

* Abhängig von der Mietdauer (siehe AGB)
Alle Preisangaben verstehen sich zzgl. der gesetzlichen USt.

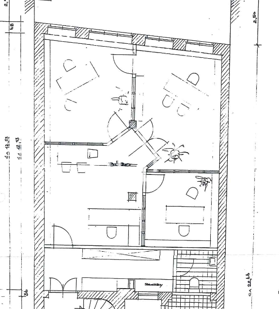
Grundriss 4. OG:

Sie haben Fragen?
Wenden Sie sich gerne an:

Katharina Giercke

Katharina Giercke
Tel.: +49 40 2286011-0
E-Mail: anfrage@hamburg-properties.com

HPC Hamburg Properties Consulting GmbH & Co. KG
Alter Wall 34-36
20457 Hamburg

Lage Kriterien

  • Airport Hamburg: 12,90 km
  • A1 : 6,30 km
  • Hauptbahnhof: 1 km
  • Restaurant Perle: 1 m
  • EDEKA Tamme : 650 m
  • Hotels: 400 m
  • Meßberg (U1): 220 m
  • Jungfernstieg (S1, S2, S3): 1000 m
  • Jakobikirchhof : 350 m