Beste Büros Logo
City
Merken
Objektnummer: 724

Stilvolle Altbauflächen mit bis zu 4m Deckenhöhe

Colonnaden 5

Objektbeschreibung

Das imposante Büro- und Geschäftsgebäude in den Colonnaden aus dem Jahr 1880 verfügt über eine eindrucksvolle Außenerscheinung. Mitarbeiter und Besucher des Hauses gelangen über das historische Treppenhaus oder auch über den Personenaufzug in die jeweilige Büroetage. Großzügige Flügelfenster sorgen für helle Räumlichkeiten und eine angenehme Arbeitsatmosphäre. Insbesondere die Deckenhöhe von bis zu 4,0 m und die aufwendigen Stuckverzierungen verleihen der Mietfläche einen besonderen Charme.

Lage

Das denkmalgeschütze Gebäude befindet sich inmitten einer vielfältigen Auswahl an erstklassigen Restaurants und Cafés, wie die Condi Lounge des Hotel Vier Jahreszeiten. Die Binnenalster ist nur 150 m entfernt. Die Anbindung an den öffentlichen Nahverkehr ist aufgrund naheliegender U- und S- Bahnstationen wie z.B. Stephansplatz sehr gut. Der Gänsemarkt ist fußläufig schnell zu erreichen - hier erwarten Sie viele Geschäfte, wie z. B. Blume 2000, oder das Café Espresso House.
Besichtigungstermin anfragen

Weitere Angaben

  • Verfügbare Fläche (ca.) 1.336 m2
  • Teilbare Fläche (ca.) 441 m2
  • Mietpreis ab 26,00€/m2 mtl.
  •  
  • Nebenkosten 5,50€/m2 mtl.
  •  
  • Energiepass befreit (Denkmalschutz)
  • Baujahr 1880
  • Provision* Provisionsfrei für den Mieter bei Anmietung von mind. 5 Jahren Laufzeit.

* Abhängig von der Mietdauer (siehe AGB)
Alle Preisangaben verstehen sich zzgl. der gesetzlichen USt.

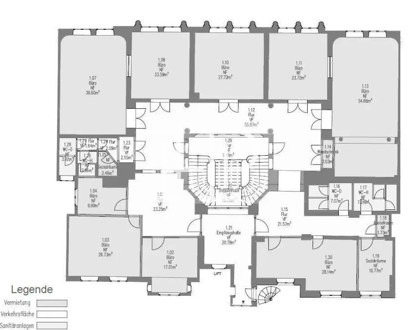
Grundriss 1. OG:

Sie haben Fragen?
Wenden Sie sich gerne an:

Team HH


Tel.: +49 40 2286011-0
E-Mail: anfrage@hamburg-properties.com

HPC Hamburg Properties Consulting GmbH & Co. KG
Alter Wall 34-36
20457 Hamburg

Lage Kriterien

  • Airport Hamburg: 9,50 km
  • A7: 6,10 km
  • Hauptbahnhof: 1,50 km
  • L'Osteria Hamburg Opernplaza: 250 m
  • EDEKA Struve: 650 m
  • Renaissance Hotel: 700 m
  • U1 Stephansplatz: 200 m
  • S21/31 Dammtor: 500 m
  • U Stephansplatz Linie 4, 5, 19: 110 m