Beste Büros Logo
City
Merken
Objektnummer: 515

Opernhof | Lichtdurchflutete Büros am Gänsemarkt

Gänsemarkt 45

Objektbeschreibung

Das Gebäude wurde nach Plänen von GRS Reimer Architekten im Jahr 2008 fertiggestellt und präsentiert sich von außen mit einer typisch hanseatischen Rotklinkerfassade, ergänzt mit großzügigen Fensterelementen.
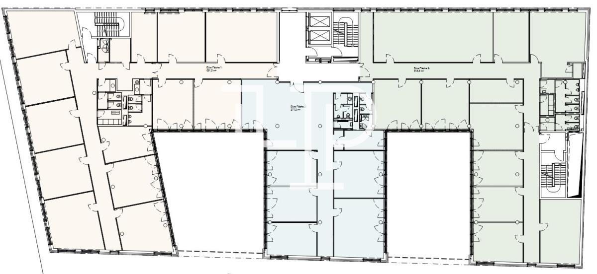
Die Mietflächen lassen sich über das großzügige und mit farbigem Glas, Holz und Licht gestalteten Bürofoyer erschließen. Aufgrund der Gebäudekubatur ist das Regelgeschoss in bis zu drei Mietbereiche teilbar und ermöglicht somit eine flexible Flächennutzung. In der auseigenen Tiefgarage gibt es die Möglichkeit PKW-Stellplätze anzumieten.

Lage

Das Büro- und Geschäftsgebäude befindet sich im Herzen der Hamburger Innenstadt, direkt am Gänsemarkt. Es ist inmitten einer vielfältigen Auswahl an erstklassigen Restaurants, Cafés und Bistros gelegen. Die Anbindung an den öffentlichen Nahverkehr ist aufgrund naheliegender U- und S- Bahnstationen wie z.B. Gänsemarkt und Jungfernstieg sehr gut. Der Gänsemarkt ermöglicht zudem viele Geschäfte für die Nahversorgung und Shoppingmöglichkeiten.
Besichtigungstermin anfragen

Weitere Angaben

  • Verfügbare Fläche (ca.) 2.839 m2
  • Teilbare Fläche (ca.) 277 m2
  • Mietpreis von 19,50€/m2 bis 29,50€/m2 mtl.
  •  
  • Nebenkosten 6,00€/m2 mtl.
  •  
  • Energiepass liegt vor
  • Baujahr 2008
  • Provision* Provisionsfrei für den Mieter bei Anmietung von mind. 5 Jahren Laufzeit.

* Abhängig von der Mietdauer (siehe AGB)
Alle Preisangaben verstehen sich zzgl. der gesetzlichen USt.

Grundriss 4. OG, kleinteilig:

Sie haben Fragen?
Wenden Sie sich gerne an:

Team HH


Tel.: +49 40 2286011-0
E-Mail: anfrage@hamburg-properties.com

HPC Hamburg Properties Consulting GmbH & Co. KG
Alter Wall 34-36
20457 Hamburg

Lage Kriterien

  • Airport Hamburg: 9,80 km
  • A255 HH-Elbbrücken: 5,70 km
  • Hauptbahnhof: 1,90 km
  • Edmondo: 300 m
  • Edeka Struve : 450 m
  • Fairmont Hotel Vier Jahreszeiten: 300 m
  • U2 Gänsemarkt: 50 m
  • S1/2/3 Jungfernstieg: 400 m
  • U Gänsemarkt Linien 4,5,19,602: 90 m