Beste Büros Logo
City
Merken
Objektnummer: 257

Kaiserbahnhof Quartier | Büroflächen am Gänsemarkt

Dammtorstraße 33 - 35

Objektbeschreibung

Das historische Kontorhaus verfügt über eine reich verzierte und gleichzeitig stilvolle Fassade. Über den modernen Empfangsbereich gelangen Sie bequem mit dem Fahrstuhl in Ihre Büroetage. Von dort aus haben Sie einen attraktiven Blick auf das Deutschlandhaus sowie die Nachbarschaft. Der Innenhof des Gebäudes ist mit Loungemöbeln ausgestattet und lässt sich in Abstimmung mit dem Vermieter gegebenenfalls mitnutzen. Die Büroflächen können nach Mieterwunsch gestaltet werden.
Im Erdgeschoss befindet sich ein Budni - optimal um schnell Besorgungen zu machen.

Lage

Das repräsentative Objekt befindet sich in unmittelbarer Nähe zur Hamburger Staatsoper. Die Umgebung bietet eine vielfältige Auswahl an erstklassigen Restaurants. Das Café MAD About Juice befindet sich direkt nebenan und bietet frische Säfte sowie Snacks für die Pause. Der nahegelegene Gänsemarkt überzeugt durch zahlreiche Geschäfte, wie z.B. Butlers, oder Blume 2000.
Für wen lohnt sich das Objekt?


Für wen lohnt sich das Objekt? Für anspruchsvolle Unternehmen, Beratungen und Anwaltskanzleien, die eine hochrepräsentative Adresse in unmittelbarer Nähe zur Staatsoper und zum Gänsemarkt suchen. Die Kombination aus stilvoller Historien-Architektur, modernem Empfang, flexibler Flächengestaltung nach Mieterwunsch und einem attraktiven Blick auf das Deutschlandhaus schafft ideale Voraussetzungen für Mandanten- und Kundenempfang. Die exzellente Mikrolage mit erstklassigen Restaurants, dem Café MAD About Juice nebenan sowie Budni im Erdgeschoss sorgt zudem für kurze Wege im Alltag; der nutzbare Innenhof mit Loungemöbeln rundet das hochwertige Umfeld ab.
Besichtigungstermin anfragen

Weitere Angaben

  • Verfügbare Fläche (ca.) 536 m2
  • Mietpreis ab 24,00€/m2 mtl.
  •  
  • Nebenkosten 5,66€/m2 mtl.
  •  
  • Energiepass befreit (Denkmalschutz)
  • Baujahr 1890
  • Provision* Provisionsfrei für den Mieter bei Anmietung von mind. 5 Jahren Laufzeit.

* Abhängig von der Mietdauer (siehe AGB)
Alle Preisangaben verstehen sich zzgl. der gesetzlichen USt.

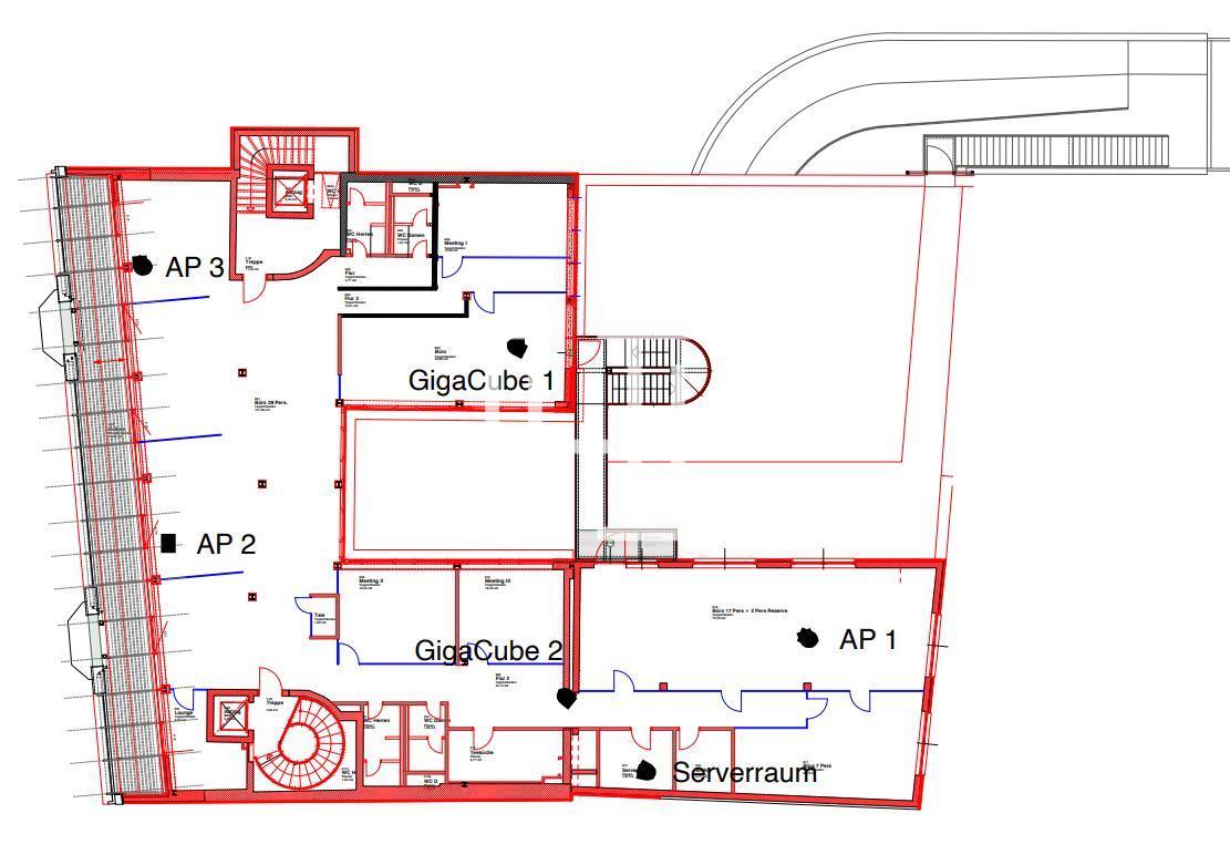
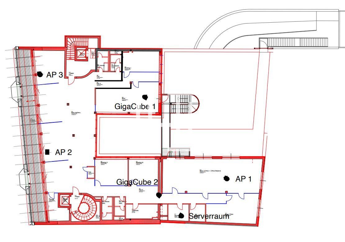
Grundriss 6. OG:

Sie haben Fragen?
Wenden Sie sich gerne an:

Team HH


Tel.: +49 40 2286011-0
E-Mail: anfrage@hamburg-properties.com

HPC Hamburg Properties Consulting GmbH & Co. KG
Alter Wall 34-36
20457 Hamburg

Lage Kriterien

  • Airport Hamburg: 10,30 km
  • A255: 5,80 km
  • Hauptbahnhof: 1,60 km
  • dean&david: 150 m
  • EDEKA : 550 m
  • Hamburg Marriott: 300 m
  • U2 Gänsemarkt: 140 m
  • S Jungfernstieg: 500 m
  • Gänsemarkt: 100 m